- Woonoppervlakte
- Circa 82 m²
- Perceeloppervlakte
- Circa 477 m²
- Bouwjaar
- Gebouwd in 1995
- Aantal kamers
- 4 kamers (3 slaapkamers)
Deze sfeervolle woning met sauna EN houtkachel gelegen aan een rustig hofje (achterzijde grenzend aan rustig groenperceel) in het villapark “Hunerwold State”, biedt alles wat je nodig hebt!
De woning is geschikt voor 6 personen (momenteel verhuurd als 4-persoons CE) en beschikt over een slaap- en (nieuwe) badkamer op de begane grond. De ruime tuin rondom de woning beschikt over een mooi terras waar je heerlijk kunt genieten van de rust en natuur. Er is parkeergelegenheid voor één auto op eigen terrein.
De huidige eigenaar verhuurt de woning via Landal, waarbij de volledige verhuur wordt verzorgd. De bungalow is compleet ingericht en voldoet aan alle moderne eisen. In 2020 is de keuken vernieuwd en voorzien van moderne apparatuur en in 2024 is er een nieuwe CV-ketel geplaatst, wat zorgt voor extra comfort en energie-efficiëntie. Je kunt eigen gebruik en verhuur combineren, zonder dat je je zorgen hoeft te maken over het beheer. Een handige, extra optie bij verhuur is de mogelijkheid om een van de slaapkamers op de eerste verdieping af te sluiten, zodat je persoonlijke spullen veilig kunt opbergen en de kamer uitsluitend voor eigen gebruik beschikbaar blijft.
Omgeving
Het villapark grenst direct aan het Drents-Friese Wold, bekend om zijn uitgestrekte bossen en het Aekingerzand, ook wel De Kale Duinen genoemd. Dit natuurgebied is een paradijs voor fietsers en wandelaars. Hunerwold State is de ideale uitvalsbasis om deze prachtige omgeving te verkennen!
Dankzij een overeenkomst met Landal zijn er uitstekende verhuurmogelijkheden op het villapark. Het verplichte lidmaatschap van de Coöperatieve Vereniging Villapark Hunerwold State zorgt voor goed onderhoud van zowel de villa’s als het park.
Indeling
Begane grond:
Entree met pvc-vloer
* Modern toilet met fontein en mechanische ventilatie
* Comfortabele badkamer met dubbele wastafel en inloopdouche
* Slaapkamer met tweepersoons boxspring en voldoende kastruimte
* Sfeervolle, tuingerichte woonkamer met houtkachel en openslaande tuindeuren naar het terras
* Open keuken met moderne hoekopstelling en apparatuur (vernieuwd in 2020), voorzien van gaskookplaat, afzuigkap, vaatwasser, koelkast en combimagnetron
* Buitenom bereikbare berging
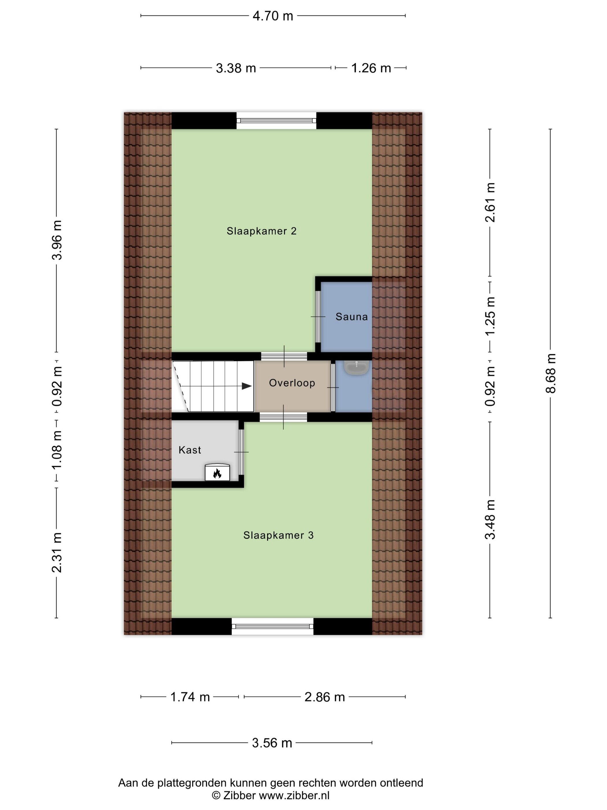
1e verdieping:
* Overloop
* Twee slaapkamers, waarvan één met sauna (mogelijkheid om een slaapkamer af te sluiten voor eigen gebruik)
* Toilet met wastafel
* CV-ruimte met nieuwe CV-ketel (2024)
* Aangebouwde berging: Oppervlakte: ca. 6 m²
Constructie: Halfsteens metselwerk, houten kozijnen, betonnen vloer, dakbeschot met pannen dakbedekking
Voorzien van elektra.
Mis deze unieke kans niet om eigenaar te worden van deze prachtige recreatiewoning in een van de mooiste natuurgebieden van Nederland. Of je nu op zoek bent naar een vakantiewoning voor eigen gebruik, een investering met uitstekende verhuurmogelijkheden, of een combinatie van beide, deze woning biedt het allemaal.
Neem vandaag nog contact op voor meer informatie en plan een bezichtiging. Ontdek de rust en schoonheid van Hunerwold State zelf!
Overdracht
- Vraagprijs
- € 169.000 k.k.
- Status
- Beschikbaar
- Aanvaarding
- In overleg
Bouw
- Object type
- Country vrijstaande woning
- Soort bouw
- Bestaande bouw
- Bouwjaar
- 1995
- Soort dak
- Zadeldak bedekt met pannen
Oppervlakte en inhoud
- Woonoppervlakte
- 82 m²
- Perceeloppervlakte
- 477 m²
- Inhoud
- 346 m³
- Gebouwgeb. buitenruimte
- 6 m²
Indeling
- Aantal kamers
- 4 kamers (3 slaapkamers)
- Aantal badkamers
- 1 badkamers (2 toilet)
- Badkamervoorzieningen
- Douche, wasbak, wastafelmeubel
- Aantal woonlagen
- 2 woonlagen
- Voorzieningen
- Mechanische ventilatie, rookkanaal
Energie
- Energielabel
- C
- Energielabel registratie
- 24-08-2023
- Isolatie
- Dakisolatie, muurisolatie, volledig geïsoleerd, spouwmuur isolatie
- Verwarming
- Cv-ketel, houtkachel
- Warm water
- Cv-ketel
- Cv ketel
- Intergas, gas, combiketel, uit 2024, eigendom
Buitenruimte
- Ligging
- Park, aan rustige weg, beschutte ligging, in bosrijke omgeving, dichtbij openbaar vervoer
- Tuin
- Achtertuin, voortuin
- Afmetingen voortuin
- 60 m² (12 meter diep en 5 meter breed)
- Afmetingen achtertuin
- 230.85 m² (19 meter diep en 12.15 meter breed)
- ligging tuin
- Gelegen op het zuidwesten
Bergruimte
- Schuur / berging
- Aangebouwde stenen berging
- Voorzieningen
- Elektra
Energieverbruik in Wateren
Energielabel deze woning
Energielabel C
Publicatie energielabel: 24-08-2023
Stroomverbruik per jaar
(Gemiddelde vrijstaande woning in Wateren)
Gasverbruik per jaar
(Gemiddelde vrijstaande woning in Wateren)
* Cijfers zijn afkomstig van het CBS en bedoeld als indicatie en kunnen verschillen voor deze woning
Indicatie hypotheeklasten
Eigen inleg:
Spaargeld / overwaarde
Rente:
Laagste 10-jaars rente
Laagste 10-jaars rente
2,98% - Centraal Beheer Groen... - NHG
3,2% - Argenta Groen Hypotheek... - 80%
Laagste 20-jaars rente
3,19% - Centraal Beheer Groen... - NHG
3,57% - Argenta Groen Hypothee... - 80%
Laagste 30-jaars rente
3,34% - Centraal Beheer Groen... - NHG
3,74% - Argenta Groen Hypothee... - 80%
Hypotheek:
Bruto maandlasten: € 0 p/m
Netto maandlasten: € 0 p/m
Hoe berekenen we dit?
Het rentepercentage is gebaseerd op de laagste 10 jaars vaste rente voor één hypotheekdeel. De vermelde rente (2.98% met NHG) is gecontroleerd op 18-12-2025. Deze berekening is gebaseerd op een annuïteitenhypotheek die volledig wordt afgelost, waarbij de maandlasten gedurende de gehele looptijd gelijk blijven. De werkelijke rente en netto maandlasten kunnen variëren, afhankelijk van uw persoonlijke situatie en de hypotheekverstrekker. Raadpleeg een financieel adviseur voor een nauwkeurige berekening en advies. Aan deze berekening kunnen geen rechten worden ontleend; het dient enkel als indicatie.
Documentatie
Kadastrale kaart
Leefomgeving
Brochure
Lijst van gedane werkzaamheden_1361
LijstVanZaken_1361
VragenlijstB_1361
Energielabel Hunerwold 5
Kadastrale kaart - Diever A 2039
BAG uittreksel
WOZ waarderapport
Plattegronden PDF
Bekijk onze website
Bezichtiging
Bod uitbrengen
Waardebepaling
Zoekopdracht
Alles downloaden
Op de kaart
Inwoners in Wateren
Cijfers voor postcodegebied 8438
- Totaal aantal inwoners
- 150 inwoners
- Mannen
- 53%
- Vrouwen
- 47%
Inwoners in Wateren
Cijfers voor postcodegebied 8438
- tot 15 jaar
- 10%
- 15 tot 25 jaar
- 10%
- 25 tot 35 jaar
- 7%
- 45 tot 65 jaar
- 40%
- 65 en ouder
- 30%
Huishoudens in Wateren
Cijfers voor postcodegebied 8438
- Eenpersoons zonder kinderen
- 43%
- Meerpersoons zonder kinderen
- 36%
- Huishoudens zonder kinderen
- 79%
Huishoudens in Wateren
Cijfers voor postcodegebied 8438
- Huishoudens met één kind
- 7%
- Huishoudens met meerdere kinderen
- 14%
- Huishoudens met kinderen
- 21%
Woningen in Wateren
Cijfers voor postcodegebied 8438
- Woningen voor 1945
- 56%
- Woningen tussen 1945 en 1965
- 22%
- Woningen tussen 1965 en 1975
- 1%
- Woningen tussen 1975 en 1985
- 1%
- Woningen tussen 1985 en 1995
- 1%
Woningen in Wateren
Cijfers voor postcodegebied 8438
- Woningen tussen 1995 en 2005
- 1%
- Woningen tussen 2005 en 2015
- 1%
- Woningen na 2015
- 1%
- Huurwoningen
- 1%
- Koopwoningen
- 90%
Overige in Wateren
Cijfers voor postcodegebied 8438
- Gemiddelde WOZ waarde
- € 429.000,-
- Personen onder de 65 met uitkering
- 7%
Overige in Wateren
Cijfers voor postcodegebied 8438
- Adressen per km²
- 53
- Stedelijkheid (schaal 1 op 5)
- 20%
Keizer Makelaardij
Indien u vragen heeft of u wilt een bezichtiging inplannen, dan kunt u gebruik maken van het formulier hiernaast. Er zal daarna op korte termijn contact met u worden opgenomen.
Contact opnemen
Wie is Jannie Keizer?
Mijn naam is Jannie Keizer, een trotse Drentse en eigenaresse van Keizer Makelaardij. Al 17 jaar run ik met veel plezier mijn makelaarskantoor. Mijn interesse in woningen en bouwprojecten - van diverse soorten huizen tot schuren - leidde mij naar de opleiding makelaardij, die ik succesvol heb afgerond. Keizer Makelaardij is net als ik: actief, gericht op full service en altijd denkend in kansen en groei.
Dagelijks geniet ik van onze prachtige omgeving, met mooie dorpen, huizen, boerderijen en de mensen die er wonen. Sinds 2001 ben ik werkzaam als zelfstandig makelaar. Mijn kantoor focust zich voornamelijk op de verkoop en aankoop van woningen in Zuid-Drenthe. Naast mijn certificering als makelaar, ben ik ook een erkend NRVT en SCVM gecertificeerd registertaxateur, bevoegd om alle woningtaxaties uit te voeren.
Nieuwste reviews
-
Beek en Brink 17
Het contact liep heel erg goed. Zij hadden alle tijd voor ons, zij hadden alle tijd voor ons als wij over iets twijfelden.
-
Beek en Brink 31
Zeer betrokken makelaar met uitstekende kennis van de lokale omstandigheden. Goede adviezen. Goed bereikbaar telefonisch en via e-mail. Heel...
-
't Hertenspoor 33
Prettige kennismaking gehad en een goed (financieel) voorstel gekregenZeer goed gehandeld door de medewerkers van Keizer makelaarsVriendelij...