- Woonoppervlakte
- Circa 83.2 m²
- Perceeloppervlakte
- Circa 540 m²
- Bouwjaar
- Gebouwd in 1965
- Aantal kamers
- 3 kamers (3 slaapkamers)
Ontdek dit twee-onder-een-kap woonhuis gelegen aan de Sleedoornlaan 42 in het sfeervolle Zuidlaren. Het is een ideale woning met een tuin aan 3 kanten, een schuur én garage. De woning beschikt verder over een slaapkamer en badkamer op de begane grond, 9 zonnepanelen, volledig HR++ glas, vloerisolatie en airco voor optimaal comfort.
Gezellig en praktisch wonen
Deze woning is ideaal voor mensen die op zoek zijn naar comfort, gemak en een gezellige woonomgeving. Met in totaal 3 slaapkamers, waarvan één op de begane grond, biedt het huis veel mogelijkheden voor ontspannen wonen.
Rust en bereikbaarheid
De woning ligt in een rustige wijk met alle voorzieningen binnen handbereik. En wilt u de stad in? Groningen en Assen zijn snel en eenvoudig bereikbaar.
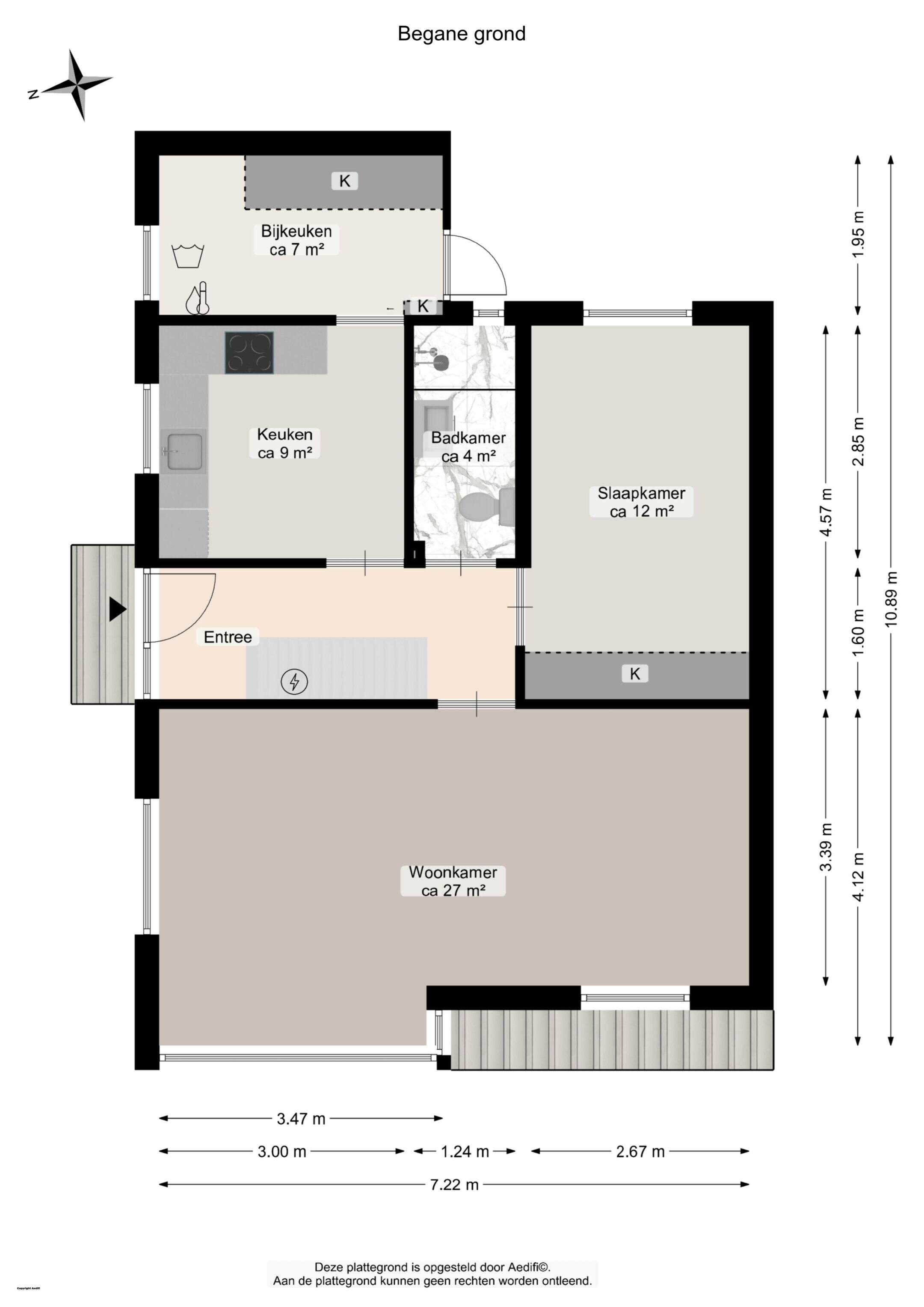
Indeling:
U kunt naast de woning op eigen terrein of in de garage parkeren. Entree, hal met toegang naar woonkeuken (voorzien van apparatuur waarnaast een bijkeuken met bergruimte en toegang naar de achtertuin (zuid). Verder is beneden een lichte, ruime woonkamer voorzien van (warmen/koelen), een slaapkamer, toilet en badkamer met douche en wastafel.
Verdieping: 2 slaapkamers met bergruimte.
Bijzonderheden:
- recent veel aangepakt
- label C
- airco, isolatie
- goed onderhouden
- met veel tuingrond, garage én schuur
Overdracht
- Vraagprijs
- € 300.000 k.k.
- Status
- Verkocht
- Aanvaarding
- In overleg
- Inrichting
- Gestoffeerd
Bouw
- Object type
- Eengezinswoning, 2-onder-1-kapwoning
- Soort bouw
- Bestaande bouw
- Bouwjaar
- 1965
- Soort dak
- Zadeldak bedekt met pannen
- Keurmerken
- Energie prestatie advies
Oppervlakte en inhoud
- Woonoppervlakte
- 83.2 m²
- Perceeloppervlakte
- 540 m²
- Inhoud
- 350 m³
- Overige inpandige ruimte
- 8.2 m²
- Externe bergruimte
- 20.8 m²
- Gebouwgeb. buitenruimte
- 4.4 m²
Indeling
- Aantal kamers
- 3 kamers (3 slaapkamers)
- Aantal badkamers
- 1 badkamer
- Badkamervoorzieningen
- Toilet, douche, wasbak
- Aantal woonlagen
- 2 woonlagen
- Voorzieningen
- Zonnepanelen, airconditioning, buitenzonwering, glasvezelkabel, dakraam
Energie
- Energielabel
- C
- Energielabel registratie
- 25-02-2025
- Isolatie
- Dakisolatie, muurisolatie, vloerisolatie, spouwmuur isolatie
- Verwarming
- Cv-ketel
- Warm water
- Cv-ketel
- Cv ketel
- Hr, gas, combiketel, uit 2023, eigendom
Buitenruimte
- Ligging
- Aan rustige weg, in woonwijk, dichtbij openbaar vervoer
- Tuin
- Achtertuin, voortuin, zijtuin
- Afmetingen voortuin
- 36 m² (12 meter diep en 3 meter breed)
- Afmetingen achtertuin
- 100 m² (10 meter diep en 10 meter breed)
- ligging tuin
- Gelegen op het zuidoosten en bereikbaar via achterom
Bergruimte
- Schuur / berging
- Vrijstaande houten berging
- Voorzieningen
- Elektra
Garage
- Soort garage
- Vrijstaande stenen garage
- Capaciteit
- 1 auto
Energieverbruik in Zuidlaren
Energielabel deze woning
Energielabel C
Publicatie energielabel: 25-02-2025
Stroomverbruik per jaar
(Gemiddelde twee onder een kap in Zuidlaren)
Gasverbruik per jaar
(Gemiddelde twee onder een kap in Zuidlaren)
* Cijfers zijn afkomstig van het CBS en bedoeld als indicatie en kunnen verschillen voor deze woning
Indicatie hypotheeklasten
Eigen inleg:
Spaargeld / overwaarde
Rente:
Laagste 10-jaars rente
Laagste 10-jaars rente
2,76% - Centraal Beheer Groen... - NHG
2,98% - Centraal Beheer Groen... - 80%
Laagste 20-jaars rente
3,19% - Centraal Beheer Groen... - NHG
3,31% - Centraal Beheer Groen... - 80%
Laagste 30-jaars rente
3,34% - Centraal Beheer Groen... - NHG
3,47% - Centraal Beheer Groen... - 80%
Hypotheek:
Bruto maandlasten: € 0 p/m
Netto maandlasten: € 0 p/m
Hoe berekenen we dit?
Het rentepercentage is gebaseerd op de laagste 10-jaars vaste rente voor één hypotheekdeel. De vermelde rente (2.76% met NHG) is gecontroleerd op 03-09-2025. Deze berekening is gebaseerd op een annuïteitenhypotheek die volledig wordt afgelost, waarbij de maandlasten gedurende de gehele looptijd gelijk blijven. De werkelijke rente en netto maandlasten kunnen variëren, afhankelijk van uw persoonlijke situatie en de hypotheekverstrekker. Raadpleeg een financieel adviseur voor een nauwkeurige berekening en advies. Aan deze berekening kunnen geen rechten worden ontleend; het dient enkel als indicatie.
Documentatie
Kadastrale kaart
Leefomgeving
BAG uittreksel
Plattegronden PDF
Vragenlijstb-2721
Vragenlijst-deel-c-2721
Lijstvanzaken-2721
Energielabel-object-sleedoornlaan-42-9471sm-zuidlaren
Brochure
Meetrapport-sleedoornlaan-42
Woz-waardeloket-sleedoornlaan-42-zuidlaren
Funderingsviewer
Kadastrale-kaart-zuidlaren-g-4722
Bodem-kaart
Bezoek onze website
Bezichtiging
Bod uitbrengen
Waardebepaling
Zoekopdracht
Alles downloaden
Op de kaart
Inwoners in Zuidlaren
Cijfers voor postcodegebied 9471
- Totaal aantal inwoners
- 6460 inwoners
- Mannen
- 49%
- Vrouwen
- 51%
Inwoners in Zuidlaren
Cijfers voor postcodegebied 9471
- tot 15 jaar
- 14%
- 15 tot 25 jaar
- 8%
- 25 tot 35 jaar
- 18%
- 45 tot 65 jaar
- 28%
- 65 en ouder
- 31%
Huishoudens in Zuidlaren
Cijfers voor postcodegebied 9471
- Eenpersoons zonder kinderen
- 35%
- Meerpersoons zonder kinderen
- 35%
- Huishoudens zonder kinderen
- 70%
Huishoudens in Zuidlaren
Cijfers voor postcodegebied 9471
- Huishoudens met één kind
- 5%
- Huishoudens met meerdere kinderen
- 25%
- Huishoudens met kinderen
- 30%
Woningen in Zuidlaren
Cijfers voor postcodegebied 9471
- Woningen voor 1945
- 19%
- Woningen tussen 1945 en 1965
- 29%
- Woningen tussen 1965 en 1975
- 32%
- Woningen tussen 1975 en 1985
- 1%
- Woningen tussen 1985 en 1995
- 6%
Woningen in Zuidlaren
Cijfers voor postcodegebied 9471
- Woningen tussen 1995 en 2005
- 9%
- Woningen tussen 2005 en 2015
- 2%
- Woningen na 2015
- 3%
- Huurwoningen
- 30%
- Koopwoningen
- 70%
Overige in Zuidlaren
Cijfers voor postcodegebied 9471
- Gemiddelde WOZ waarde
- € 262.000,-
- Personen onder de 65 met uitkering
- 8%
Overige in Zuidlaren
Cijfers voor postcodegebied 9471
- Adressen per km²
- 505
- Stedelijkheid (schaal 1 op 5)
- 40%
Korte feiten over Zuidlaren
Zuidlaren (Drents: Zuudlaoren, Gronings: Zuudloaren, klemtoon steeds op de tweede lettergreep) is een dorp in het noorden van de provincie Drenthe in Nederland. Zuidlaren was tot 1998 een zelfstandige gemeente, maar maakt sindsdien deel uit van de gemeente Tynaarlo.
Anderz Makelaar
Indien u vragen heeft of u wilt een bezichtiging inplannen, dan kunt u gebruik maken van het formulier hiernaast. Er zal daarna op korte termijn contact met u worden opgenomen.
Contact opnemen
Welkom bij Anderz Makelaar
Sinds mijn studententijd, toen ik werkervaring opdeed bij een van de meest gevestigde makelaarskantoren in Groningen, heb ik een passie ontwikkeld voor de vastgoedbranche. In 2008 ben ik mijn eigen pad ingeslagen en heb ik Anderz Makelaar opgericht. Met Anderz Makelaar, officieel gestart in november 2016, heb ik gekozen voor een frisse benadering met een all-inclusive service, van begin tot eind.
Mijn carrière heeft altijd één centraal thema gehad: mensen. Ik ben altijd gefascineerd geweest door menselijk gedrag, de diverse persoonlijkheden en hun besluitvormingsprocessen. Daarnaast heb ik van jongs af aan een diepe interesse gehad in architectuur en bouwkunde, wat ik ook in mijn studie heb doorgezet. Deze twee interesses komen samen in mijn dagelijkse werkzaamheden.
Bij Anderz Makelaar draait het niet enkel om de transactie of de hoogste verkoopprijs; het draait om samenwerking, vertrouwen en emotie. Dit zijn de pijlers waarop ons bedrijf is gebouwd en waar we elke dag naar streven.
Nieuwste reviews
-
Tim Hatzmann
Fijne makelaar waarbij je precies die services kunt afnemen die jij wenst, transparant. Prettige samenwerking en communicatie. Zeker aan te...
-
José van Drie
Het was een cadeautje om met Martin en zijn collega’s samen te werken. Een geoliede machine die snel, gericht en op het juiste moment werkte...
-
rubin de jong
Goede makelaar, zeer vriendelijk en ook behulpzaam met vragen. Schakelt vlot en houd goed op de hoogte van de stand van zaken. Bij de verkoo...