- Woonoppervlakte
- Circa 75 m²
- Perceeloppervlakte
- Circa 90 m²
- Bouwjaar
- Gebouwd in 1915
- Aantal kamers
- 3 kamers (2 slaapkamers)
NIEUWE WOONPLANNEN?
In de geliefde Herewegbuurt, op loopafstand van de gezellige Oosterpoortwijk en het bruisende centrum van Groningen, staat dit charmante, half vrijstaande en uitgebouwde schippershuis uit 1915 met TUIN. Zodra je de gevel ziet, voel je het karakter en de warmte die dit sfeervolle huis uitstraalt o.a. door de glas-in-loodramen en de lichte woonkamer. En stap je binnen? Dan weet je: dit is thuiskomen!
De ligging is ideaal voor wie graag stads woont met alle voorzieningen binnen handbereik. Op nog geen steenworp afstand ligt het recent aangelegde Zuiderplantsoen, een heerlijke plek voor een wandeling, sporten, een picknick of om even te ontsnappen aan de drukte van de stad.
LOCATIE EN VOORZIENINGEN:
- Supermarkten, speciaalzaken en gezellige horecagelegenheden op loopafstand;
- Slechts enkele minuten fietsen naar het stadscentrum en het Hoofdstation of station Europapark;
- Nabij het Zuiderplantsoen en uitvalswegen (A7 en A28);
- Basis- en middelbare scholen, kinderopvang en sportverenigingen in de directe omgeving.
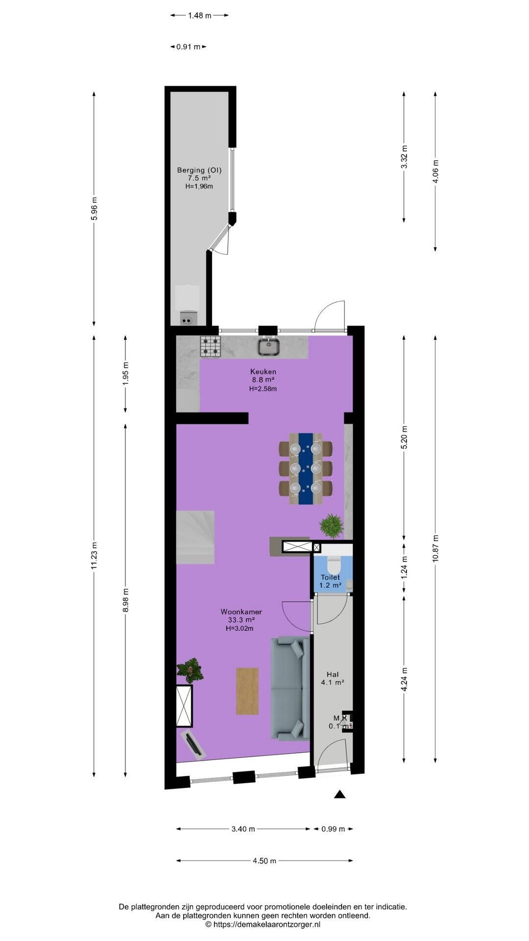
BEGANE GROND:
-Entree in hal met toilet;
-Lichte woonkamer van circa 33 m2 met een warme houten vloer met schouw en glas-in-loodramen voor extra sfeer;
-Moderne open keuken (ca. 9m2) met gezellige eethoek, ideaal om samen te koken en te ontspannen. De keuken (bj 2018) is voorzien van
koelkast, vriezer, combi-oven, vaatwasser(20240, kokend water kraan en een 4-pits keramische kookplaat.
EERSTE VERDIEPING:
-Overloop (ca. 5m2);
-Badkamer (ca. 4m2) met ligbad/douchecombinatie, tweede toilet en wastafel;
-Twee slaapkamers van circa 7 en 8 m2.
TUIN EN BERGING:
-Vanuit de keuken is er toegang tot een zonnige tuin op het westen en de berging;
-De deels geïsoleerde berging met elektra is geschikt als werkplek of hobbyruimte;
-In de berging staat nu de wasmachine en is de cv ketel (2017) te vinden;
-Genieten van de zon tot in de late avonduren;
-Stenen BBQ inbegrepen, perfect voor zomerse buitenmomenten.
PARKEREN:
-Met parkeervergunning, betaald parkeren.
STERKE PUNTEN EN BIJZONDERHEDEN:
- Bouwjaar 1915, met behoud van karakter en charme;
- 6 Zonnepanelen (2023);
- Lichte woonkamer (ca. 33m2) met glas-in-lood ramen;
- Zonnige tuin op het westen;
- Geïsoleerde berging met elektra, perfect als werk- of hobbyruimte;
- CV-ketel uit 2017;
- Grotendeels voorzien van HR ++ glas;
- Zuiderplantsoen op 50 meter;
- Nabij centrum, parken, winkels en uitvalswegen .
Benieuwd hoe deze unieke woning past in jouw nieuwe woonplannen? Reserveer een bezichtiging en ervaar het zelf. Tot snel! Lees de volledige omschrijving
Overdracht
- Vraagprijs
- € 375.000 k.k.
- Status
- Beschikbaar
- Aanvaarding
- In overleg
Bouw
- Object type
- Eengezinswoning, halfvrijstaande woning
- Soort bouw
- Bestaande bouw
- Bouwjaar
- 1915
- Soort dak
- Zadeldak bedekt met pannen
Oppervlakte en inhoud
- Woonoppervlakte
- 75 m²
- Perceeloppervlakte
- 90 m²
- Inhoud
- 320 m³
Indeling
- Aantal kamers
- 3 kamers (2 slaapkamers)
- Aantal badkamers
- 1 badkamer en 1 apart toilet
- Badkamervoorzieningen
- Toilet, wastafel, en zitbad
- Aantal woonlagen
- 2 woonlagen
- Voorzieningen
- TV kabel en zonnepanelen
Energie
- Energielabel
- E
- Energielabel registratie
- 27-11-2023
- Isolatie
- Dakisolatie, gedeeltelijk dubbel glas en hr-glas
- Verwarming
- Cv-ketel
- Warm water
- Cv-ketel
- Cv ketel
- Remeha avanta (gas gestookt combiketel uit 2017, eigendom)
Buitenruimte
- Ligging
- Aan rustige weg, beschutte ligging en in woonwijk
- Tuin
- Achtertuin
- Afmetingen achtertuin
- 30 m² (6,00 meter diep en 5,00 meter breed)
- ligging tuin
- Gelegen op het westen en
Bergruimte
- Schuur / berging
- Aangebouwde stenen berging
- Voorzieningen
- Elektra
Parkeergelegenheid
- Soort parkeergelegenheid
- Betaald parkeren en parkeervergunningen
Pieter
Van Meurs
Interesse
in deze woning?
Hypotheekgesprek? of Hypotheekvragen?
Maak een vrijblijvende afspraak met onze hypotheekadviseur
Energieverbruik in Groningen
Energielabel deze woning
Energielabel E
Publicatie energielabel: 27-11-2023
Stroomverbruik per jaar
(Gemiddelde vrijstaande woning in Groningen)
Gasverbruik per jaar
(Gemiddelde vrijstaande woning in Groningen)
* Cijfers zijn afkomstig van het CBS en bedoeld als indicatie en kunnen verschillen voor deze woning
Indicatie hypotheeklasten
Eigen inleg:
Spaargeld / overwaarde
Rente:
Laagste 10-jaars rente
Laagste 10-jaars rente
2,98% - Centraal Beheer Groen... - NHG
3,2% - Argenta Groen Hypotheek... - 80%
Laagste 20-jaars rente
3,19% - Centraal Beheer Groen... - NHG
3,57% - Argenta Groen Hypothee... - 80%
Laagste 30-jaars rente
3,34% - Centraal Beheer Groen... - NHG
3,74% - Argenta Groen Hypothee... - 80%
Hypotheek:
Bruto maandlasten: € 0 p/m
Netto maandlasten: € 0 p/m
Hoe berekenen we dit?
Het rentepercentage is gebaseerd op de laagste 10 jaars vaste rente voor één hypotheekdeel. De vermelde rente (2.98% met NHG) is gecontroleerd op 15-12-2025. Deze berekening is gebaseerd op een annuïteitenhypotheek die volledig wordt afgelost, waarbij de maandlasten gedurende de gehele looptijd gelijk blijven. De werkelijke rente en netto maandlasten kunnen variëren, afhankelijk van uw persoonlijke situatie en de hypotheekverstrekker. Raadpleeg een financieel adviseur voor een nauwkeurige berekening en advies. Aan deze berekening kunnen geen rechten worden ontleend; het dient enkel als indicatie.
Documentatie
Kadastrale kaart
Leefomgeving
Plattegronden PDF
BAG uittreksel
Brochure
WOZ waarderapport
Bestemmingsplan
Bodemkaart
Energielabel
Funderingsviewer
Kadastralekaart
Lijst van zaken
Vragenlijst deel 2
Bezoek onze website
Bezichtiging
Bod uitbrengen
Waardebepaling
Zoekopdracht
Alles downloaden
Zonnegrenzen bekijken
Inwoners in Groningen
Cijfers voor postcodegebied 9725
- Totaal aantal inwoners
- 6175 inwoners
- Mannen
- 49%
- Vrouwen
- 51%
Inwoners in Groningen
Cijfers voor postcodegebied 9725
- tot 15 jaar
- 5%
- 15 tot 25 jaar
- 32%
- 25 tot 35 jaar
- 37%
- 45 tot 65 jaar
- 15%
- 65 en ouder
- 11%
Huishoudens in Groningen
Cijfers voor postcodegebied 9725
- Eenpersoons zonder kinderen
- 72%
- Meerpersoons zonder kinderen
- 20%
- Huishoudens zonder kinderen
- 92%
Huishoudens in Groningen
Cijfers voor postcodegebied 9725
- Huishoudens met één kind
- 3%
- Huishoudens met meerdere kinderen
- 4%
- Huishoudens met kinderen
- 7%
Woningen in Groningen
Cijfers voor postcodegebied 9725
- Woningen voor 1945
- 42%
- Woningen tussen 1945 en 1965
- 20%
- Woningen tussen 1965 en 1975
- 1%
- Woningen tussen 1975 en 1985
- 15%
- Woningen tussen 1985 en 1995
- 9%
Woningen in Groningen
Cijfers voor postcodegebied 9725
- Woningen tussen 1995 en 2005
- 2%
- Woningen tussen 2005 en 2015
- 10%
- Woningen na 2015
- 1%
- Huurwoningen
- 70%
- Koopwoningen
- 30%
Overige in Groningen
Cijfers voor postcodegebied 9725
- Gemiddelde WOZ waarde
- € 194.000,-
- Personen onder de 65 met uitkering
- 8%
Overige in Groningen
Cijfers voor postcodegebied 9725
- Adressen per km²
- 4087
- Stedelijkheid (schaal 1 op 5)
- 100%
Korte feiten over Groningen
Groningen is de hoofdstad van de Nederlandse provincie Groningen, en de grootste kern in de gelijknamige gemeente. De plaats wordt in de provincies Groningen en Drenthe wel aangeduid als Stad. In 2021 telde de stad Groningen 202.900 inwoners. Het is de grootste stad van noordelijk Nederland. Groningen maakt deel uit van het samenwerkingsverband Regio Groningen-Assen.
Hallo, wij zijn Plan Makelaars Groningen
Het is een plek waar je jezelf kunt zijn. Het is geluk binnen vier muren. Het is de plek waar je talloze herinneringen hebt gemaakt, of nog gaat maken. Dat wensen we iedereen toe, vooral onze klanten, omdat we het een eer vinden om aan hun zijde te mogen staan. Aan jouw zijde. Want je hebt de beslissing genomen: er komt binnenkort een verkoopbord op je raam of je bent op zoek naar een nieuw thuis.
Maar dan begint het pas echt. Wat zijn je wensen en eisen? Met onze persoonlijke aanpak helpen we je om hierachter te komen. Zo kunnen we gericht te werk gaan en het beste resultaat voor jou behalen. De tijd speelt geen rol; we vinden altijd een manier om het optimale eindresultaat te realiseren: de beste deal, een soepel proces en continu overzicht op wat er gebeurt. Dat is ons doel.
Nieuwste reviews
-
Engelse Park 34
Pieter van Meurs loopt al vele jaren in makelaarsland rond en dat kun je merken. Is zeer deskundig, laagdrempelig, laat zich nooit gek maken...
-
Van Heemskerckstraat 51 c
De zoektocht naar een huis als starter is lastig. Gelukkig heb ik met de hulp van Plan Makelaars dit toch kunnen realiseren.
-
Prinsesseweg 48 A
Prima, vooraf afgesproken zaken werden prima nagekomen. Heeft goede begeleiding gedaan van potentiële klanten wat leidde tot verkoop van het...