Woonoppervlakte
Circa 105 m²
Perceeloppervlakte
Circa 142 m²
Bouwjaar
Gebouwd in 1912
Aantal kamers
3 kamers (2 slaapkamers)

Boulevard Antverpia 40

4703 AZ, Roosendaal (Noord-Brabant)

Welkom aan de sfeervolle Boulevard Antverpia 40 in het hart van Roosendaal. Deze karakteristieke woning ligt in een gezellige straat op loopafstand van het centrum én dicht bij de uitvalswegen. Van glas-in-loodramen tot ensuite deuren, van een moderne keuken tot een sfeervolle tuin met overkapping: dit huis combineert charme met comfort. Denk aan een energielabel A, twee grote slaapkamers, een fijne badkamer en ruime achtertuin. De sfeer? Warm, uniek en gewoon écht fijn. Een woning als deze komt zelden voorbij. Plan snel die bezichtiging in en kom de sfeer zelf ervaren!

Entree
Je parkeert je auto aan de straat. Via de charmante hal met originele tegeltjes kom je binnen. De hal geeft toegang tot de woonkamer én de trapopgang naar boven. Eerste indruk? Authentiek, uitnodigend en sfeervol.

Wonen & Koken
De woonkamer is een plaatje: strak gestucte wanden, glas-in-loodramen, ensuite deuren, en een aparte zit- en eethoek. De openslaande deuren naar de tuin zorgen voor een fijne verbinding tussen binnen en buiten. Mooie ingebouwde planken in de kasten bieden ruimte voor boeken of decoratie, het voelt hier huiselijk en stijlvol tegelijk.
De keuken is modern en knus, met een houtlook uitstraling, inbouwapparatuur en een praktische deur naar de tuin. Klein van formaat, maar groot in uitstraling en gemak.

Slapen, Dromen & Douchen
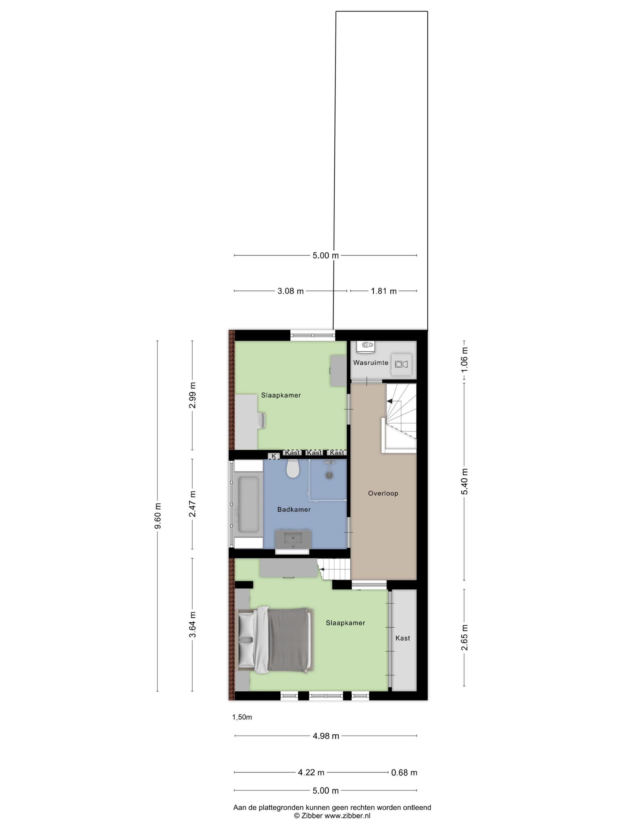
Op de eerste verdieping vind je twee ruime slaapkamers en een royale overloop met wasruimte. De master bedroom is een absolute eye-catcher met een hoog plafond, houten balken, veel lichtinval en praktische inbouwkasten. Echt heel sfeervol! De badkamer is verrassend ruim: voorzien van een ligbad, inloopdouche, wastafelmeubel én toilet. De afwerking is stijlvol en door de grote ramen geniet je hier van veel daglicht, perfect om helemaal tot rust te komen. Via een vaste trap bereik je de bergzolder, ideaal voor al je opslag.

Tuinieren, Zonnen & Genieten
De achtertuin is een heerlijke plek om te ontspannen. Volledig betegeld, volop ruimte en een groene uitstraling met een mooie pergola en een handige overkapping voor je barbecue. Een grote berging en een achterom maken het plaatje compleet. Hier geniet je volop van privacy én gemak.

Omgeving en Faciliteiten
Je woont hier op een geweldige locatie: vlak bij het bruisende centrum van Roosendaal, met winkels, horeca en voorzieningen om de hoek. Tegelijkertijd woon je in een rustige straat met karakter, met uitstekende verbindingen naar uitvalswegen en openbaar vervoer.

Bijzonderheden
De woning heeft energielabel A en is recentelijk helemaal gerenoveerd en verduurzaamd. Daarnaast heb je de mogelijk om 2 parkeervergunning aan te vragen voor €70 per jaar.

Toelichtingsclausule NEN2580:
De Meetinstructie is gebaseerd op de NEN2580. De Meetinstructie is bedoeld om een meer eenduidige manier van meten toe te passen voor het geven van een indicatie van de gebruiksoppervlakte. De Meetinstructie sluit verschillen in meetuitkomsten niet volledig uit, door bijvoorbeeld interpretatieverschillen, afrondingen of beperkingen bij het uitvoeren van de meting.

Plattegronden

Overdracht

Vraagprijs
€ 399.000 k.k.
Status
Onder bod
Aanvaarding
In overleg

Bouw

Object type
Eengezinswoning, geschakelde woning
Soort bouw
Bestaande bouw
Bouwjaar
1912
Soort dak
Zadeldak

Oppervlakte en inhoud

Woonoppervlakte
105 m²
Perceeloppervlakte
142 m²
Inhoud
402 m³
Overige inpandige ruimte
9 m²
Externe bergruimte
7 m²

Indeling

Aantal kamers
3 kamers (2 slaapkamers)
Aantal badkamers
1 badkamer
Badkamervoorzieningen
Ligbad, toilet, wastafelmeubel, inloopdouche
Aantal woonlagen
3 woonlagen
Voorzieningen
Mechanische ventilatie, alarminstallatie

Energie

Energielabel
A
Energielabel registratie
23-05-2023
Isolatie
Dakisolatie, muurisolatie, vloerisolatie, dubbel glas, hr glas
Verwarming
Cv-ketel, vloerverwarming gedeeltelijk
Warm water
Cv-ketel
Cv ketel
Remeha tzerrs combiketel gas gestookt uit 2015 (eigendom)

Buitenruimte

Ligging
In centrum
Tuin
Achtertuin

Bergruimte

Schuur / berging
Aangebouwd hout

Garage

Soort garage
Geen garage

Parkeergelegenheid

Soort parkeergelegenheid
Parkeervergunningen

Energieverbruik in Roosendaal

Energielabel deze woning

Energielabel A

Publicatie energielabel: 23-05-2023

Stroomverbruik per jaar

2790 kWh

(Gemiddelde tussenwoning in Roosendaal)

Gasverbruik per jaar

1080 m³

(Gemiddelde tussenwoning in Roosendaal)

* Cijfers zijn afkomstig van het CBS en bedoeld als indicatie en kunnen verschillen voor deze woning

Indicatie hypotheeklasten

Eigen inleg:
Spaargeld / overwaarde

Rente:
Laagste 10-jaars rente

Laagste 10-jaars rente

2,98% - Centraal Beheer Groen... - NHG


3,2% - Argenta Groen Hypotheek... - 80%

Laagste 20-jaars rente

3,19% - Centraal Beheer Groen... - NHG


3,57% - Argenta Groen Hypothee... - 80%

Laagste 30-jaars rente

3,34% - Centraal Beheer Groen... - NHG


3,74% - Argenta Groen Hypothee... - 80%


Hypotheek:

Bruto maandlasten: € 0 p/m

Netto maandlasten: € 0 p/m

Hoe berekenen we dit?

Het rentepercentage is gebaseerd op de laagste 10 jaars vaste rente voor één hypotheekdeel. De vermelde rente (2.98% met NHG) is gecontroleerd op 19-12-2025. Deze berekening is gebaseerd op een annuïteitenhypotheek die volledig wordt afgelost, waarbij de maandlasten gedurende de gehele looptijd gelijk blijven. De werkelijke rente en netto maandlasten kunnen variëren, afhankelijk van uw persoonlijke situatie en de hypotheekverstrekker. Raadpleeg een financieel adviseur voor een nauwkeurige berekening en advies. Aan deze berekening kunnen geen rechten worden ontleend; het dient enkel als indicatie.

Documentatie

Zonnegrenzen bekijken

Op de kaart

Inwoners in Roosendaal

Cijfers voor postcodegebied 4703

Totaal aantal inwoners
7435 inwoners
Mannen
50%
Vrouwen
50%

Inwoners in Roosendaal

Cijfers voor postcodegebied 4703

tot 15 jaar
14%
15 tot 25 jaar
11%
25 tot 35 jaar
28%
45 tot 65 jaar
26%
65 en ouder
21%

Huishoudens in Roosendaal

Cijfers voor postcodegebied 4703

Eenpersoons zonder kinderen
49%
Meerpersoons zonder kinderen
25%
Huishoudens zonder kinderen
74%

Huishoudens in Roosendaal

Cijfers voor postcodegebied 4703

Huishoudens met één kind
7%
Huishoudens met meerdere kinderen
19%
Huishoudens met kinderen
26%

Woningen in Roosendaal

Cijfers voor postcodegebied 4703

Woningen voor 1945
12%
Woningen tussen 1945 en 1965
57%
Woningen tussen 1965 en 1975
8%
Woningen tussen 1975 en 1985
1%
Woningen tussen 1985 en 1995
6%

Woningen in Roosendaal

Cijfers voor postcodegebied 4703

Woningen tussen 1995 en 2005
10%
Woningen tussen 2005 en 2015
3%
Woningen na 2015
2%
Huurwoningen
50%
Koopwoningen
50%

Overige in Roosendaal

Cijfers voor postcodegebied 4703

Gemiddelde WOZ waarde
€ 165.000,-
Personen onder de 65 met uitkering
11%

Overige in Roosendaal

Cijfers voor postcodegebied 4703

Adressen per km²
1908
Stedelijkheid (schaal 1 op 5)
80%
Postcode kaart 4703 Gemeente kaart roosendaal

Indien u vragen heeft of u wilt een bezichtiging inplannen, dan kunt u gebruik maken van het formulier hiernaast. Er zal daarna op korte termijn contact met u worden opgenomen.

Vakidioten met een passie voor vastgoed

Bij C&R Makelaars draait alles om jou en je woning. Wij zijn een frisse, energieke generatie makelaars met een passie voor mensen en de woningmarkt.

We geloven in een persoonlijke aanpak zonder poespas: eerlijk, transparant en altijd met een flinke dosis enthousiasme. Het verkopen van je huis is een belangrijke stap, en daarom begeleiden we je op een manier die bij jou past, van begin tot eind.

Met onze diepgaande kennis van de lokale markt geven we je waardevol advies dat perfect aansluit bij jouw situatie én dat van potentiële kopers.

Daarnaast staat ons creatieve team van vastgoedmarketeers klaar om jouw woning in de schijnwerpers te zetten. Met slimme en doordachte strategieën zorgen we ervoor dat je huis opvalt en het maximale resultaat behaalt.

Jouw tevredenheid is ons einddoel. We zetten alles op alles om je verwachtingen te overtreffen. Nieuwsgierig naar ons team? Klik op de button hieronder en maak kennis met ons!

Vakidioten met een passie voor vastgoed
Reviews C&R Makelaars

Boulevard Antverpia 40, Roosendaal

€ 399.000 k.k. - Onder bod