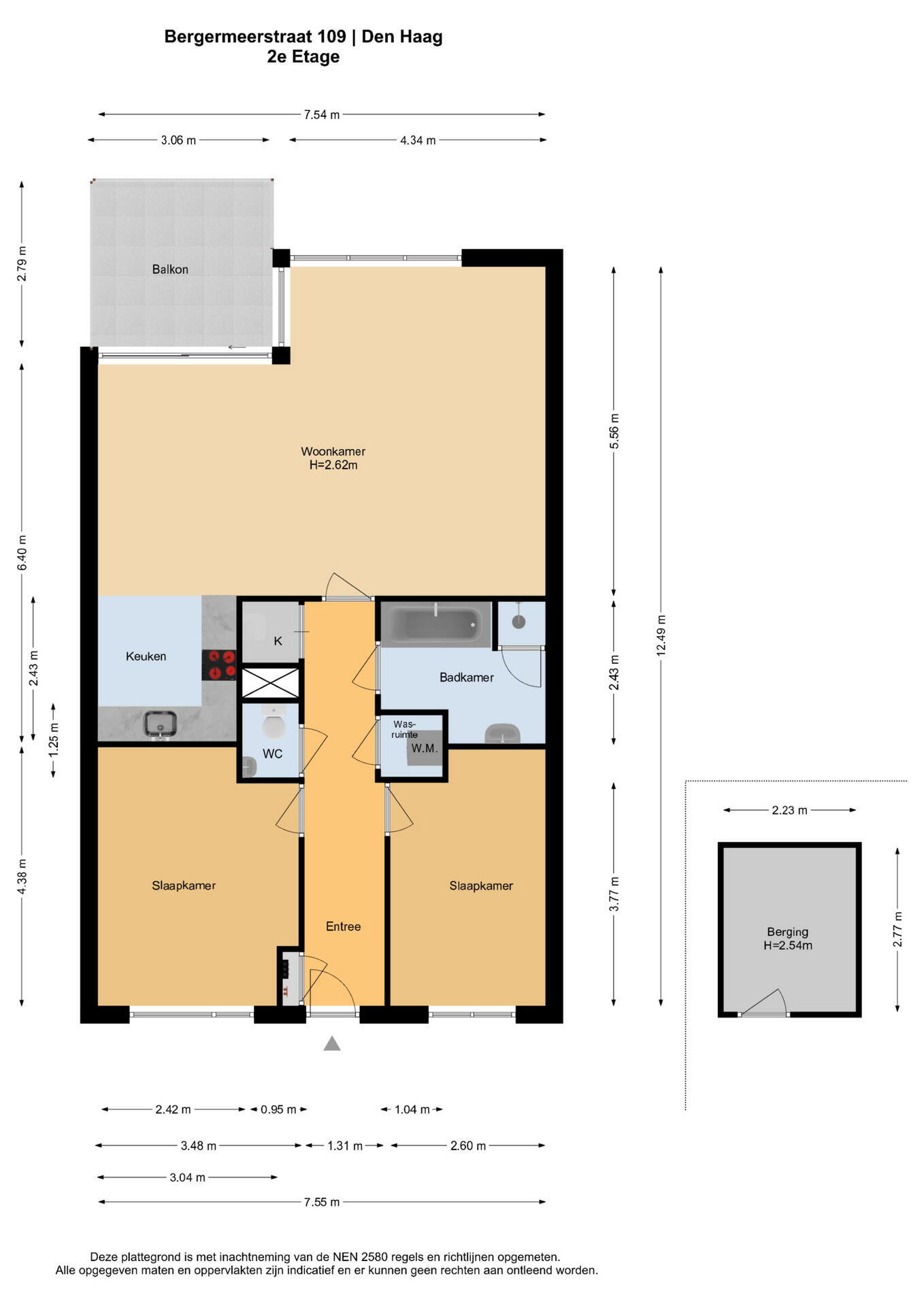
- Woonoppervlakte
- Circa 89,1 m²
- Inhoud
- Circa 285 m³
- Bouwjaar
- Gebouwd in 2011
- Aantal kamers
- 3 kamers
Heerlijk driekamerappartement op drie hoog in rustige buurt
Bent u op zoek naar een ruim en zonnig appartement met twee slaapkamers, gelegen in een rustige, kindvriendelijke buurt met alle voorzieningen dichtbij? Dan nodig ik u graag uit voor een bezichtiging!
Zonnige woonkamer met balkon, open keuken
U komt het appartementencomplex binnen in de representatieve centrale ontvangsthal. Daar neemt u de lift of de brede trap naar de derde verdieping, waar zich het appartement bevindt. De entree is prettig licht, op de vloer ligt laminaat dat u terugziet in alle vertrekken.
De woonkamer is aangenaam ruim. Grote raampartijen zorgen hier voor veel natuurlijke lichtinval en een zonnige sfeer. Wordt het u te warm, dan laat u eenvoudig de elektrische screens zakken. Via de grote schuifpui – voorzien van een hor – komt u op uw balkon dat uitzicht biedt over de levendige buurt en de vaak prachtige wolkenpartijen.
De L-vormige open keuken is grotendeels uit het zicht geplaatst en voorzien van een kunststof werkblad, een wit betegelde achterwand, mat witte kasten met veel bergruimte en diverse inbouwapparatuur.
Twee slaapkamers en een badkamer
Terug in de hal vindt u de deuren naar de twee slaapkamers. Allebei zijn ze aangenaam ruim en voorzien van grote ramen die zorgen voor veel lichtinval en uitzicht op onder andere water, bomen en de parkeerruimte.
De andere deur biedt toegang tot de badkamer, die is uitgevoerd in antraciet-witte tinten. U beschikt hier over een wastafel, instapdouche, ligbad, designradiator en een hoge kast. Naast de badkamer vindt u de ruimte voor de witgoedopstelling. Schuin tegenover de badkamer zijn de deuren naar het toilet en de cv-ruimte.
Berging en eigen parkeerplaats
In de ruime berging, bereikbaar via de hal van het appartementencomplex, kunt u uw fietsen en gereedschap plaatsen. Bovendien beschikt u over uw eigen parkeerplaats op het terrein, afgesloten door een slagboom. Naast het complex ligt een speelveldje.
Rustig en centraal gelegen
De ligging van dit appartement is perfect. Winkels, kinderopvang en scholen zijn nabij; de British school is zelfs om de hoek. Speeltuintjes en kinderboerderij vindt u op loopafstand en dat geldt ook voor het openbaar vervoer. De uitvalswegen A4, A12 en A13 liggen op een paar autominuten. Met de fiets bent u in korte tijd in de stad of in het groene buitengebied, waaronder het Westerpark Zoetermeer.
Samengevat:
• Zonnig appartement met twee slaapkamers in rustige buurt
• Woonoppervlak ca. 89,1 m², inhoud woning 285,3 m³, gemeten volgens NEN2580
• Er is sprake van erfpacht – eeuwig durend afgekocht (dus geen extra kosten)
• Lange hal met nieuwe videofoon
• Ruime woonkamer met veel lichtinval en elektrische screens; schuifpui naar het balkon
• L-vormige keuken met kunststof werkblad, veel kastruimte en diverse inbouwapparatuur
• Twee ruime en lichte slaapkamers
• Badkamer voorzien van wastafel, instapdouche, ligbad en hoge kast
• Separate ruimtes voor de cv-ketel (Intergas Compact HRE, 2010) en de witgoedopstelling
• Laminaatvloeren in het gehele appartement
• Het buitenschilderwerk is uitgevoerd in 2024/2025, via de VvE
• Gezonde en actieve VvE - Bijdrage VvE 211,77,- per maand (incl. parkeerplaats)
• Eigen berging in het gebouw - vaste parkeerplaats op afgesloten terrein
• Centraal gelegen nabij alle faciliteiten en openbaar vervoer
• Winkelcentrum Leidschenveen op 5 min fietsen, zo ook scholen nabij waaronder de British School
• Opgang naar diverse uitvalswegen A4/A12/A13 in een paar minuten rijden
• Oplevering in overleg
Is uw interesse gewekt?
Wacht niet te lang en bel Makelaarscentrum Leidschenveen om een afspraak te maken.
Deze informatie is met zorg samengesteld, aan de juistheid kunnen echter geen rechten worden ontleend. Alle opgegeven maten en oppervlakten zijn indicatief. De woning is gemeten met gebruikmaking van de Meetinstructie, die is gebaseerd op de normen zoals vastgelegd in NEN 2580. De algemene verkoopvoorwaarden staan vermeld op onze website, wij werken conform de Algemene Consumentenvoorwaarden van Vastgoed Nederland. Heeft u vragen over dit object of over onze dienstverlening, neemt u dan gerust contact met ons op.
Kortom, bel ons voor het maken van een afspraak of schakel direct uw eigen VBO/NVM aankoopmakelaar in. Uw aankoopmakelaar komt op voor uw belang en bespaart u veel tijd, geld en zorgen.
Overdracht
- Vraagprijs
- n.o.t.k.
- Status
- Binnenkort in de verkoop
- Bijdrage VvE
- € 211,77 p/m
Bouw
- Object type
- Appartement
- Soort bouw
- Bestaande bouw
- Bouwjaar
- 2011
- Toegankelijkheid
- Lift
- Soort dak
- Plat dak
Oppervlakte en inhoud
- Woonoppervlakte
- 89,1 m²
- Inhoud
- 285 m³
- Externe bergruimte
- 6,2 m²
- Gebouwgeb. buitenruimte
- 8,6 m²
Indeling
- Aantal kamers
- 3 kamers
- Aantal badkamers
- 1 badkamer
- Badkamervoorzieningen
- Ligbad, instapdouche, wastafelmeubel
- Aantal woonlagen
- 1 woonlaag
- Gelegen op
- 3
- Voorzieningen
- Lift
Energie
- Energielabel
- A
- Isolatie
- Volledig geïsoleerd
- Verwarming
- CV
- Warm water
- CV
- Cv ketel
- Intergas Compact HRE
Buitenruimte
- Ligging
- Rustig gelegen
- Balkon / dakterras
- Balkon
- ligging tuin
- Zuidwesten
Bergruimte
- Schuur / berging
- Inpandige berging
- Voorzieningen
- Elektra
Parkeergelegenheid
- Soort parkeergelegenheid
- Eigen parkeerplaats & openbaar
VvE checklist
- Inschrijving KvK
- Ja
- Jaarlijkse vergadering
- Ja
- Periodieke bijdrage
- Ja (€ 211,77) p/m
- Reservefonds aanwezig
- Ja
- Onderhoudsplan
- Ja
- Opstalverzekering
- Ja
Energieverbruik in Den Haag
Energielabel deze woning
Energielabel A
Publicatie energielabel:
Stroomverbruik per jaar
(Gemiddelde appartement in Den Haag)
Gasverbruik per jaar
(Gemiddelde appartement in Den Haag)
* Cijfers zijn afkomstig van het CBS en bedoeld als indicatie en kunnen verschillen voor deze woning
Indicatie hypotheeklasten
Eigen inleg:
Spaargeld / overwaarde
Rente:
Laagste 10-jaars rente
Laagste 10-jaars rente
2,98% - Centraal Beheer Groen... - NHG
3,2% - Argenta Groen Hypotheek... - 80%
Laagste 20-jaars rente
3,19% - Centraal Beheer Groen... - NHG
3,57% - Argenta Groen Hypothee... - 80%
Laagste 30-jaars rente
3,34% - Centraal Beheer Groen... - NHG
3,74% - Argenta Groen Hypothee... - 80%
Hypotheek:
Bruto maandlasten: € 0 p/m
Netto maandlasten: € 0 p/m
Hoe berekenen we dit?
Het rentepercentage is gebaseerd op de laagste 10 jaars vaste rente voor één hypotheekdeel. De vermelde rente (2.98% met NHG) is gecontroleerd op 17-12-2025. Deze berekening is gebaseerd op een annuïteitenhypotheek die volledig wordt afgelost, waarbij de maandlasten gedurende de gehele looptijd gelijk blijven. De werkelijke rente en netto maandlasten kunnen variëren, afhankelijk van uw persoonlijke situatie en de hypotheekverstrekker. Raadpleeg een financieel adviseur voor een nauwkeurige berekening en advies. Aan deze berekening kunnen geen rechten worden ontleend; het dient enkel als indicatie.
Documentatie
Kadastrale kaart
Leefomgeving
Plattegronden PDF
A-label-3
Lijstvanzaken-6299
8639-huishoudelijk-reglement-20220223
8639-splitsingsakte
5-bestuursverslag-2024
6-notulen-29-02-2024
7-jaarrekening-2024
9-begroting-2025
Agenda
Mjop-2022-vve-bergermeer
Notulen
Notulen-vergadering-van-eigenaars-25-02-2025
Bms109brochure-kleinebestand
Vragenlijst-deel-b-appartementsrecht-6299
Bezoek onze website
Bezichtiging
Bod uitbrengen
Waardebepaling
Zoekopdracht
Alles downloaden
Zonnegrenzen bekijken
Op de kaart
Inwoners in Den Haag
Cijfers voor postcodegebied 2493
- Totaal aantal inwoners
- 8235 inwoners
- Mannen
- 50%
- Vrouwen
- 50%
Inwoners in Den Haag
Cijfers voor postcodegebied 2493
- tot 15 jaar
- 28%
- 15 tot 25 jaar
- 12%
- 25 tot 35 jaar
- 30%
- 45 tot 65 jaar
- 26%
- 65 en ouder
- 5%
Huishoudens in Den Haag
Cijfers voor postcodegebied 2493
- Eenpersoons zonder kinderen
- 17%
- Meerpersoons zonder kinderen
- 18%
- Huishoudens zonder kinderen
- 35%
Huishoudens in Den Haag
Cijfers voor postcodegebied 2493
- Huishoudens met één kind
- 11%
- Huishoudens met meerdere kinderen
- 55%
- Huishoudens met kinderen
- 66%
Woningen in Den Haag
Cijfers voor postcodegebied 2493
- Woningen voor 1945
- 1%
- Woningen tussen 1945 en 1965
- 1%
- Woningen tussen 1965 en 1975
- 1%
- Woningen tussen 1975 en 1985
- 1%
- Woningen tussen 1985 en 1995
- 1%
Woningen in Den Haag
Cijfers voor postcodegebied 2493
- Woningen tussen 1995 en 2005
- 13%
- Woningen tussen 2005 en 2015
- 80%
- Woningen na 2015
- 5%
- Huurwoningen
- 30%
- Koopwoningen
- 70%
Overige in Den Haag
Cijfers voor postcodegebied 2493
- Gemiddelde WOZ waarde
- € 390.000,-
- Personen onder de 65 met uitkering
- 5%
Overige in Den Haag
Cijfers voor postcodegebied 2493
- Adressen per km²
- 1460
- Stedelijkheid (schaal 1 op 5)
- 60%
Korte feiten over Den Haag
Den Haag , ook wel 's-Gravenhage genoemd, is de hoofdstad van de provincie Zuid-Holland en met 562.446 inwoners (31 januari 2023, bron: CBS) de op twee na grootste gemeente van Nederland, na Amsterdam en Rotterdam. Alhoewel Den Haag niet de hoofdstad van Nederland is, dat is Amsterdam, is het wel de residentie (regeringszetel) en fungeert het in veel opzichten als hoofdstad.
Makelaarscentrum Leidschenveen
Indien u vragen heeft of u wilt een bezichtiging inplannen, dan kunt u gebruik maken van het formulier hiernaast. Er zal daarna op korte termijn contact met u worden opgenomen.
Koraalrood 153 (bezoekadres)
2718 SB, Zoetermeer
070 326 5476 robverhoeven@makelaarscentrum.nl www.makelaarscentrum-leidschenveen.nlContact opnemen
Makelaarscentrum Leidschenveen
"Plaats het maar op mijn bord," zegt Rob Verhoeven, een makelaar die al jarenlang in Leidschenveen woont en werkt. Hij heeft zich gespecialiseerd in deze aantrekkelijke wijk van Den Haag en is een expert in het begeleiden van zowel aankoop- als verkoopprocessen. "Ik heb de ontwikkeling van deze wijk van dichtbij meegemaakt. Ik ken sommige delen zelfs beter dan mijn eigen straat," vertelt hij met een glimlach.
Rob's grondige kennis van Leidschenveen heeft al veel mensen geholpen hun ideale woning te vinden of hun huis sneller dan verwacht te verkopen, vaak tegen prijzen die de verwachtingen overtroffen. Wat is zijn geheim? Rob zet altijd dat extra stapje voor zijn klanten. "U kunt mij echt alles vragen over het kopen of verkopen van een huis. En natuurlijk kunt u uw woning aan mij toevertrouwen als u dat overweegt 😊."
Nieuwste reviews
-
Martijn van Etten
Rob reageert snel, komt altijd afspraken na, communiceert proactief en past waar nodig de strategie aan. We hadden een onverwacht valse star...
-
Alexander van de Ven
Rob heeft ons huis al binnen een week verkocht. We zijn hem zeer dankbaar voor zijn vriendelijkheid, deskundigheid en professionaliteit.
-
Patricia van Delft
We zijn erg tevreden over Rob. De communicatie was duidelijk en prettig, en we voelden ons gedurende het hele verkoopproces goed begeleid. H...