- Woonoppervlakte
- Circa 247 m²
- Perceeloppervlakte
- Circa 382 m²
- Bouwjaar
- Gebouwd in 1931
- Aantal kamers
- 7 kamers (6 slaapkamers)
Banebergpassage 2
6371 HW, Landgraaf (Limburg)
Deze monumentale ogende woning met een woonoppervlakte van 247 m² en een bruto inhoud van 1.197 m³ ademt historie en grandeur. Vele originele details zijn met zorg bewaard gebleven, zoals de sierlijke trappartij, glas-in-loodramen, schouwen, gevelornamenten en het imposante dakvolume.
De villa is toekomstgericht verduurzaamd met 30 zonnepanelen en volledig voorzien van HR++ beglazing. De tuin rondom het huis kan omsloten worden door hekwerk en biedt groen en ruimte voor een serre. Parkeren kan op eigen terrein (3 plaatsen) en in de directe omgeving is voldoende gratis parkeergelegenheid.
**Indeling:**
**Souterrain:**
Ruime hal en twee grote bergruimtes/kelders – ideaal als opslag, wijnkelder of hobbyruimte.
**Begane grond:**
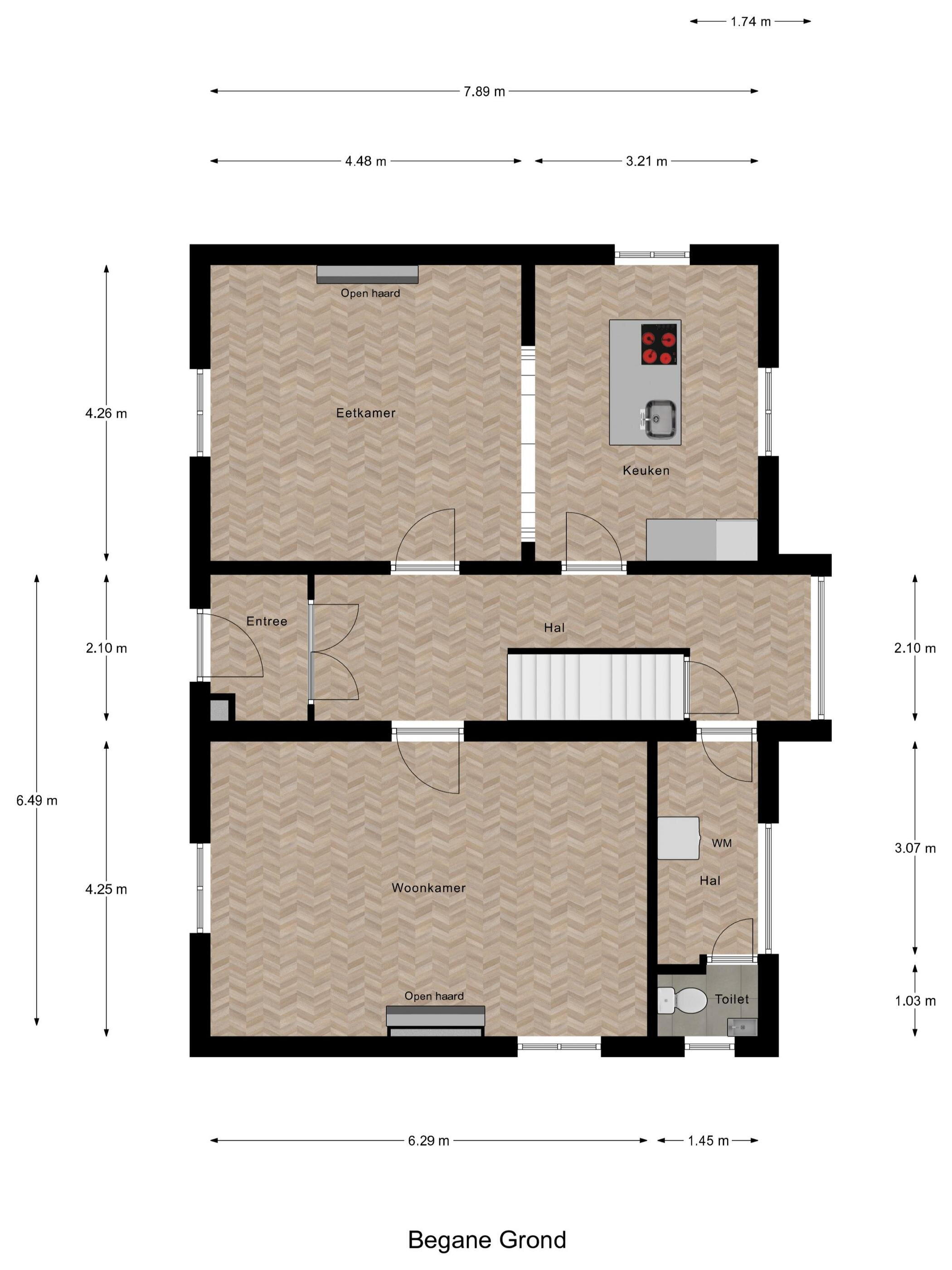
Imposante entree met authentieke trappartij. Woonkamer (ca. 6.49 x 4.25 m) met open haard, aparte eetkamer (ca. 4.48 x 4.26 m) met tweede haardpartij, en een moderne keuken (ca. 3.21 x 4.26 m) met kookeiland. Aan de achterzijde bevindt zich een extra hal met wasruimte en separaat toilet.
**Eerste verdieping:**
Overloop met toegang tot vier royale slaapkamers:
* Slaapkamer 1: ca. 3.90 x 4.26 m
* Slaapkamer 2: ca. 3.80 x 4.26 m
* Slaapkamer 3: ca. 4.23 x 4.26 m
* Slaapkamer 4: ca. 4.24 x 4.26 m
Badkamer met douche, dubbele wastafel, toilet en toegang tot het balkon.
**Zolderverdieping:**
Overloop, tweede badkamer met douche en toilet, cv-ruimte en wasmachineaansluiting, plus:
* Slaapkamer 5: ca. 7.04 x 4.27 m met dakraam
* Slaapkamer 6: ca. 4.01 x 3.98 m
**Tuin:**
Fraai aangelegde tuin waar een serre een mooie optie zijn.
**Bijzonderheden:**
* Voormalige ambtswoning van de burgemeester van Schaesberg
* Gebruiksoppervlakte wonen: 247 m²
* Bruto inhoud: 1.197 m³
* 6 slaapkamers, 2 badkamers
* Authentieke details en hoogwaardige uitstraling
* 30 zonnepanelen, geïsoleerd dak en HR++ glas
* Geschikt voor groot gezin, praktijk aan huis of dubbele bewoning
* Centrale ligging nabij centrum, station, scholen en winkels
**De waarborgsom/bankgarantie is 10% van de koopsom. De koper dient deze binnen 2 weken nadat het financieringsvoorbehoud is verlopen bij de desbetreffende notaris te deponeren.**
**Ter bescherming van de belangen van zowel koper als verkoper wordt uitdrukkelijk gesteld dat een koopovereenkomst met betrekking tot deze onroerende zaak eerst tot stand komt nadat koper en verkoper de koopovereenkomst hebben getekend (schriftelijkheidsvereiste).**
**Alle door ons kantoor verstrekte informatie omtrent onroerende zaken moet beschouwd worden als een uitnodiging om in onderhandeling te treden en is geheel vrijblijvend. Aangegeven maten zijn bij benadering. Aan deze informatie kunnen geen rechten worden ontleend.**
**Een eventueel bijgevoegde plattegrond dient uitsluitend als globale indicatie/visualisatie. Hieraan kunnen geen rechten worden ontleend. Indien de CV-ketel en/of warmwatervoorziening een huurtoestel betreft, dient de koper de huurovereenkomst over te nemen.**
Overdracht
- Huurprijs
- € 2.500 /mnd - € 539.000 k.k.
- Status
- Verhuurd
Bouw
- Object type
- Herenhuis, vrijstaande woning
- Soort bouw
- Bestaande bouw
- Bouwjaar
- 1931
- Soort dak
- Zadeldak bedekt met pannen
Oppervlakte en inhoud
- Woonoppervlakte
- 247 m²
- Perceeloppervlakte
- 382 m²
- Inhoud
- 1197 m³
- Overige inpandige ruimte
- 54 m²
- Gebouwgeb. buitenruimte
- 2 m²
Indeling
- Aantal kamers
- 7 kamers (6 slaapkamers)
- Aantal badkamers
- 2 badkamers en 3 aparte toiletten
- Badkamervoorzieningen
- Toilet, douche, dubbele wastafel, wastafelmeubel, wastafel
- Voorzieningen
- Tv kabel, dakraam, internet, cctv, zonnepanelen
Energie
- Energielabel
- E
- Energielabel registratie
- 26-05-2023
- Isolatie
- Dakisolatie, hr-glas
- Verwarming
- CV-ketel
Buitenruimte
- Ligging
- In woonwijk
- Tuin
- Tuin rondom
Parkeergelegenheid
- Soort parkeergelegenheid
- Op eigen terrein
Energieverbruik in Landgraaf
Energielabel deze woning
Energielabel E
Publicatie energielabel: 26-05-2023
Stroomverbruik per jaar
(Gemiddelde vrijstaande woning in Landgraaf)
Gasverbruik per jaar
(Gemiddelde vrijstaande woning in Landgraaf)
* Cijfers zijn afkomstig van het CBS en bedoeld als indicatie en kunnen verschillen voor deze woning
Documentatie
Kadastrale kaart
Leefomgeving
Brochure
WOZ waarderapport
BAG uittreksel
Plattegronden PDF
Bezichtiging
Waardebepaling
Zoekopdracht
Alles downloaden
Zonnegrenzen bekijken
Op de kaart
Inwoners in Landgraaf
Cijfers voor postcodegebied 6371
- Totaal aantal inwoners
- 6305 inwoners
- Mannen
- 49%
- Vrouwen
- 51%
Inwoners in Landgraaf
Cijfers voor postcodegebied 6371
- tot 15 jaar
- 12%
- 15 tot 25 jaar
- 9%
- 25 tot 35 jaar
- 22%
- 45 tot 65 jaar
- 30%
- 65 en ouder
- 27%
Huishoudens in Landgraaf
Cijfers voor postcodegebied 6371
- Eenpersoons zonder kinderen
- 40%
- Meerpersoons zonder kinderen
- 32%
- Huishoudens zonder kinderen
- 72%
Huishoudens in Landgraaf
Cijfers voor postcodegebied 6371
- Huishoudens met één kind
- 7%
- Huishoudens met meerdere kinderen
- 20%
- Huishoudens met kinderen
- 27%
Woningen in Landgraaf
Cijfers voor postcodegebied 6371
- Woningen voor 1945
- 11%
- Woningen tussen 1945 en 1965
- 35%
- Woningen tussen 1965 en 1975
- 12%
- Woningen tussen 1975 en 1985
- 4%
- Woningen tussen 1985 en 1995
- 16%
Woningen in Landgraaf
Cijfers voor postcodegebied 6371
- Woningen tussen 1995 en 2005
- 7%
- Woningen tussen 2005 en 2015
- 12%
- Woningen na 2015
- 3%
- Huurwoningen
- 50%
- Koopwoningen
- 50%
Overige in Landgraaf
Cijfers voor postcodegebied 6371
- Gemiddelde WOZ waarde
- € 187.000,-
- Personen onder de 65 met uitkering
- 13%
Overige in Landgraaf
Cijfers voor postcodegebied 6371
- Adressen per km²
- 1562
- Stedelijkheid (schaal 1 op 5)
- 80%
Parkstad Makelaardij
Indien u vragen heeft of u wilt een bezichtiging inplannen, dan kunt u gebruik maken van het formulier hiernaast. Er zal daarna op korte termijn contact met u worden opgenomen.
Contact opnemen
Parkstad Makelaardij
Twijfelt u of het nu het juiste moment is om uw woning in Parkstad te verkopen? Dat is begrijpelijk zeker als u nog geen nieuw huis heeft gevonden, is die stap niet eenvoudig.
Toch denkt u er misschien aan om net als buren, vrienden of collega’s een volgende stap te zetten. Misschien speelt ook mee dat de markt op dit moment gunstig is, en u juist nu een goede prijs voor uw woning kunt krijgen—een kans die zich de komende jaren mogelijk niet meer voordoet.
Laat daarom vrijblijvend en kosteloos uw woningwaarde bepalen door Parkstad Makelaardij. Zo weet u precies waar u aan toe bent.
Nieuwste reviews
-
Hoofdstraat 57
Ik kan Parkstad Makelaardij alleen maar heel warm en met overtuiging aanbevelen. Said verstaat zijn vak. Degelijke, serieuze en voortvarende...
-
Fideliolaan 1
Diligent, reliable and professional. Said did a very good job and I definitely recommend this agent.
-
Venweg 67
Zeer goede makelaar, betrokken, betrouwbaar en komt zijn afspraken na. Is tevens goed op de hoogte van de lokale markt.