- Woonoppervlakte
- Circa 79 m²
- Perceeloppervlakte
- Circa 118 m²
- Bouwjaar
- Gebouwd in 1951
- Aantal kamers
- 4 kamers (3 slaapkamers)
Deze woning heeft een gebruiksoppervlakte wonen van circa 75 m² en beschikt daarnaast over een praktische souterrainverdieping van circa 38 m². De achtertuin met overkapping, tuinschuur en achterom biedt extra gebruiksgemak. Een ideale woning voor wie compact maar compleet wil wonen.
Indeling:
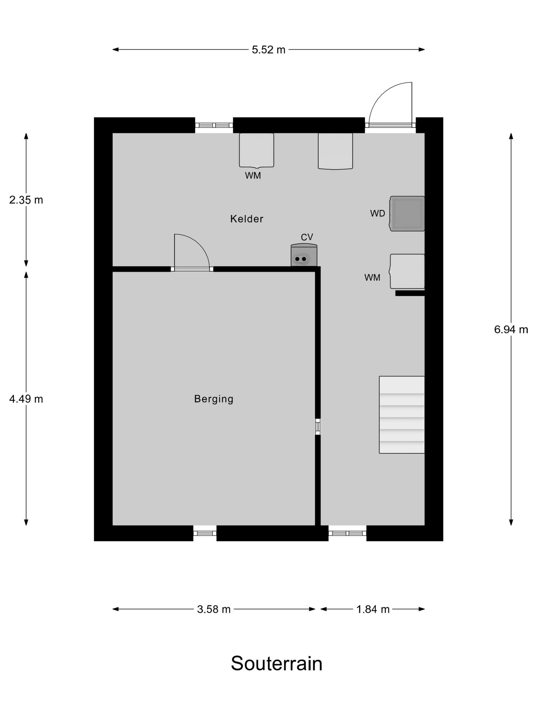
Souterrain:
Ruime kelderverdieping van ca. 38 m², bereikbaar via de hal én de tuin. Ideaal als opslagruimte, werkplaats of hobbyruimte. Deze laag telt als “overige inpandige ruimte”.
Begane grond:
Entree/hal met meterkast, toiletruimte en toegang tot kelder en verdieping. De woonkamer bevindt zich aan de voorzijde van de woning en beschikt over een sfeervolle open haard. Aan de achterzijde ligt de halfopen keuken met deur naar de tuin en overkapping.
Eerste verdieping:
Overloop met toegang tot drie slaapkamers (ca. 10 m², 11 m² en 7 m²) en een badkamer met douche, wastafel en toilet.
Buitenruimte:
Achtertuin met overkapping (ca. 14 m²), houten tuinschuur (ca. 6 m²) én een praktische achterom.
Bijzonderheden:
Gebruiksoppervlakte wonen: ca. 75 m²
Overige inpandige ruimte (souterrain): ca. 38 m²
Gebouwgebonden buitenruimte: ca. 14 m²
Vrijstaande houten tuinschuur: ca. 6 m²
Inhoud woning: ca. 345 m³
Woonkamer aan de voorzijde met open haard
Keuken met toegang tot tuin aan achterzijde
Gelegen in de wijk Meezenbroek, nabij winkels, scholen en openbaar vervoer
De waarborgsom/bankgarantie is 10% van de koopsom. De koper dient deze binnen 2 weken nadat het financieringsvoorbehoud is verlopen bij de desbetreffende notaris te deponeren.
Ter bescherming van de belangen van zowel koper als verkoper wordt uitdrukkelijk gesteld dat een koopovereenkomst met betrekking tot deze onroerende zaak eerst tot stand komt nadat koper en verkoper de koopovereenkomst hebben getekend (schriftelijkheidsvereiste).
Alle door ons kantoor verstrekte informatie omtrent onroerende zaken moet beschouwd worden als een uitnodiging om in onderhandeling te treden en is geheel vrijblijvend. Aangegeven maten zijn bij benadering. Aan deze informatie kunnen geen rechten worden ontleend.
Een eventueel bijgevoegde plattegrond dient uitsluitend als globale indicatie/visualisatie. Hieraan kunnen geen rechten worden ontleend. Indien de CV-ketel en/of warmwatervoorziening een huurtoestel betreft, dient de koper de huurovereenkomst over te nemen.
Overdracht
- Vraagprijs
- € 199.000 k.k.
- Status
- Verkocht
Bouw
- Object type
- Eengezinswoning, tussenwoning
- Soort bouw
- Bestaande bouw
- Bouwjaar
- 1951
- Soort dak
- Zadeldak bedekt met pannen
Oppervlakte en inhoud
- Woonoppervlakte
- 79 m²
- Perceeloppervlakte
- 118 m²
- Inhoud
- 250 m³
- Overige inpandige ruimte
- 21 m²
- Externe bergruimte
- 6 m²
Indeling
- Aantal kamers
- 4 kamers (3 slaapkamers)
- Aantal badkamers
- 1 badkamer en 1 apart toilet
- Badkamervoorzieningen
- Douche, wastafel
- Voorzieningen
- Tv kabel, internet
Energie
- Energielabel
- D
- Energielabel registratie
- 21-08-2025
Buitenruimte
- Ligging
- Aan rustige weg, in woonwijk
- Tuin
- Achtertuin, voortuin
- Afmetingen achtertuin
- 60 m² (10 meter diep en 6 meter breed)
Bergruimte
- Schuur / berging
- Vrijstaand hout
Parkeergelegenheid
- Soort parkeergelegenheid
- Openbaar parkeren
Energieverbruik in Heerlen
Energielabel deze woning
Energielabel D
Publicatie energielabel: 21-08-2025
Stroomverbruik per jaar
(Gemiddelde tussenwoning in Heerlen)
Gasverbruik per jaar
(Gemiddelde tussenwoning in Heerlen)
* Cijfers zijn afkomstig van het CBS en bedoeld als indicatie en kunnen verschillen voor deze woning
Indicatie hypotheeklasten
Eigen inleg:
Spaargeld / overwaarde
Rente:
Laagste 10-jaars rente
Laagste 10-jaars rente
2,98% - Centraal Beheer Groen... - NHG
3,25% - Centraal Beheer Groen... - 80%
Laagste 20-jaars rente
3,29% - Centraal Beheer Groen... - NHG
3,52% - Centraal Beheer Groen... - 80%
Laagste 30-jaars rente
3,41% - Centraal Beheer Groen... - NHG
3,74% - Centraal Beheer Groen... - 80%
Hypotheek:
Bruto maandlasten: € 0 p/m
Netto maandlasten: € 0 p/m
Hoe berekenen we dit?
Het rentepercentage is gebaseerd op de laagste 10 jaars vaste rente voor één hypotheekdeel. De vermelde rente (2.98% met NHG) is gecontroleerd op 30-12-2025. Deze berekening is gebaseerd op een annuïteitenhypotheek die volledig wordt afgelost, waarbij de maandlasten gedurende de gehele looptijd gelijk blijven. De werkelijke rente en netto maandlasten kunnen variëren, afhankelijk van uw persoonlijke situatie en de hypotheekverstrekker. Raadpleeg een financieel adviseur voor een nauwkeurige berekening en advies. Aan deze berekening kunnen geen rechten worden ontleend; het dient enkel als indicatie.
Documentatie
Kadastrale kaart
Leefomgeving
Brochure
WOZ waarderapport
BAG uittreksel
Plattegronden PDF
Bezichtiging
Bod uitbrengen
Waardebepaling
Zoekopdracht
Alles downloaden
Zonnegrenzen bekijken
Op de kaart
Inwoners in Heerlen
Cijfers voor postcodegebied 6415
- Totaal aantal inwoners
- 6440 inwoners
- Mannen
- 51%
- Vrouwen
- 49%
Inwoners in Heerlen
Cijfers voor postcodegebied 6415
- tot 15 jaar
- 15%
- 15 tot 25 jaar
- 11%
- 25 tot 35 jaar
- 26%
- 45 tot 65 jaar
- 29%
- 65 en ouder
- 19%
Huishoudens in Heerlen
Cijfers voor postcodegebied 6415
- Eenpersoons zonder kinderen
- 46%
- Meerpersoons zonder kinderen
- 24%
- Huishoudens zonder kinderen
- 70%
Huishoudens in Heerlen
Cijfers voor postcodegebied 6415
- Huishoudens met één kind
- 11%
- Huishoudens met meerdere kinderen
- 18%
- Huishoudens met kinderen
- 29%
Woningen in Heerlen
Cijfers voor postcodegebied 6415
- Woningen voor 1945
- 26%
- Woningen tussen 1945 en 1965
- 45%
- Woningen tussen 1965 en 1975
- 3%
- Woningen tussen 1975 en 1985
- 10%
- Woningen tussen 1985 en 1995
- 2%
Woningen in Heerlen
Cijfers voor postcodegebied 6415
- Woningen tussen 1995 en 2005
- 7%
- Woningen tussen 2005 en 2015
- 5%
- Woningen na 2015
- 1%
- Huurwoningen
- 60%
- Koopwoningen
- 40%
Overige in Heerlen
Cijfers voor postcodegebied 6415
- Gemiddelde WOZ waarde
- € 125.000,-
- Personen onder de 65 met uitkering
- 18%
Overige in Heerlen
Cijfers voor postcodegebied 6415
- Adressen per km²
- 1808
- Stedelijkheid (schaal 1 op 5)
- 80%
Korte feiten over Heerlen
Heerlen (Limburgs: plaatselijk Heële) is een stad en gemeente in het zuidoosten van de Nederlandse provincie Limburg. Op 1 januari 2024 had Heerlen 87.498 inwoners (CBS). Heerlen is daarmee de grootste gemeente in de Oostelijke Mijnstreek, en de vierde van Limburg, na Maastricht, Venlo en Sittard-Geleen.
Parkstad Makelaardij
Indien u vragen heeft of u wilt een bezichtiging inplannen, dan kunt u gebruik maken van het formulier hiernaast. Er zal daarna op korte termijn contact met u worden opgenomen.
Contact opnemen
Parkstad Makelaardij
Twijfelt u of het nu het juiste moment is om uw woning in Parkstad te verkopen? Dat is begrijpelijk zeker als u nog geen nieuw huis heeft gevonden, is die stap niet eenvoudig.
Toch denkt u er misschien aan om net als buren, vrienden of collega’s een volgende stap te zetten. Misschien speelt ook mee dat de markt op dit moment gunstig is, en u juist nu een goede prijs voor uw woning kunt krijgen—een kans die zich de komende jaren mogelijk niet meer voordoet.
Laat daarom vrijblijvend en kosteloos uw woningwaarde bepalen door Parkstad Makelaardij. Zo weet u precies waar u aan toe bent.
Nieuwste reviews
-
Hoofdstraat 57
Ik kan Parkstad Makelaardij alleen maar heel warm en met overtuiging aanbevelen. Said verstaat zijn vak. Degelijke, serieuze en voortvarende...
-
Fideliolaan 1
Diligent, reliable and professional. Said did a very good job and I definitely recommend this agent.
-
Venweg 67
Zeer goede makelaar, betrokken, betrouwbaar en komt zijn afspraken na. Is tevens goed op de hoogte van de lokale markt.