- Woonoppervlakte
- Circa 50 m²
- Inhoud
- Circa 170 m³
- Bouwjaar
- Gebouwd in 1987
- Aantal kamers
- 2 kamers (1 slaapkamers)
Rumpenerstraat 153 C
6443 CC, Brunssum (Limburg)
!!!Dit appartement wordt volledig gemeubileerd aangeboden!!!
Ook te huur voor kortere periode voor expats.
Geen huisdieren
Exclusief gas, water en licht
Mooi appartement, met vrij uitzicht, gunstig gelegen ten opzichte van het centrum, voorzieningen, openbaar vervoer en de uitvalswegen N276 en de N299.
Dit is sfeervol wonen op een prachtige plek!
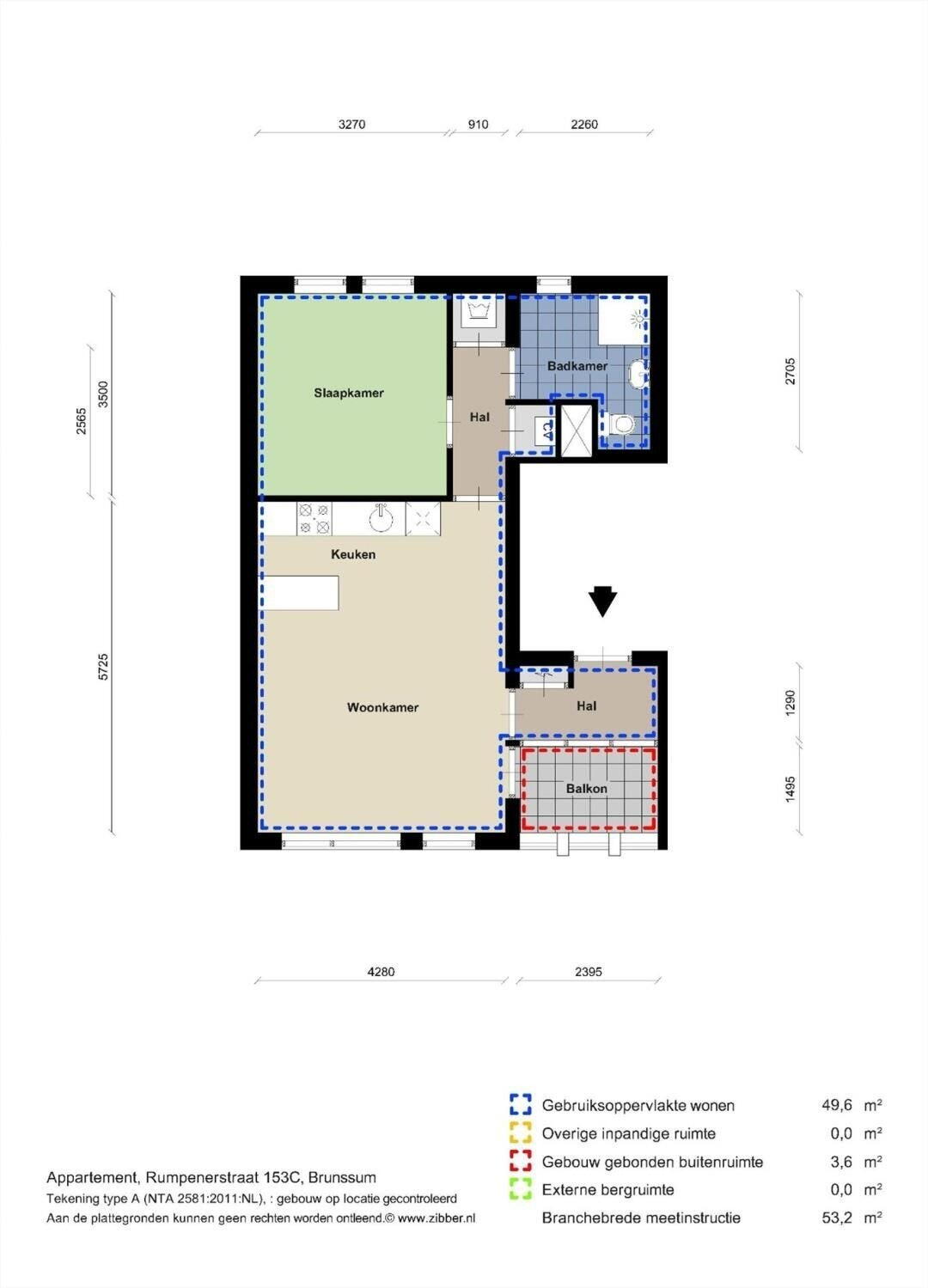
Indeling appartement
Via de entree van de portiekflat komt u in de hal waar de brievenbussen geplaatst zijn.
U betreedt het appartement vanuit de hal, vanwaar u de woonkamer en keuken inloopt.
De vierkante woonkamer is ruim met veel lichtinval van de grote ramen
De keuken wordt geleverd met inbouwapparatuur zoals een koelkast, een diepvriezer met 3 laden (bevindt zich onder de koelkast) een inductiekookplaat met afzuiginstallatie en een vaatwasser. De keuken heeft meer dan voldoende kastruimte.
Via de woonkamer kunt u naar het balkon, met een vrij uitzicht.
De ruime slaapkamer heeft genoeg ruimte voor een tweepersoons bed, er staat een grote kast in deze kamer met voldoende ruimte voor uw kleding.
Ook hier heeft u lekker veel licht door de grote ramen.
Het badkamer is voorzien van een douche en toilet is voorzien van licht tegelwerk en een wasdroog combinatie.
De hal, woonkamer, keuken en slaapkamer zijn voorzien van een laminaatvloer.
Bijzonderheden;
Het gehele appartement is voorzien van dubbele beglazing en hard houten kozijnen
Parkeren: openbaar parkeren
Overdracht
- Huurprijs
- € 1.050 /mnd
- Status
- Beschikbaar
- Aanvaarding
- Per datum
Bouw
- Object type
- Tussenverdieping, appartement
- Soort bouw
- Bestaande bouw
- Bouwjaar
- 1987
- Soort dak
- Plat dak bedekt met bitumineuze dakbedekking
Oppervlakte en inhoud
- Woonoppervlakte
- 50 m²
- Inhoud
- 170 m³
- Overige inpandige ruimte
- 4 m²
- Externe bergruimte
- 8 m²
Indeling
- Aantal kamers
- 2 kamers (1 slaapkamers)
- Aantal badkamers
- 1 badkamer en 1 apart toilet
- Badkamervoorzieningen
- Douche, toilet, wastafel, wasmachineaansluiting
- Voorzieningen
- Tv kabel, internet, opslagruimte, natuurlijke ventilatie
Energie
- Energielabel
- B
- Energielabel registratie
- 09-12-2025
Buitenruimte
- Ligging
- In woonwijk, bij ov voorziening
Bergruimte
- Schuur / berging
- Inpandig
Parkeergelegenheid
- Soort parkeergelegenheid
- Betaald parkeren, openbaar parkeren
Energieverbruik in Brunssum
Energielabel deze woning
Energielabel B
Publicatie energielabel: 09-12-2025
Stroomverbruik per jaar
(Gemiddelde appartement in Brunssum)
Gasverbruik per jaar
(Gemiddelde appartement in Brunssum)
* Cijfers zijn afkomstig van het CBS en bedoeld als indicatie en kunnen verschillen voor deze woning
Documentatie
Kadastrale kaart
Leefomgeving
Plattegronden PDF
WOZ waarderapport
BAG uittreksel
Brochure
Bezichtiging
Waardebepaling
Zoekopdracht
Alles downloaden
Zonnegrenzen bekijken
Inwoners in Brunssum
Cijfers voor postcodegebied 6443
- Totaal aantal inwoners
- 3935 inwoners
- Mannen
- 48%
- Vrouwen
- 52%
Inwoners in Brunssum
Cijfers voor postcodegebied 6443
- tot 15 jaar
- 11%
- 15 tot 25 jaar
- 9%
- 25 tot 35 jaar
- 21%
- 45 tot 65 jaar
- 30%
- 65 en ouder
- 29%
Huishoudens in Brunssum
Cijfers voor postcodegebied 6443
- Eenpersoons zonder kinderen
- 45%
- Meerpersoons zonder kinderen
- 30%
- Huishoudens zonder kinderen
- 75%
Huishoudens in Brunssum
Cijfers voor postcodegebied 6443
- Huishoudens met één kind
- 9%
- Huishoudens met meerdere kinderen
- 17%
- Huishoudens met kinderen
- 26%
Woningen in Brunssum
Cijfers voor postcodegebied 6443
- Woningen voor 1945
- 36%
- Woningen tussen 1945 en 1965
- 25%
- Woningen tussen 1965 en 1975
- 1%
- Woningen tussen 1975 en 1985
- 10%
- Woningen tussen 1985 en 1995
- 16%
Woningen in Brunssum
Cijfers voor postcodegebied 6443
- Woningen tussen 1995 en 2005
- 7%
- Woningen tussen 2005 en 2015
- 4%
- Woningen na 2015
- 1%
- Huurwoningen
- 50%
- Koopwoningen
- 50%
Overige in Brunssum
Cijfers voor postcodegebied 6443
- Gemiddelde WOZ waarde
- € 140.000,-
- Personen onder de 65 met uitkering
- 16%
Overige in Brunssum
Cijfers voor postcodegebied 6443
- Adressen per km²
- 1696
- Stedelijkheid (schaal 1 op 5)
- 80%
Korte feiten over Brunssum
Brunssum (Limburgs: Broenssem) is een stad en gemeente in het zuidoosten van Nederlands Limburg. De gemeente telt 27.773 inwoners (1 januari 2024, bron: CBS) en heeft een oppervlakte van 17,30 km². Brunssum ligt in de Oostelijke Mijnstreek en maakt deel uit van het bestuurlijke samenwerkingsverband Parkstad Limburg.
Parkstad Makelaardij
Indien u vragen heeft of u wilt een bezichtiging inplannen, dan kunt u gebruik maken van het formulier hiernaast. Er zal daarna op korte termijn contact met u worden opgenomen.
Contact opnemen
Parkstad Makelaardij
Twijfelt u of het nu het juiste moment is om uw woning in Parkstad te verkopen? Dat is begrijpelijk zeker als u nog geen nieuw huis heeft gevonden, is die stap niet eenvoudig.
Toch denkt u er misschien aan om net als buren, vrienden of collega’s een volgende stap te zetten. Misschien speelt ook mee dat de markt op dit moment gunstig is, en u juist nu een goede prijs voor uw woning kunt krijgen—een kans die zich de komende jaren mogelijk niet meer voordoet.
Laat daarom vrijblijvend en kosteloos uw woningwaarde bepalen door Parkstad Makelaardij. Zo weet u precies waar u aan toe bent.
Nieuwste reviews
-
Hoofdstraat 57
Ik kan Parkstad Makelaardij alleen maar heel warm en met overtuiging aanbevelen. Said verstaat zijn vak. Degelijke, serieuze en voortvarende...
-
Fideliolaan 1
Diligent, reliable and professional. Said did a very good job and I definitely recommend this agent.
-
Venweg 67
Zeer goede makelaar, betrokken, betrouwbaar en komt zijn afspraken na. Is tevens goed op de hoogte van de lokale markt.