- Woonoppervlakte
- Circa 79 m²
- Perceeloppervlakte
- Circa 123 m²
- Bouwjaar
- Gebouwd in 1928
- Aantal kamers
- 4 kamers (3 slaapkamers)
**Indeling:**
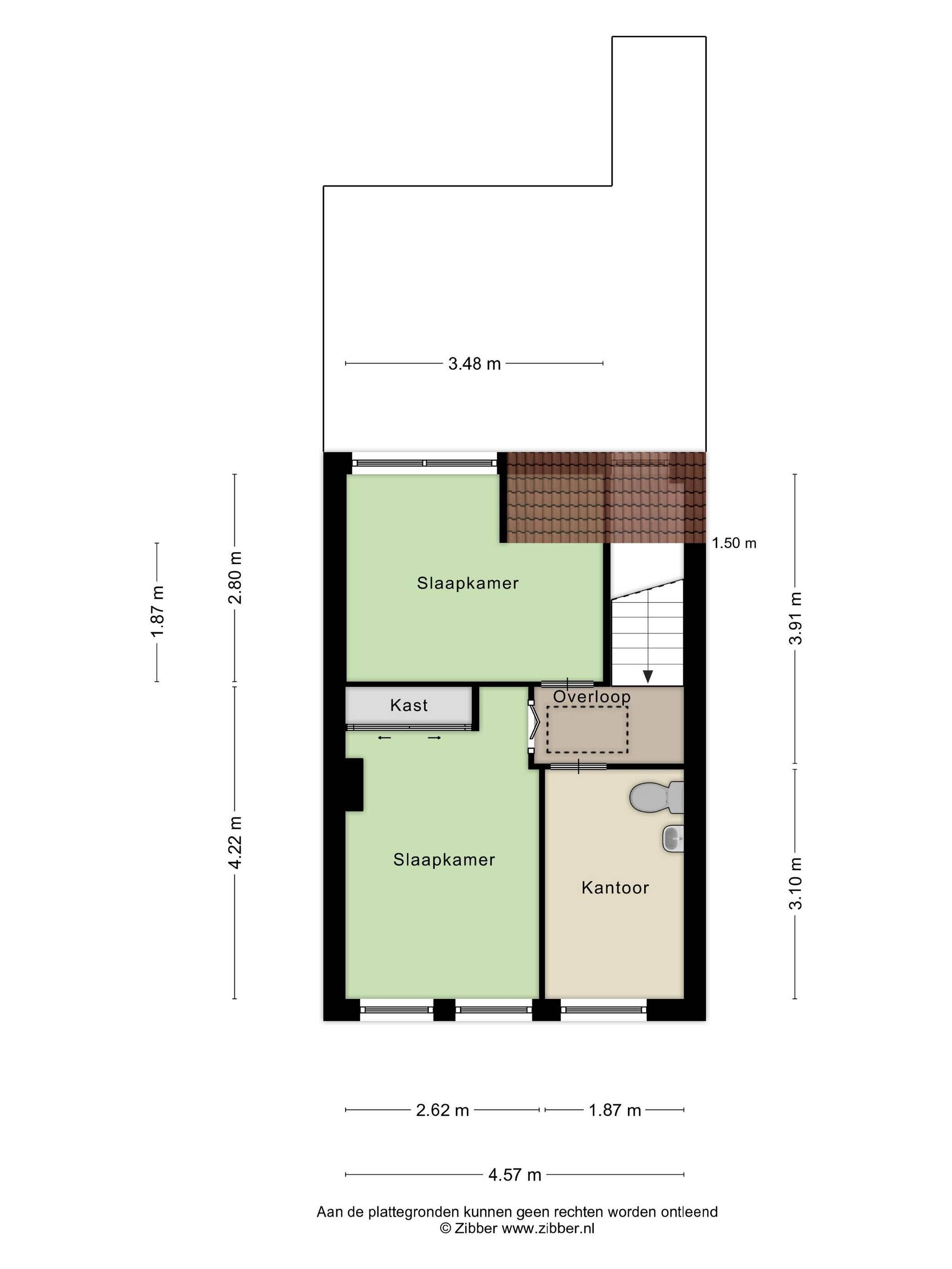
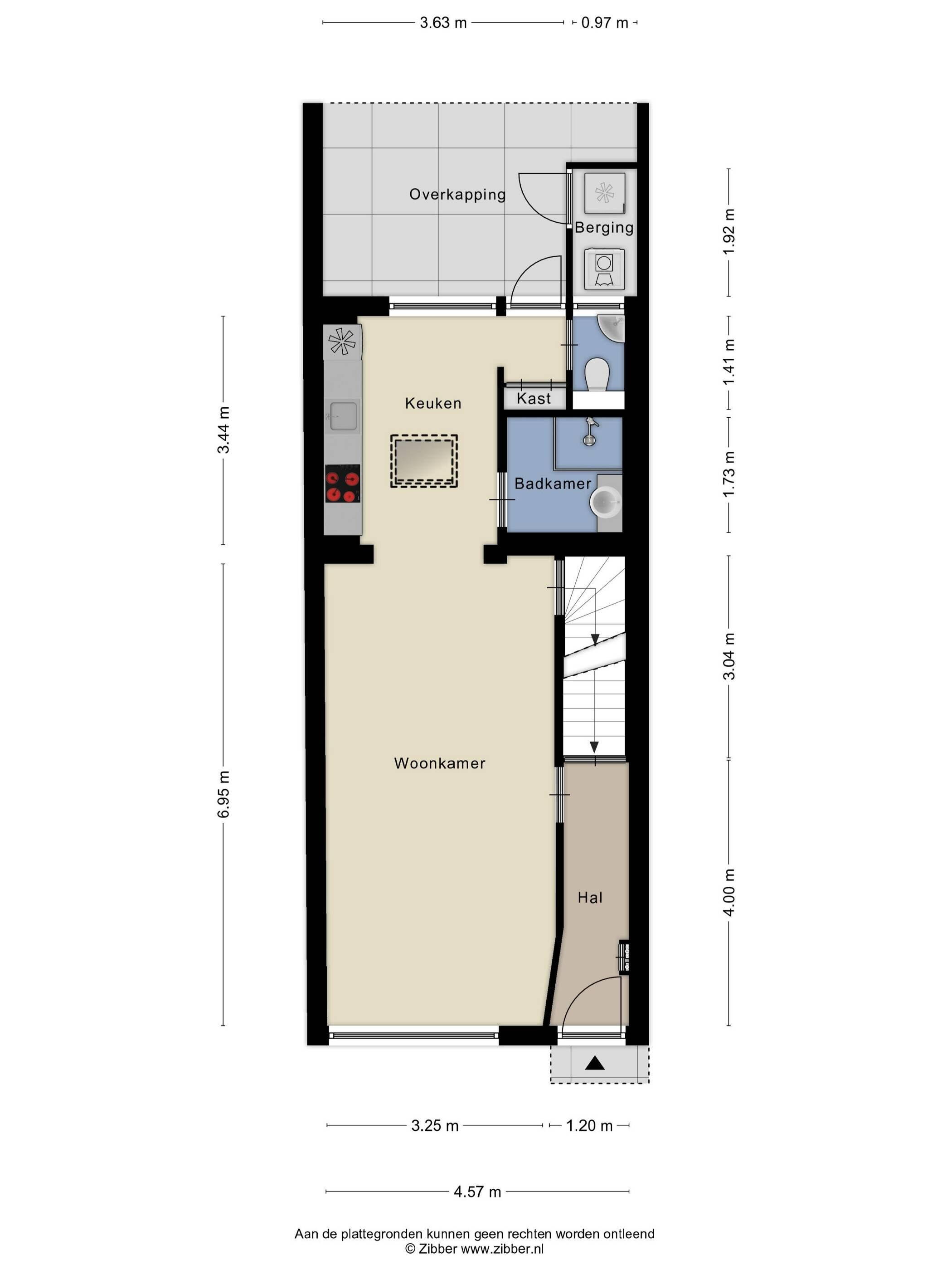
**Begane grond**
Via de voortuin kom je binnen in de hal met trapopgang en toegang tot de kelder. De doorzonwoonkamer is ruim en licht, ideaal om gezellig te verblijven. De keuken is functioneel ingericht en biedt toegang tot de diepe achtertuin. De badkamer bevindt zich eveneens op de begane grond en is voorzien van een douche, toilet en wastafel.
**Eerste verdieping**
Op de eerste verdieping bevinden zich drie slaapkamers van verschillende formaten:
* **Slaapkamer 1**: ca. 4,22 m x 2,62 m
* **Slaapkamer 2**: ca. 2,80 m x 3,48 m
* **Slaapkamer 3 (kantoor mogelijk)**: ca. 3,10 m x 1,87 m
De woning heeft een achtertuin, ideaal voor ontspanning en buitenactiviteiten. Aan de voorzijde beschikt de woning over een voortuin, wat zorgt voor extra privacy.
✔ Ruime tussenwoning met 3 slaapkamers
✔ Diepe achtertuin
✔ Badkamer op de begane grond
✔ Praktische kelder en berging
✔ Gelegen in een rustige en kindvriendelijke buurt
Bent u op zoek naar een fijne woning in Brunssum? Neem dan contact op met Parkstad Makelaardij voor een bezichtiging!
Alle maten zijn circa maten en aan deze presentatie kunnen geen rechten worden ontleend;
De waarborgsom/bankgarantie is 10% van de koopsom. De koper dient deze binnen 2 weken nadat het financieringsvoorbehoud is verlopen bij de desbetreffende notaris te deponeren;
Ter bescherming van de belangen van zowel koper als verkoper, wordt uitdrukkelijk gesteld dat een koopovereenkomst met betrekking tot deze onroerende zaak eerst dan tot stand komt nadat koper en verkoper de koopovereenkomst hebben getekend (“schriftelijkheidsvereiste”)\*\*
Overdracht
- Vraagprijs
- € 215.000 k.k.
- Status
- Verkocht
Bouw
- Object type
- Eengezinswoning, tussenwoning
- Soort bouw
- Bestaande bouw
- Bouwjaar
- 1928
- Soort dak
- Zadeldak bedekt met pannen
Oppervlakte en inhoud
- Woonoppervlakte
- 79 m²
- Perceeloppervlakte
- 123 m²
- Inhoud
- 324 m³
- Overige inpandige ruimte
- 15 m²
- Externe bergruimte
- 8 m²
- Gebouwgeb. buitenruimte
- 12 m²
Indeling
- Aantal kamers
- 4 kamers (3 slaapkamers)
- Aantal badkamers
- 1 badkamer en 2 aparte toiletten
- Badkamervoorzieningen
- Toilet, douche, wastafel
- Voorzieningen
- Tv kabel, dakraam, internet, cctv
Energie
- Energielabel
- D
- Energielabel registratie
- 25-11-2021
- Isolatie
- Dakisolatie, dubbel glas
- Verwarming
- CV-ketel
Buitenruimte
- Ligging
- Aan rustige weg, in woonwijk
- Tuin
- Achtertuin, voortuin
- Afmetingen achtertuin
- 45 m² (9 meter diep en 5 meter breed)
- ligging tuin
- en bereikbaar via achterom
Bergruimte
- Schuur / berging
- Vrijstaand hout
Parkeergelegenheid
- Soort parkeergelegenheid
- Openbaar parkeren, op eigen terrein
Energieverbruik in Brunssum
Energielabel deze woning
Energielabel D
Publicatie energielabel: 25-11-2021
Stroomverbruik per jaar
(Gemiddelde tussenwoning in Brunssum)
Gasverbruik per jaar
(Gemiddelde tussenwoning in Brunssum)
* Cijfers zijn afkomstig van het CBS en bedoeld als indicatie en kunnen verschillen voor deze woning
Indicatie hypotheeklasten
Eigen inleg:
Spaargeld / overwaarde
Rente:
Laagste 10-jaars rente
Laagste 10-jaars rente
2,98% - Centraal Beheer Groen... - NHG
3,25% - Centraal Beheer Groen... - 80%
Laagste 20-jaars rente
3,29% - Centraal Beheer Groen... - NHG
3,52% - Centraal Beheer Groen... - 80%
Laagste 30-jaars rente
3,41% - Centraal Beheer Groen... - NHG
3,74% - Centraal Beheer Groen... - 80%
Hypotheek:
Bruto maandlasten: € 0 p/m
Netto maandlasten: € 0 p/m
Hoe berekenen we dit?
Het rentepercentage is gebaseerd op de laagste 10 jaars vaste rente voor één hypotheekdeel. De vermelde rente (2.98% met NHG) is gecontroleerd op 30-12-2025. Deze berekening is gebaseerd op een annuïteitenhypotheek die volledig wordt afgelost, waarbij de maandlasten gedurende de gehele looptijd gelijk blijven. De werkelijke rente en netto maandlasten kunnen variëren, afhankelijk van uw persoonlijke situatie en de hypotheekverstrekker. Raadpleeg een financieel adviseur voor een nauwkeurige berekening en advies. Aan deze berekening kunnen geen rechten worden ontleend; het dient enkel als indicatie.
Documentatie
Kadastrale kaart
Leefomgeving
Brochure
WOZ waarderapport
BAG uittreksel
Plattegronden PDF
Bezichtiging
Bod uitbrengen
Waardebepaling
Zoekopdracht
Alles downloaden
Zonnegrenzen bekijken
Op de kaart
Inwoners in Brunssum
Cijfers voor postcodegebied 6445
- Totaal aantal inwoners
- 2845 inwoners
- Mannen
- 51%
- Vrouwen
- 49%
Inwoners in Brunssum
Cijfers voor postcodegebied 6445
- tot 15 jaar
- 13%
- 15 tot 25 jaar
- 11%
- 25 tot 35 jaar
- 24%
- 45 tot 65 jaar
- 35%
- 65 en ouder
- 18%
Huishoudens in Brunssum
Cijfers voor postcodegebied 6445
- Eenpersoons zonder kinderen
- 29%
- Meerpersoons zonder kinderen
- 35%
- Huishoudens zonder kinderen
- 64%
Huishoudens in Brunssum
Cijfers voor postcodegebied 6445
- Huishoudens met één kind
- 7%
- Huishoudens met meerdere kinderen
- 29%
- Huishoudens met kinderen
- 36%
Woningen in Brunssum
Cijfers voor postcodegebied 6445
- Woningen voor 1945
- 39%
- Woningen tussen 1945 en 1965
- 39%
- Woningen tussen 1965 en 1975
- 7%
- Woningen tussen 1975 en 1985
- 5%
- Woningen tussen 1985 en 1995
- 1%
Woningen in Brunssum
Cijfers voor postcodegebied 6445
- Woningen tussen 1995 en 2005
- 2%
- Woningen tussen 2005 en 2015
- 7%
- Woningen na 2015
- 1%
- Huurwoningen
- 10%
- Koopwoningen
- 90%
Overige in Brunssum
Cijfers voor postcodegebied 6445
- Gemiddelde WOZ waarde
- € 161.000,-
- Personen onder de 65 met uitkering
- 10%
Overige in Brunssum
Cijfers voor postcodegebied 6445
- Adressen per km²
- 1229
- Stedelijkheid (schaal 1 op 5)
- 60%
Korte feiten over Brunssum
Brunssum (Limburgs: Broenssem) is een stad en gemeente in het zuidoosten van Nederlands Limburg. De gemeente telt 27.773 inwoners (1 januari 2024, bron: CBS) en heeft een oppervlakte van 17,30 km². Brunssum ligt in de Oostelijke Mijnstreek en maakt deel uit van het bestuurlijke samenwerkingsverband Parkstad Limburg.
Parkstad Makelaardij
Indien u vragen heeft of u wilt een bezichtiging inplannen, dan kunt u gebruik maken van het formulier hiernaast. Er zal daarna op korte termijn contact met u worden opgenomen.
Contact opnemen
Parkstad Makelaardij
Twijfelt u of het nu het juiste moment is om uw woning in Parkstad te verkopen? Dat is begrijpelijk zeker als u nog geen nieuw huis heeft gevonden, is die stap niet eenvoudig.
Toch denkt u er misschien aan om net als buren, vrienden of collega’s een volgende stap te zetten. Misschien speelt ook mee dat de markt op dit moment gunstig is, en u juist nu een goede prijs voor uw woning kunt krijgen—een kans die zich de komende jaren mogelijk niet meer voordoet.
Laat daarom vrijblijvend en kosteloos uw woningwaarde bepalen door Parkstad Makelaardij. Zo weet u precies waar u aan toe bent.
Nieuwste reviews
-
Hoofdstraat 57
Ik kan Parkstad Makelaardij alleen maar heel warm en met overtuiging aanbevelen. Said verstaat zijn vak. Degelijke, serieuze en voortvarende...
-
Fideliolaan 1
Diligent, reliable and professional. Said did a very good job and I definitely recommend this agent.
-
Venweg 67
Zeer goede makelaar, betrokken, betrouwbaar en komt zijn afspraken na. Is tevens goed op de hoogte van de lokale markt.