- Woonoppervlakte
- Circa 121 m²
- Inhoud
- Circa 422 m³
- Bouwjaar
- Gebouwd in 1981
- Aantal kamers
- 4 kamers (3 slaapkamers)
KLUSSERS OPGELET!
De Leyens te Zoetermeer. Ben jij op zoek naar een ruime top maisonnette in de meest populaire wijk van Zoetermeer? Deze sfeervolle 4-kamer woning heeft 2 verdiepingen, 3 slaapkamers en een heerlijk zonnig terras. De woning is gedateerd en er moet dus geklust worden!
Het appartement is gesitueerd in een gezellig appartementencomplex boven het winkelcentrum 'De Leyens', met winkels zoals de Albert Heijn, Lidl en de Kruidvat. Verder zijn er verschillende eetgelegenheden, veel parkeergelegenheid en ligt het openbaar vervoer om de hoek en zijn het Stadshart, Langeland ziekenhuis en het natuurgebied Noord-Aa binnen enkele minuten te bereiken. Al met al, een heerlijke plek om te wonen!
Indeling Begane grond: Centrale entree, bellentableau en trappenhuis.
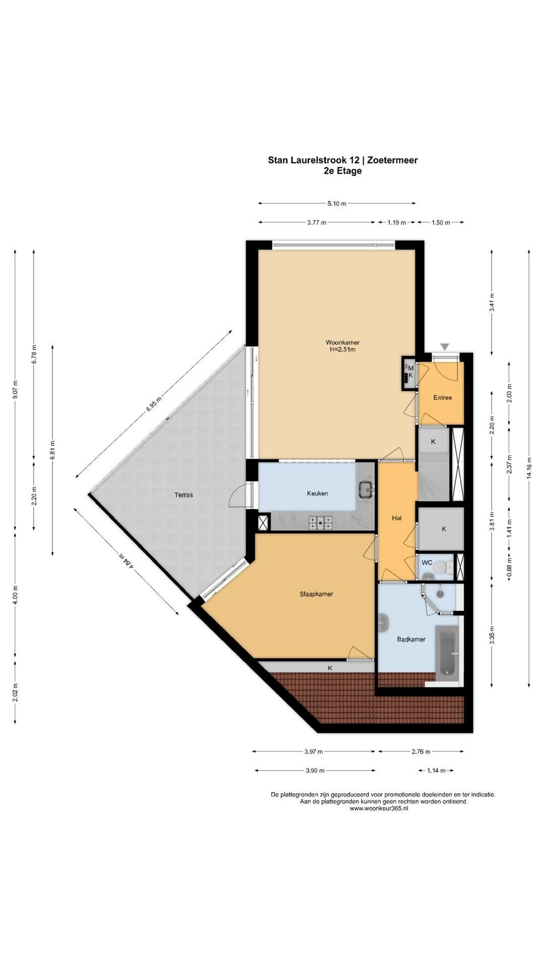
2e verdieping: Entree van het appartement. Hal met garderobe, meterkast en bergkast (onder trap). Grote L-vormige open keuken. Terras-gerichte lichte woonkamer met schuifpui naar het royale zonnige terras. Het terras ligt op het zuidoosten waardoor u gedurende de dag kan genieten van de zon. Grote slaapkamer (grenzend aan terras) met ruime berging. Ruim opgezette badkamer met separaat bad, douche en wastafelmeubel. Toilet met fonteintje. Ruime berging met o.a. opstelplaats voor een wasmachine en droger.
3e verdieping: Overloop met opstelplaats cv-ketel en toegang tot een praktische vliering middels een vlizotrap. Ruime slaapkamer aan de achterzijde met Veluxraam. Lichte slaapkamer aan de voorzijde met eveneens een Veluxraam. Ruime berging.
Bijzonderheden
- Gebruiksoppervlakte circa 120m2;
- Eigen grond;
- 3 slaapkamers;
- zeer veel bergruimte én mogelijkheid om een 4e slaapkamer te creëren;
- Ruim zonnig terras;
- Eigen (fietsen)berging op begane grond;
- Bijdrage VvE € 298,88 per maand;
- Oplevering kan direct.
Toegang tot de bergingen via een aparte entree op de begane grond aan de zijkant van het complex.
Bovenstaande informatie is door ons met de hoogstnodige zorgvuldigheid samengesteld. Door ons kantoor wordt echter geen enkele aansprakelijkheid aanvaard voor enige onvolledigheid, onjuistheid of anderszins, dan wel de gevolgen daarvan. Alle opgegeven maten en oppervlakten zijn indicatief. De woning is gemeten met gebruikmaking van de Meetinstructie, die is gebaseerd op de normen zoals vastgelegd in NEN 2580. De Meetinstructie is bedoeld om een meer eenduidige manier van meten toe te passen voor het geven van een indicatie van gebruiksoppervlakte. De Meetinstructie sluit verschillen in meetuitkomsten niet volledig uit, door bijvoorbeeld interpretatieverschillen, afrondingen of beperkingen bij het uitvoeren van de meting. Hoewel wij de woning zorgvuldig hebben opgemeten, wordt noch door ons, noch door de verkoper enige aansprakelijkheid aanvaard voor afwijkingen in de opgegeven maten. Koper wordt in de gelegenheid gesteld om de opgegeven maten te (laten) controleren. Lees de volledige omschrijving
Overdracht
- Vraagprijs
- € 299.000 k.k.
- Status
- Onder bod
- Aanvaarding
- In overleg
- Bijdrage VvE
- € 298,88 per maand
Bouw
- Object type
- Maisonnette (dubbel bovenhuis)
- Soort bouw
- Bestaande bouw
- Bouwjaar
- 1981
- Soort dak
- Zadeldak bedekt met pannen
Oppervlakte en inhoud
- Woonoppervlakte
- 121 m²
- Inhoud
- 422 m³
- Externe bergruimte
- 6 m²
- Gebouwgeb. buitenruimte
- 24 m²
Indeling
- Aantal kamers
- 4 kamers (3 slaapkamers)
- Aantal badkamers
- 1 badkamer en 1 apart toilet
- Aantal woonlagen
- 2 woonlagen
- Gelegen op
- 2e woonlaag
- Voorzieningen
- Glasvezelkabel en schuifpui
Energie
- Energielabel
- C
- Energielabel registratie
- 8-12-2025
- Isolatie
- Dubbel glas
- Verwarming
- Cv-ketel
- Warm water
- Cv-ketel
- Cv ketel
- Atag (gas gestookt uit 2012, eigendom)
Buitenruimte
- Ligging
- In woonwijk
- Balkon / dakterras
- Dakterras aanwezig
Bergruimte
- Schuur / berging
- Inpandig
Parkeergelegenheid
- Soort parkeergelegenheid
- Openbaar parkeren
VvE checklist
- Inschrijving KvK
- Ja
- Jaarlijkse vergadering
- Ja
- Periodieke bijdrage
- Ja (€ 298,88 per maand)
- Reservefonds aanwezig
- Ja
- Onderhoudsplan
- Ja
- Opstalverzekering
- Ja
Energieverbruik in Zoetermeer
Energielabel deze woning
Energielabel C
Publicatie energielabel: 8-12-2025
Stroomverbruik per jaar
(Gemiddelde Maisonnette (dubbel bovenhuis) in Zoetermeer)
Gasverbruik per jaar
(Gemiddelde Maisonnette (dubbel bovenhuis) in Zoetermeer)
* Cijfers zijn afkomstig van het CBS en bedoeld als indicatie en kunnen verschillen voor deze woning
Indicatie hypotheeklasten
Eigen inleg:
Spaargeld / overwaarde
Rente:
Laagste 10-jaars rente
Laagste 10-jaars rente
2,98% - Centraal Beheer Groen... - NHG
3,2% - Argenta Groen Hypotheek... - 80%
Laagste 20-jaars rente
3,19% - Centraal Beheer Groen... - NHG
3,57% - Argenta Groen Hypothee... - 80%
Laagste 30-jaars rente
3,34% - Centraal Beheer Groen... - NHG
3,74% - Argenta Groen Hypothee... - 80%
Hypotheek:
Bruto maandlasten: € 0 p/m
Netto maandlasten: € 0 p/m
Hoe berekenen we dit?
Het rentepercentage is gebaseerd op de laagste 10 jaars vaste rente voor één hypotheekdeel. De vermelde rente (2.98% met NHG) is gecontroleerd op 18-12-2025. Deze berekening is gebaseerd op een annuïteitenhypotheek die volledig wordt afgelost, waarbij de maandlasten gedurende de gehele looptijd gelijk blijven. De werkelijke rente en netto maandlasten kunnen variëren, afhankelijk van uw persoonlijke situatie en de hypotheekverstrekker. Raadpleeg een financieel adviseur voor een nauwkeurige berekening en advies. Aan deze berekening kunnen geen rechten worden ontleend; het dient enkel als indicatie.
Documentatie
Kadastrale kaart
Leefomgeving
WOZ waarderapport
BAG uittreksel
Brochure
Plattegronden PDF
Splitsingsakte
540-afschrift-verbetering-wijziging-hoofdsplitsing-de-leyens-i-compressed
540-huishoudelijk-reglement
540-splitsingsakte-vve-de-leyensi-zoetermeer
540-splitsingstekening
Agenda-dinsdag-3-juni-2025
Notulen-dinsdag-3-juni-2025
Agenda-woensdag-9-april-2025
Notulen-woensdag-9-april-2025
585-jaarrekening-2024
Mjop-nieuw-vve-leyens-i
Mjop-samengesteld
Notulen-11-december-2024
T-ztm-n1d-2725pd0105-0637100000150875-vv-vve-2
Polis-zicht-2025
Polisblad-glasverzekering-vve-de-leyens-i
Afkoop-en-daarmee-opzegging-huurcontract-feenstra-cv-ketel-stan-laurelstrook-12-zoetermeer
Makelaar Zoetermeer
Bezoek onze website
Bezichtiging
Bod uitbrengen
Waardebepaling
Zoekopdracht
Alles downloaden
Zonnegrenzen bekijken
Op de kaart
Inwoners in Zoetermeer
Cijfers voor postcodegebied 2726
- Totaal aantal inwoners
- 6165 inwoners
- Mannen
- 49%
- Vrouwen
- 51%
Inwoners in Zoetermeer
Cijfers voor postcodegebied 2726
- tot 15 jaar
- 15%
- 15 tot 25 jaar
- 10%
- 25 tot 35 jaar
- 24%
- 45 tot 65 jaar
- 26%
- 65 en ouder
- 24%
Huishoudens in Zoetermeer
Cijfers voor postcodegebied 2726
- Eenpersoons zonder kinderen
- 38%
- Meerpersoons zonder kinderen
- 29%
- Huishoudens zonder kinderen
- 67%
Huishoudens in Zoetermeer
Cijfers voor postcodegebied 2726
- Huishoudens met één kind
- 8%
- Huishoudens met meerdere kinderen
- 24%
- Huishoudens met kinderen
- 32%
Woningen in Zoetermeer
Cijfers voor postcodegebied 2726
- Woningen voor 1945
- 1%
- Woningen tussen 1945 en 1965
- 1%
- Woningen tussen 1965 en 1975
- 1%
- Woningen tussen 1975 en 1985
- 96%
- Woningen tussen 1985 en 1995
- 1%
Woningen in Zoetermeer
Cijfers voor postcodegebied 2726
- Woningen tussen 1995 en 2005
- 3%
- Woningen tussen 2005 en 2015
- 1%
- Woningen na 2015
- 1%
- Huurwoningen
- 50%
- Koopwoningen
- 50%
Overige in Zoetermeer
Cijfers voor postcodegebied 2726
- Gemiddelde WOZ waarde
- € 224.000,-
- Personen onder de 65 met uitkering
- 8%
Overige in Zoetermeer
Cijfers voor postcodegebied 2726
- Adressen per km²
- 2941
- Stedelijkheid (schaal 1 op 5)
- 100%
Indien u vragen heeft of u wilt een bezichtiging inplannen, dan kunt u gebruik maken van het formulier hiernaast. Er zal daarna op korte termijn contact met u worden opgenomen.
Rietvoornvijver 12
2492 MP, Den Haag
070 - 4445 551 info@smashmakelaars.nl www.smashmakelaars.nlTulpentuin 26
2272 XK, Voorburg
Rietvoornvijver 12
2492 MP, Den Haag
Contact opnemen
Over SMASH Makelaars
SMASH Makelaars is een jong en dynamisch makelaarskantoor met uitgebreide ervaring in aankoop en verkoop. Opgericht in 2020, streven wij ernaar om ons te onderscheiden van traditionele makelaarskantoren. Na ervaring opgedaan te hebben bij een ander kantoor in de regio, hebben we besloten onze krachten te bundelen en ons te onderscheiden door onze unieke werkwijze. Onze kernwaarden zijn betrouwbaarheid, betrokkenheid en toewijding. We bieden één vast contactpersoon en zijn altijd bereikbaar, terwijl we deskundig, betrouwbaar en gedegen advies geven dat aansluit bij uw persoonlijke wensen.
SMASH Makelaars: persoonlijke relaties en samenwerking
Het kopen of verkopen van een huis gaat verder dan alleen zakelijke aspecten. Het draait om emoties en het gevoel van 'thuiskomen'. Bij SMASH Makelaars helpen we u graag met meedenken, meekijken, vooruitdenken en vooral samen het beste resultaat bereiken!
Bij SMASH Makelaars bent u geen nummer, maar bouwt u een persoonlijke relatie op. Geen assistenten of junior makelaars: wanneer u kiest voor SMASH Makelaars, is uw huis gegarandeerd in handen van Sander of Alexandra zelf! Elke woning is voor ons een nieuwe uitdaging, of het nu gaat om verkoop, aankoop of waardebepaling. Dit leidt niet alleen tot de leukste woningen, maar ook tot de leukste opdrachtgevers.
Wilt u een woning verkopen in de omgeving van Leidschendam-Voorburg of Den Haag? Neem direct contact met ons op!
Nieuwste reviews
-
Willem Timmerman
We hebben via Smash Makelaar met Sander als aankoopmakelaar onze woning in Voorburg gekocht, en we zijn écht ontzettend tevreden. De prijs-k...
-
Koen Vandongen
Smash was de verkopend makelaar van onze nieuwe woning in Pijnacker. We hebben veel met Sander geschakeld en hij heeft ons altijd op een sne...
-
Luna Marchand
Sander is onze aankoopmakelaar geweest bij de koop van onze eerste woning. Hij is heel eerlijk en zal niet proberen je zo snel mogelijk aan...