- Woonoppervlakte
- Circa 204 m²
- Perceeloppervlakte
- Circa 343 m²
- Bouwjaar
- Gebouwd in 1975
- Aantal kamers
- 8 kamers (7 slaapkamers)
RUIMTE - RUIMTE - RUIMTE met 204m² woonoppervlak!
DEZE ROYALE WONING BESCHIKT OVER 7 SLAAPKAMERS, GARAGE MET VLIERING EN ZONNIGE TUIN
Welkom bij deze verrassend VRIJSTAANDE WONING MET GARAGE met maar liefst 204 m² woonoppervlak en 7 slaapkamers. Het huis ligt op een mooie hoek locatie met vrij uitzicht in de straat.
De woning beschikt over een lichte woonkamer met gashaard, een ruime keuken en een vernieuwde badkamer (2022) met luxe inloopdouche, sunshower en dubbele wastafel. Dankzij de vele ramen en de kunststof dakkapel uit 2022 zijn ook de kamers op de tweede verdieping heerlijk licht. Met zoveel ruimte is dit huis ideaal voor een groot gezin of voor wie thuis werken en hobby’s wil combineren.
Deze traditioneel gebouwde woning is alleen via de garage geschakeld met de buren en biedt naast de vele ruimte ook volop comfort en duurzaamheid met energielabel B en 10 zonnepanelen. De zonnige tuin op het zuidoosten en ruime parkeergelegenheid op eigen terrein maken het plaatje compleet.
Check de EXCLUSIEVE EIGEN SITE VAN DE WONING (bremlaan26.nl) voor meer informatie over de woning en de omgeving via de site van EV Wonen Makelaardij.
DE LOCATIE:
Heel centraal in de rustige Bomenwijk met aan de voorzijde een brede groenstrook en met alle voorzieningen binnen handbereik. Op een steenworp van het overdekte winkelcentrum Middenwaard, het Coolplein met diverse horeca dus winkels, de bakker, het kopje koffie, alles is in de buurt. Op loopafstand van het treinstation, diverse (basis) scholen en speeltuintjes. En binnen 5 minuten fietsen ben je in Centrumwaard, het oude centrum van Heerhugowaard.
Ook zijn de uitvalswegen om met de auto richting Alkmaar, Hoorn en Amsterdam te gaan heel dichtbij. Een fijne plek waar kinderen veilig kunnen spelen, maar waar je ook profiteert van een snelle verbinding naar de stad.
BEZICHTIGING: plan eenvoudig een afspraak via Funda of de website van EV Wonen Makelaardij. We laten deze bijzondere woning graag aan je zien!
INDELING:
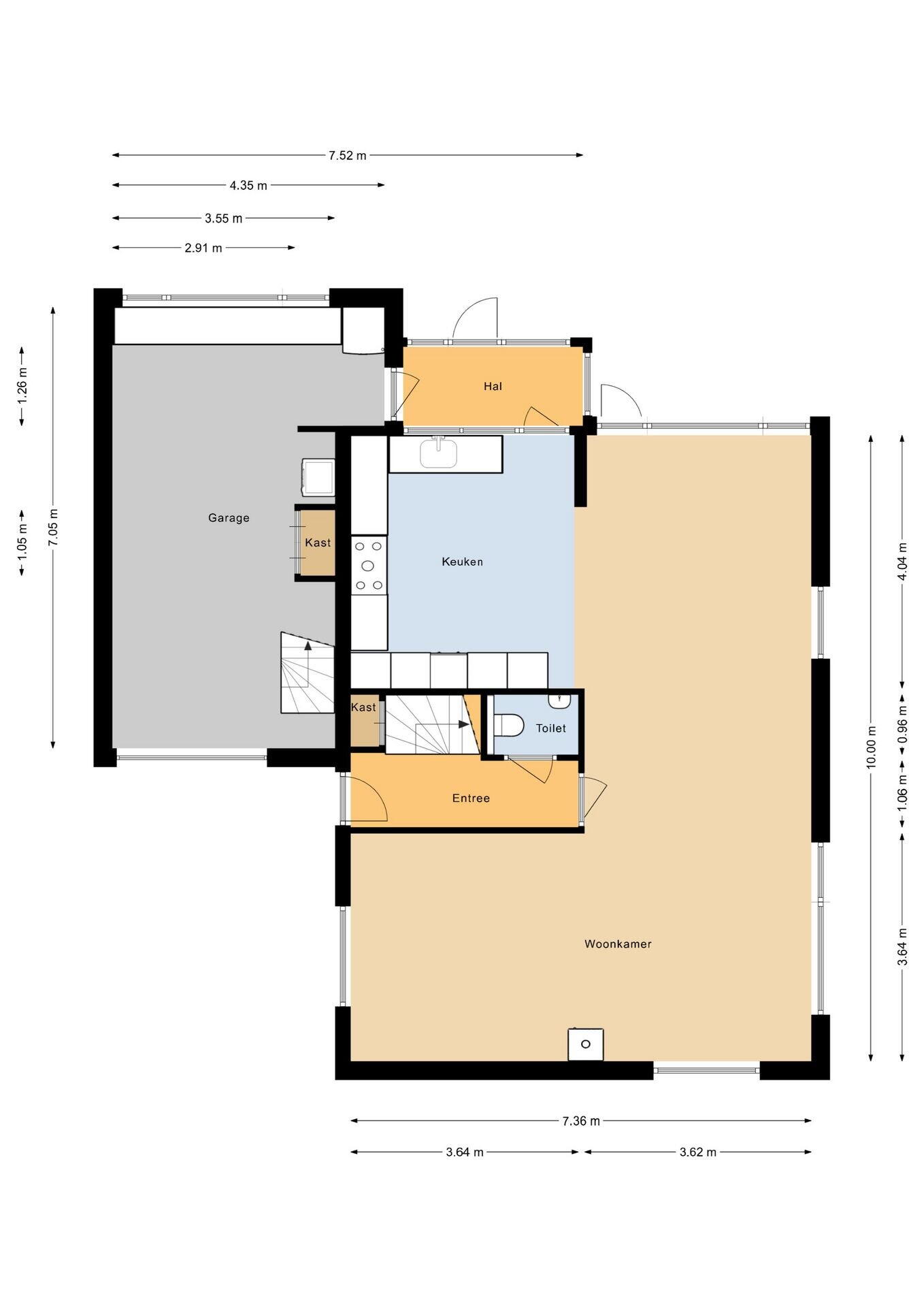
BEGANE GROND:
De ruime woonkamer is voorzien van een PVC vloer, gestucte wanden en plafond, een sfeervolle gashaard en een loopdeur met hor naar de zonnige tuin. De keuken (15 m²) beschikt over een 5-pits gaskookplaat, boiler voor de heet waterkraan, combimagnetron, vaatwasser, koelkast en een dubbele rvs-spoelbak. Hoewel de keuken gedateerd is, biedt de ruimte volop mogelijkheden om deze naar eigen smaak te moderniseren.
1e VERDIEPING:
Op de eerste verdieping (betonvloer) bevinden zich vier slaapkamers, voorzien van een PVC vloer. De achterste kamers zijn glad gestuukt en hebben beide een toegangsdeur naar het balkon. Tevens beschikt er 1 over een ruime inloopkast. De badkamer is in 2022 volledig vernieuwd en voorzien van een ruime inloopdouche met regendouche, sunshower en handdouche, dubbele wastafel, toilet, designradiator en raam voor natuurlijke ventilatie.
2e VERDIEPING
De tweede verdieping biedt nog eens drie slaapkamers en een aparte bergruimte met de cv-installatie. Dankzij de kunststof dakkapel uit 2022 (nog af te werken), drie dakramen en een groot zijraam zijn de kamers licht en praktisch in te delen. Deze verdieping is afgewerkt met een laminaatvloer en radiatoren. Verder is er nog een extra bergruimte op de vliering die met een vlizotrap bereikbaar is. In totaal beschikt de woning dus over zeven slaapkamers.
GARAGE & BUITENRUIMTE:
De woning staat op een perceel van 343 m² met rondom een verzorgde tuin. De achtertuin is circa 124 m² groot, gelegen op het zuidoosten, biedt volop privacy en bereikbaar via een brede poort aan de zijkant (ideaal voor een eventuele motor). Het balkon/dakterras aan de achterzijde maakt het buitenleven compleet.
De garage (27 m²) is voorzien van een tegelvloer, wasmachine- en drogeraansluiting, vaste trap naar een royale bergzolder of klusruimte en een elektrische kanteldeur. Parkeren kan zowel in de garage als met twee auto’s op eigen terrein voor de woning.
DUURZAAMHEID & TECHNIEK
De woning is goed geïsoleerd, bodemisolatie HR++ thermoEPS (bolletjes), deels met kunststof gevelbeplating en 10 zonnepanelen. Daarnaast zijn aanwezig: een Bosch cv-ketel (2010) en buitenzonwering (screen).
BIJZONDERHEDEN:
- Vrijstaande woning met maar liefst 7 slaapkamers
- Royale garage met vliering en elektrische kanteldeur
- Badkamer vernieuwd in 2022 met luxe inloopdouche en sunshower
- Dakkapel (kunststof, 2022) op de tweede verdieping
- Zonnige tuin op het zuidoosten met veel privacy
- Voorzien van 10 zonnepanelen (255 wp/2014)
- Parkeren op eigen terrein voor 2 auto’s
- Voortuin in 2023 vernieuwd
Ben je op zoek naar een ruime en centraal gelegen gezinswoning met volop mogelijkheden? Dan is Bremlaan 26 absoluut een bezichtiging waard. Maak snel een afspraak en ervaar zelf het comfort en ruimte van deze woning. Lees de volledige omschrijving
Overdracht
- Vraagprijs
- € 719.000 k.k.
- Status
- Onder bod
- Aanvaarding
- In overleg
Bouw
- Object type
- Eengezinswoning, vrijstaande woning
- Soort bouw
- Bestaande bouw
- Bouwjaar
- 1975
- Soort dak
- Zadeldak bedekt met pannen
Oppervlakte en inhoud
- Woonoppervlakte
- 204 m²
- Perceeloppervlakte
- 343 m²
- Inhoud
- 824 m³
- Gebouwgeb. buitenruimte
- 5 m²
Indeling
- Aantal kamers
- 8 kamers (7 slaapkamers)
- Aantal badkamers
- 1 badkamer en 1 apart toilet
- Badkamervoorzieningen
- Dubbele wastafel, inloopdouche, en toilet
- Aantal woonlagen
- 3 woonlagen en een zolder
- Voorzieningen
- Buitenzonwering, dakraam, glasvezelkabel, natuurlijke ventilatie, en zonnepanelen
Energie
- Energielabel
- B
- Isolatie
- Dakisolatie, grotendeels dubbelglas en muurisolatie
- Verwarming
- Cv-ketel
- Warm water
- Cv-ketel
- Cv ketel
- Bosch ( combiketel uit 2010, eigendom)
Buitenruimte
- Ligging
- Aan rustige weg, in centrum en in woonwijk
- Balkon / dakterras
- Balkon aanwezig
- Tuin
- Achtertuin, voortuin en zijtuin
- Afmetingen achtertuin
- 124 m² (9,50 meter diep en 13,00 meter breed)
- ligging tuin
- Gelegen op het zuidoosten bereikbaar via achterom
Garage
- Soort garage
- Aangebouwde stenen garage
- Capaciteit
- 1 auto
- Voorzieningen
- Elektrische deur, vliering, elektra en stromend stromend water
Parkeergelegenheid
- Soort parkeergelegenheid
- Betaald parkeren en op eigen terrein
Actueel energieverbruik
Energielabel deze woning
Energielabel B
Publicatie energielabel:
Stroomverbruik per jaar
Bremlaan 26, Heerhugowaard
Gasverbruik per jaar
Bremlaan 26, Heerhugowaard
Indicatie hypotheeklasten
Eigen inleg:
Spaargeld / overwaarde
Rente:
Laagste 10-jaars rente
Laagste 10-jaars rente
2,98% - Centraal Beheer Groen... - NHG
3,2% - Argenta Groen Hypotheek... - 80%
Laagste 20-jaars rente
3,19% - Centraal Beheer Groen... - NHG
3,57% - Argenta Groen Hypothee... - 80%
Laagste 30-jaars rente
3,34% - Centraal Beheer Groen... - NHG
3,74% - Argenta Groen Hypothee... - 80%
Hypotheek:
Bruto maandlasten: € 0 p/m
Netto maandlasten: € 0 p/m
Hoe berekenen we dit?
Het rentepercentage is gebaseerd op de laagste 10 jaars vaste rente voor één hypotheekdeel. De vermelde rente (3.2% zonder NHG) is gecontroleerd op 18-12-2025. Deze berekening is gebaseerd op een annuïteitenhypotheek die volledig wordt afgelost, waarbij de maandlasten gedurende de gehele looptijd gelijk blijven. De werkelijke rente en netto maandlasten kunnen variëren, afhankelijk van uw persoonlijke situatie en de hypotheekverstrekker. Raadpleeg een financieel adviseur voor een nauwkeurige berekening en advies. Aan deze berekening kunnen geen rechten worden ontleend; het dient enkel als indicatie.
Documentatie
Kadastrale kaart
Leefomgeving
Brochure woning
BAG uittreksel
Plattegronden PDF
Lijst van zaken
Meetrapport
WOZ waarderapport
Vragenlijst-verkoop-woning-dec-2025
Bezoek onze website
Bezichtiging
Bod uitbrengen
Waardebepaling
Zoekopdracht
Alles downloaden
Zonnegrenzen bekijken
Op de kaart
Inwoners in Heerhugowaard
Cijfers voor postcodegebied 1702
- Totaal aantal inwoners
- 59045 inwoners
- Mannen
- 51%
- Vrouwen
- 49%
Inwoners in Heerhugowaard
Cijfers voor postcodegebied 1702
- tot 15 jaar
- 17%
- 15 tot 25 jaar
- 13%
- 25 tot 35 jaar
- 25%
- 45 tot 65 jaar
- 27%
- 65 en ouder
- 18%
Huishoudens in Heerhugowaard
Cijfers voor postcodegebied 1702
- Eenpersoons zonder kinderen
- 32%
- Meerpersoons zonder kinderen
- 34%
- Huishoudens zonder kinderen
- 66%
Huishoudens in Heerhugowaard
Cijfers voor postcodegebied 1702
- Huishoudens met één kind
- 9%
- Huishoudens met meerdere kinderen
- 25%
- Huishoudens met kinderen
- 34%
Woningen in Heerhugowaard
Cijfers voor postcodegebied 1702
- Woningen voor 1945
- 2%
- Woningen tussen 1945 en 1965
- 2%
- Woningen tussen 1965 en 1975
- 68%
- Woningen tussen 1975 en 1985
- 6%
- Woningen tussen 1985 en 1995
- 5%
Woningen in Heerhugowaard
Cijfers voor postcodegebied 1702
- Woningen tussen 1995 en 2005
- 1%
- Woningen tussen 2005 en 2015
- 12%
- Woningen na 2015
- 4%
- Huurwoningen
- 40%
- Koopwoningen
- 60%
Overige in Heerhugowaard
Cijfers voor postcodegebied 1702
- Gemiddelde WOZ waarde
- € 231.000,-
- Personen onder de 65 met uitkering
- 9%
Overige in Heerhugowaard
Cijfers voor postcodegebied 1702
- Adressen per km²
- 1993
- Stedelijkheid (schaal 1 op 5)
- 80%
Korte feiten over Heerhugowaard
Heerhugowaard is een plaats in de gemeente Dijk en Waard, in de regio West-Friesland in de Nederlandse provincie Noord-Holland. Heerhugowaard hoort historisch gezien niet bij Kennemerland maar valt wel onder de gemeentelijke samenwerkingsregio Kennemerland via Noord-Kennemerland.
Wie is EV Wonen Makelaardij?
Het verlaten van je oude woning of het ontdekken van je nieuwe droomhuis is een ongelooflijk opwindend proces voor de meeste van onze klanten. Er zijn zoveel besluiten te nemen en talloze factoren die invloed hebben op het behalen van het best mogelijke resultaat voor jou. Bovendien is de vraag naar woningen sterk gestegen en hebben de prijzen recordhoogtes bereikt.
In deze dynamische en vaak onvoorspelbare markt zijn wij de toonaangevende verkoopmakelaar in de regio, goed geïnformeerd over de lokale huizenmarkt en de verkoopmogelijkheden van jouw woning.
We hebben voor veel klanten uitstekende verkoop- of aankoopresultaten behaald. Wij volgen geen vaste methoden, omdat we geloven dat elke woning en verkoper uniek is. Bij ons kun je rekenen op een persoonlijke benadering. Ons succesgeheim is dat we alledaagse dingen buitengewoon goed uitvoeren.
Een huis met succes verkopen is geen eenvoudige taak. EV Wonen Makelaardij biedt:
– een solide verkoopstrategie;
– een eersteklas presentatie met altijd een toppositie op Funda;
– een gedreven en gecertificeerde Register Makelaar/Taxateur;
– proactief gebruik van sociale media;
– en een flinke portie lokale marktkennis.
Onze aanpak heeft de afgelopen jaren geleid tot een zeer hoge Funda klantbeoordeling van 9,5! Dit betekent dat klanten met een goed verkoopproces uitstekende verkoopresultaten hebben behaald.
We besteden veel aandacht aan jouw persoonlijke situatie en de specifieke kenmerken van jouw woning. Dit, in combinatie met een goede communicatie, garandeert een succesvol verkoop- of aankooptraject. Benieuwd wat we voor jou kunnen doen? We komen graag vrijblijvend langs voor advies op maat.
Naast Heerhugowaard zijn we ook actief als makelaar in Alkmaar, Oterleek, Langedijk, Hensbroek, Obdam en omgeving.
Wij kunnen je op een unieke en persoonlijke manier volledig ontzorgen als verkoopmakelaar of aankoopmakelaar bij de verkoop of aankoop van jouw woning.
Nieuwste reviews
-
Koraal 84
Edwin heeft ons voor de 2e keer heel goed geholpen met de aan en verkoop. Hij is eerlijk en reageert erg snel.Je bent geen nummer bij EV won...
-
Koraal 84
Edwin heeft ons voor de 2e keer heel goed geholpen met de aan en verkoop. Hij is eerlijk en reageert erg snel.Je bent geen nummer bij EV won...
-
Pieter de Hooghstraat 71
Een prettige en enthousiaste makelaar. Helder in communicatie, luistert goed naar de wensen/input van de klant, beweegt mee in planning en e...