- Woonoppervlakte
- Circa 185 m²
- Perceeloppervlakte
- Circa 870 m²
- Bouwjaar
- Gebouwd in 2026
- Aantal kamers
- 6 kamers (4 slaapkamers)
De WITTE ABEEL, een VRIJSTAANDE VILLA aan het WATER en omringd door het BOS.
GASLOOS - VLOERVERWARMING - WARMTEPOMP - TRIPLE GLAS - ZONNEPANELEN
Stel je voor: een vrijstaande villa waar het bos zo dichtbij is dat je er vrijwel in staat. Bij deze woning gelegen in de nieuwe bouwlocatie Buitenwaard is het landschap geen achtergrond, maar een levend onderdeel van je woonbeleving. Heerlijk met een kop koffie op het terras met het geluid van de vogels om je heen. Gelegen in een kleinschalig en uniek woongebied waarin architectuur zich nederig voegt naar de lijnen van de natuur. Rust, ruimte en absolute privacy staan hier centraal.
Ontdek de WITTE ABEEL in Buitenwaard: een indrukwekkende vrijstaande villa (type B3) die luxe, vrijheid en natuur naadloos met elkaar verbindt. Deze woning biedt een royaal en stijlvol thuis op een prachtige kavel, direct tegenover het bos. Er worden van de Witte Abeel twee varianten gebouwd (bouwkavel 5 en 23).
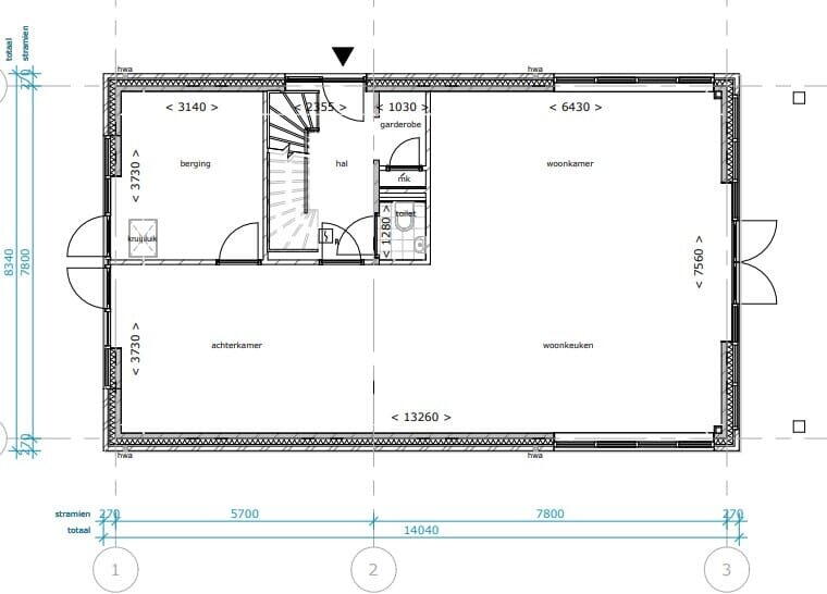
De afwerking is waanzinnig en er is volop keuze uit verschillende indelingsvarianten. Er is heel veel mogelijk! Bijvoorbeeld de slaapkamer/kantoor beneden bij de berging voegen (dan 7,56m x 3.36m) of een andere indeling van de bovenverdieping.
KENMERKEN:
• Woonoppervlakte ca. 185 m²
• Woninginhoud ca. 939 m³
• Perceel ca. 768 of 870 m² (inclusief beperkt privé-eigendom)
• Lage energielasten met Energielabel A+++
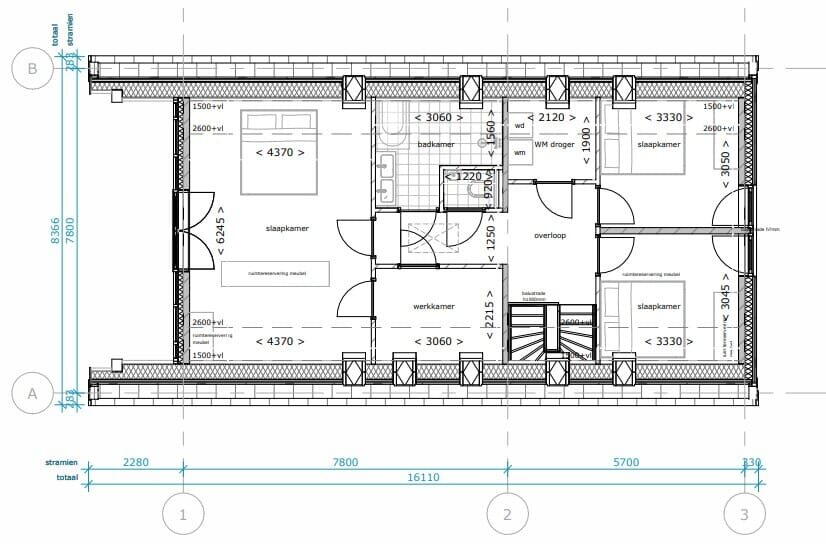
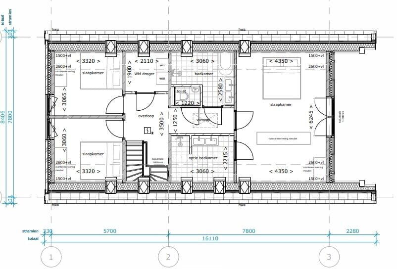
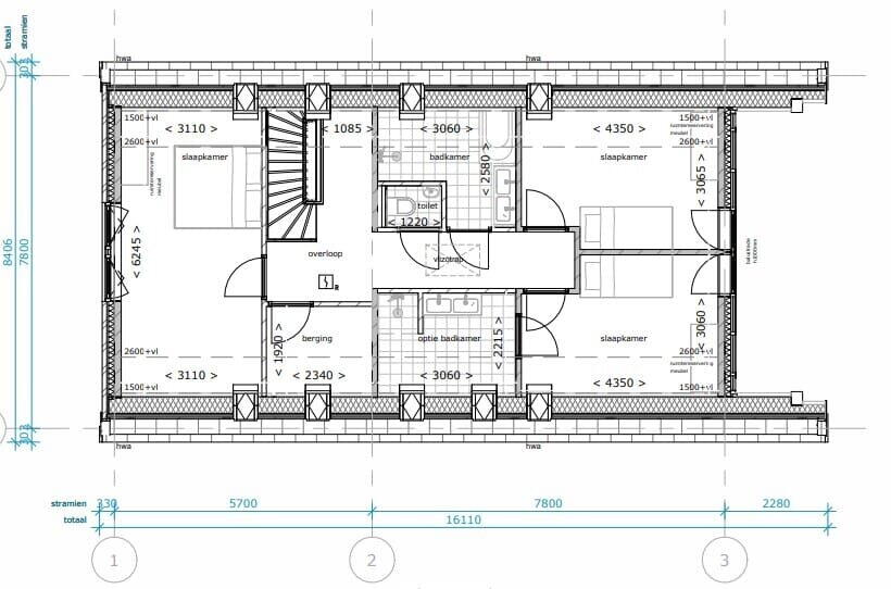
• Slaap-/werkkamer op de begane grond
• Vier slaapkamers de eerste verdieping
• Masterbedroom met verhoogd plafond (vide) en inloopkast
• Separaat toilet op de eerste verdieping
• Ruime vliering in de dakkap
• Kelderverdieping (optioneel)
• Vlonderterras direct aan het water
• Tuin rondom de woning
• Twee parkeerplaatsen op eigen terrein
Check de website WONENINBUITENWAARD.NL voor meer informatie, de plattegronden en technische gegevens. Hier vind je alle informatie over deze woning en de andere woningen die gebouwd zullen worden.
OPEN HUIS:
Kom langs op afspraak maar we zijn ook elke zaterdag van 10:00 tot 11:00 aanwezig op de bouwlocatie aan de Jan Glijnisweg 89D gedurende een OPEN HUIS. We verwelkomen je graag met een glimlach en een kop koffie.
-------------------
BUITENWAARD - wonen verweven met landschap -
Wonen in een zee van groen, aan de rand van de gemeente Dijk en Waard. Midden in de natuur, omringd door een volwassen bos.
CHECK DE VIDEO voor een mooi totaalbeeld van Buitenwaard!
EEN GROTE VERSCHEIDENHEID AAN WONINGTYPEN:
Buitenwaard is een kleinschalig, exclusief woongebied met slechts 40 woningen, zorgvuldig ingepast in het bos. Hier kun je wonen zoals je wilt. Exclusief, in een van de 16 vrijstaande villa’s in zeven verschillende uitvoeringen, gelegen op bospercelen met een privé tuin rondom en aan de rand van een watergang. Comfortabel, in een van de 14 twee-onder-een-kapwoningen in het groene middengebied. Of riant, in een van de 10 rijwoningen, verdeeld over een blok van 4 en een blok van 6 onder één kap aan de waterrijke randen van het plan.
In Buitenwaard kies je uit TWEE WOONCONCEPTEN. Je krijgt dezelfde woning op dezelfde kavel, maar het verschil zit in de afwerking, de vrijheid in keuzes en de koopsom.
Woonconcept FLEXIBEL:
Jij bepaalt zelf hoe ver de aannemer de woning afwerkt of welke onderdelen je zelf wilt realiseren.
• Samen met de verkoopbegeleider bespreek je wat de aannemer doet en wat jij zelf of door derden laat uitvoeren
• Van casco tot bijna instapklaar, alles ertussenin is mogelijk
• Maximale vrijheid en een lagere instapprijs (inclusief begeleiding door de aannemer)
Woonconcept INSTAPKLAAR:
Je woning wordt vrijwel volledig afgewerkt opgeleverd, zodat je direct kunt wonen en genieten. Prijzen hiervoor staan in de prijslijst op de website (woneninbuitenwaard.nl)
• Badkamer, sanitair, installaties, vlak gestucte plafonds en luxe materialen zijn standaard
• Keuzes in afwerking en materiaalgebruik in overleg met de aannemer
• Perfect wanneer je zorgeloos en snel wilt verhuizen naar een nagenoeg complete villa
Nu met EXTRA LEENCAPACITEIT. Je kunt bij de woningen met een A+++ label zelfs extra lenen. Voor een woning met energielabel A+++ is de extra leencapaciteit (bovenop de ‘normale’ hypotheek op inkomen en waarde) volgens de regels voor 2025 circa € 30.000,-. Vanaf 2026 verandert dat naar € 25.000,-. Informeer bij ons of bij je hypotheekadviseur naar de mogelijkheden.
LOCATIE:
Deze woning ligt direct grenzend aan het circa 60 hectare grote recreatiebos Waarderhout, ideaal voor een wandeling of om de kinderen te laten spelen in de natuur. In de nabije omgeving vind je supermarkten, basisscholen en een grote speeltuin.
Binnen enkele minuten bereik je het centrum van Heerhugowaard en Alkmaar, terwijl ook de verbindingen richting Amsterdam en Hoorn uitstekend zijn. Voor uitgebreid winkelen, uitgaan of sport en recreatie ligt het overdekte winkelcentrum Middenwaard en recreatiegebied Park van Luna op korte afstand.
Check voor meer informatie de website WONENINBUITENWAARD.NL Lees de volledige omschrijving
Overdracht
- Vraagprijs
- € 1.090.000 k.k.
- Servicekosten
- € 70 per maand
- Status
- Beschikbaar
- Aanvaarding
- In overleg
Bouw
- Object type
- Eengezinswoning, vrijstaande woning
- Soort bouw
- Bestaande bouw
- Bouwjaar
- 2026
- Soort dak
- Zadeldak bedekt met metaal
- Keurmerken
- Woningborg Garantiecertificaat
Oppervlakte en inhoud
- Woonoppervlakte
- 185 m²
- Perceeloppervlakte
- 870 m²
- Inhoud
- 939 m³
- Gebouwgeb. buitenruimte
- 10 m²
Indeling
- Aantal kamers
- 6 kamers (4 slaapkamers)
- Aantal badkamers
- 1 badkamer en 1 apart toilet
- Badkamervoorzieningen
- Inloopdouche, ligbad, en wastafelmeubel
- Aantal woonlagen
- 2 woonlagen, een vliering, en een kelder
- Voorzieningen
- Mechanische ventilatie en zonnepanelen
Energie
- Energielabel
- A
- Isolatie
- Dakisolatie, dubbel glas, muurisolatie, vloerisolatie en volledig geïsoleerd
- Verwarming
- Gehele vloerverwarming, warmte terugwininstallatie en warmtepomp
Buitenruimte
- Ligging
- Aan bosrand, aan rustige weg, aan water, beschutte ligging en vrij uitzicht
- Balkon / dakterras
- Balkon aanwezig
- Tuin
- Tuin rondom
Parkeergelegenheid
- Soort parkeergelegenheid
- Op eigen terrein
Energieverbruik in Heerhugowaard
Energielabel deze woning
Energielabel A
Publicatie energielabel:
Stroomverbruik per jaar
(Gemiddelde vrijstaande woning in Heerhugowaard)
Gasverbruik per jaar
(Gemiddelde vrijstaande woning in Heerhugowaard)
* Cijfers zijn afkomstig van het CBS en bedoeld als indicatie en kunnen verschillen voor deze woning
Indicatie hypotheeklasten
Eigen inleg:
Spaargeld / overwaarde
Rente:
Laagste 10-jaars rente
Laagste 10-jaars rente
2,98% - Centraal Beheer Groen... - NHG
3,2% - Argenta Groen Hypotheek... - 80%
Laagste 20-jaars rente
3,19% - Centraal Beheer Groen... - NHG
3,57% - Argenta Groen Hypothee... - 80%
Laagste 30-jaars rente
3,34% - Centraal Beheer Groen... - NHG
3,74% - Argenta Groen Hypothee... - 80%
Hypotheek:
Bruto maandlasten: € 0 p/m
Netto maandlasten: € 0 p/m
Hoe berekenen we dit?
Het rentepercentage is gebaseerd op de laagste 10 jaars vaste rente voor één hypotheekdeel. De vermelde rente (3.2% zonder NHG) is gecontroleerd op 17-12-2025. Deze berekening is gebaseerd op een annuïteitenhypotheek die volledig wordt afgelost, waarbij de maandlasten gedurende de gehele looptijd gelijk blijven. De werkelijke rente en netto maandlasten kunnen variëren, afhankelijk van uw persoonlijke situatie en de hypotheekverstrekker. Raadpleeg een financieel adviseur voor een nauwkeurige berekening en advies. Aan deze berekening kunnen geen rechten worden ontleend; het dient enkel als indicatie.
Documentatie
Kadastrale kaart
Leefomgeving
BAG uittreksel
Brochure
Plattegronden PDF
Bezoek onze website
Bezichtiging
Bod uitbrengen
Waardebepaling
Zoekopdracht
Alles downloaden
Inwoners in Heerhugowaard
Cijfers voor postcodegebied 1702
- Totaal aantal inwoners
- 59045 inwoners
- Mannen
- 51%
- Vrouwen
- 49%
Inwoners in Heerhugowaard
Cijfers voor postcodegebied 1702
- tot 15 jaar
- 17%
- 15 tot 25 jaar
- 13%
- 25 tot 35 jaar
- 25%
- 45 tot 65 jaar
- 27%
- 65 en ouder
- 18%
Huishoudens in Heerhugowaard
Cijfers voor postcodegebied 1702
- Eenpersoons zonder kinderen
- 32%
- Meerpersoons zonder kinderen
- 34%
- Huishoudens zonder kinderen
- 66%
Huishoudens in Heerhugowaard
Cijfers voor postcodegebied 1702
- Huishoudens met één kind
- 9%
- Huishoudens met meerdere kinderen
- 25%
- Huishoudens met kinderen
- 34%
Woningen in Heerhugowaard
Cijfers voor postcodegebied 1702
- Woningen voor 1945
- 2%
- Woningen tussen 1945 en 1965
- 2%
- Woningen tussen 1965 en 1975
- 68%
- Woningen tussen 1975 en 1985
- 6%
- Woningen tussen 1985 en 1995
- 5%
Woningen in Heerhugowaard
Cijfers voor postcodegebied 1702
- Woningen tussen 1995 en 2005
- 1%
- Woningen tussen 2005 en 2015
- 12%
- Woningen na 2015
- 4%
- Huurwoningen
- 40%
- Koopwoningen
- 60%
Overige in Heerhugowaard
Cijfers voor postcodegebied 1702
- Gemiddelde WOZ waarde
- € 231.000,-
- Personen onder de 65 met uitkering
- 9%
Overige in Heerhugowaard
Cijfers voor postcodegebied 1702
- Adressen per km²
- 1993
- Stedelijkheid (schaal 1 op 5)
- 80%
Korte feiten over Heerhugowaard
Heerhugowaard is een plaats in de gemeente Dijk en Waard, in de regio West-Friesland in de Nederlandse provincie Noord-Holland. Heerhugowaard hoort historisch gezien niet bij Kennemerland maar valt wel onder de gemeentelijke samenwerkingsregio Kennemerland via Noord-Kennemerland.
Wie is EV Wonen Makelaardij?
Het verlaten van je oude woning of het ontdekken van je nieuwe droomhuis is een ongelooflijk opwindend proces voor de meeste van onze klanten. Er zijn zoveel besluiten te nemen en talloze factoren die invloed hebben op het behalen van het best mogelijke resultaat voor jou. Bovendien is de vraag naar woningen sterk gestegen en hebben de prijzen recordhoogtes bereikt.
In deze dynamische en vaak onvoorspelbare markt zijn wij de toonaangevende verkoopmakelaar in de regio, goed geïnformeerd over de lokale huizenmarkt en de verkoopmogelijkheden van jouw woning.
We hebben voor veel klanten uitstekende verkoop- of aankoopresultaten behaald. Wij volgen geen vaste methoden, omdat we geloven dat elke woning en verkoper uniek is. Bij ons kun je rekenen op een persoonlijke benadering. Ons succesgeheim is dat we alledaagse dingen buitengewoon goed uitvoeren.
Een huis met succes verkopen is geen eenvoudige taak. EV Wonen Makelaardij biedt:
– een solide verkoopstrategie;
– een eersteklas presentatie met altijd een toppositie op Funda;
– een gedreven en gecertificeerde Register Makelaar/Taxateur;
– proactief gebruik van sociale media;
– en een flinke portie lokale marktkennis.
Onze aanpak heeft de afgelopen jaren geleid tot een zeer hoge Funda klantbeoordeling van 9,5! Dit betekent dat klanten met een goed verkoopproces uitstekende verkoopresultaten hebben behaald.
We besteden veel aandacht aan jouw persoonlijke situatie en de specifieke kenmerken van jouw woning. Dit, in combinatie met een goede communicatie, garandeert een succesvol verkoop- of aankooptraject. Benieuwd wat we voor jou kunnen doen? We komen graag vrijblijvend langs voor advies op maat.
Naast Heerhugowaard zijn we ook actief als makelaar in Alkmaar, Oterleek, Langedijk, Hensbroek, Obdam en omgeving.
Wij kunnen je op een unieke en persoonlijke manier volledig ontzorgen als verkoopmakelaar of aankoopmakelaar bij de verkoop of aankoop van jouw woning.
Nieuwste reviews
-
Pieter de Hooghstraat 71
Een prettige en enthousiaste makelaar. Helder in communicatie, luistert goed naar de wensen/input van de klant, beweegt mee in planning en e...
-
van Teylingenlaan 32
We vinden EV Wonen Makelaardij B.V. Erg goed, duidelijke afspraken en super snel met het handelen we zijn zeer tevreden
-
Lapis Lazuli 151
Erg fijne mensen, zeer communicatief vaardig en altijd bereid om even tijd voor je te maken. Mits niet bereikbaar altijd snel een belletje o...