- Woonoppervlakte
- Circa 121 m²
- Perceeloppervlakte
- Circa 251 m²
- Bouwjaar
- Gebouwd in 1993
- Aantal kamers
- 4 kamers (3 slaapkamers)
RUIMTE, RUST EN DORPSLEVEN BINNEN HANDBEREIK!
Wat een fijne gezinswoning op een geweldige plek! Aan de sfeervolle Loudelsweg in Bergen, op loopafstand van het bruisende dorpscentrum, staat deze ruime 2-ONDER-1-KAPWONING met GARAGE, zonnige tuin en parkeergelegenheid op eigen erf.
Een woning met volop mogelijkheden – ideaal voor gezinnen die comfortabel willen wonen, maar ook voor wie graag zijn eigen woonwensen wil realiseren, bijvoorbeeld door uit te bouwen aan de achterzijde.
Binnen beschikt de woning over een woonoppervlakte van 121 m² en een inhoud van bijna 500 m³. De woning is volledig geïsoleerd (dak-, muur- en dubbelglasisolatie) en heeft parkeergelegenheid op eigen terrein.
Hier combineer je ruimte, rust en comfort met de charme van wonen in één van de meest geliefde straten van Bergen – op fietsafstand van het bos, de duinen en het strand.
Check de EXCLUSIEVE EIGEN WONING WEBSITE (loudelsweg34.nl) voor meer informatie over de woning en de omliggende buurt.
BEZICHTIGING: Plan een bezichtiging via Funda of de website van EV Wonen Makelaardij; we staan klaar om je rond te leiden!
Indeling:
BEGANE GROND:
De lichte woonkamer met massief eikenhouten vloer en schuifpui naar de tuin vormt het hart van het huis. De keuken is eenvoudig maar netjes en voorzien van koelkast, vaatwasser en keramische kookplaat. Dankzij de drie betonnen verdiepingsvloeren is de woning solide en stil. De woning kan eventueel nog vergunningsvrij binnen de regels aan de achterzijde uitgebouwd worden.
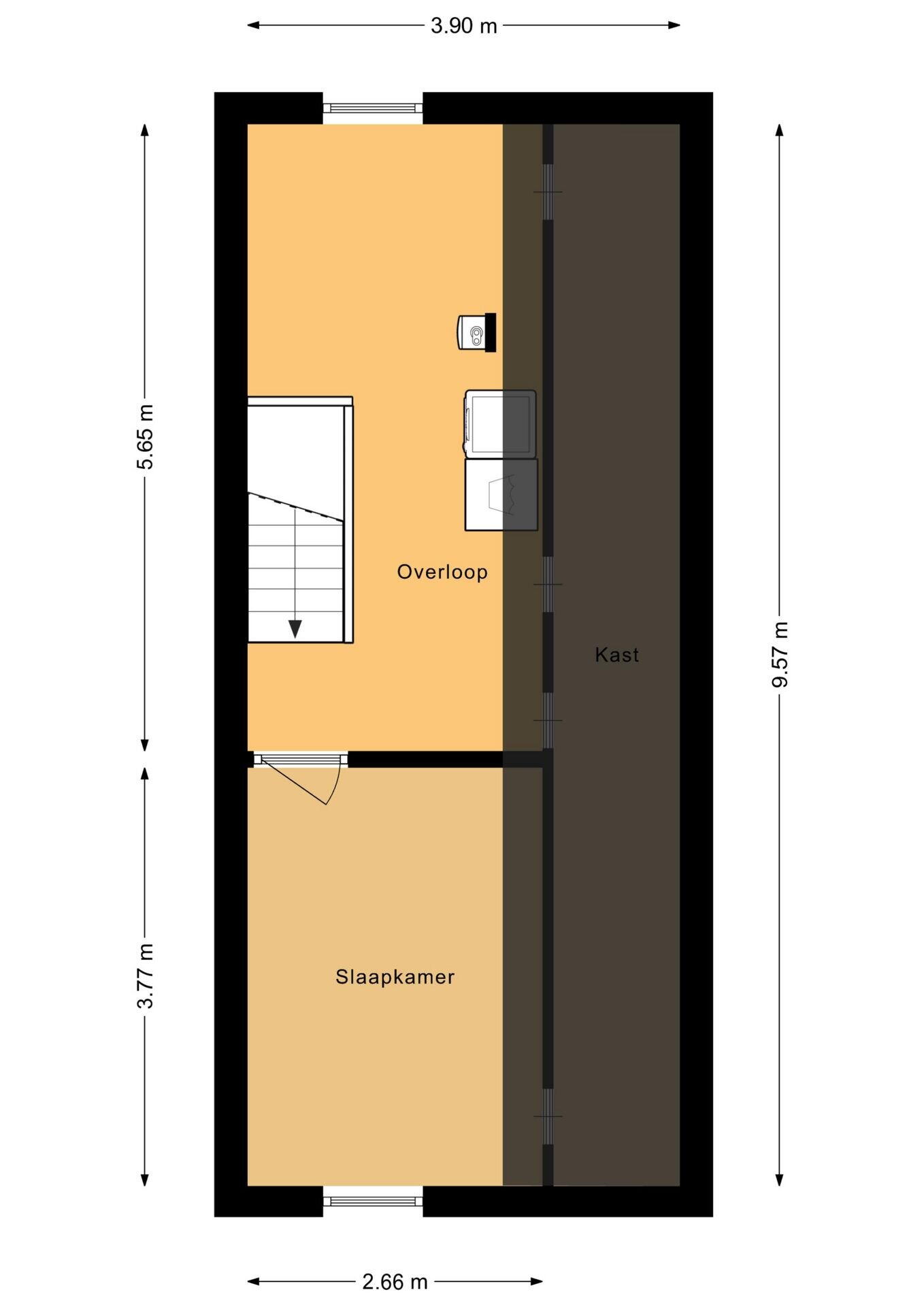
1e VERDIEPING:
Op de eerste verdieping vind je twee ruime slaapkamers met parketvloer. De master bedroom aan de voorzijde heeft een balkon, terwijl de tweede kamer beschikt over een grote vaste schuifkast. De badkamer is compleet uitgevoerd met bad, inloopdouche, dubbele wastafel, toilet en dakraam – een fijne en praktische ruimte voor het hele gezin.
2e VERDIEPING:
De tweede verdieping biedt een derde slaapkamer, veel bergruimte onder de schuine kap en een voorzolder met wasmachineaansluiting, CV-installatie en vaste schuifkast. Dankzij ramen aan zowel de voor- als achterzijde is deze verdieping heerlijk licht.
GARAGE:
De garage is binnendoor bereikbaar en voorzien van een tegelvloer, keukenblok met oven, vriezer en koelkast, een elektrisch bedienbare kanteldeur aan de voorzijde en een loopdeur naar de tuin aan de achterzijde.
TUIN:
De zonnige tuin op het zuiden (circa 11 meter diep en 8,75 meter breed) biedt volop privacy en heeft een achterom. Een heerlijke plek om te ontspannen of gezellig buiten te eten met familie en vrienden.
LOCATIE:
De ligging is perfect aan een rustige en groene straat. Dichtbij het centrum van het dorp en dichtbij het bos en de ingang naar de duinen. Je fietst in 20 minuten door de mooiste duinen van Nederland naar het strand van Bergen aan Zee en iets langer naar het auto-vrije Schoorl aan zee. Alkmaar met z'n station is ook 20 minuten fietsen. Je bent in 40 minuten met de auto in Amsterdam. De Loudelsweg is een gezellige en rustige weg en staat bekend als een hele prettige buurt.
AANVAARDING: in overleg en kan snel.
Snelle oplevering mogelijk. Nieuwsgierig geworden naar deze ruime eengezinswoning? Twijfel niet en stuur een bericht via Funda of bel direct voor het maken van een afspraak, wij laten de woning graag zien! Lees de volledige omschrijving
Overdracht
- Vraagprijs
- € 739.000 k.k.
- Status
- Beschikbaar
- Aanvaarding
- In overleg
Bouw
- Object type
- Eengezinswoning, 2-onder-1-kapwoning
- Soort bouw
- Bestaande bouw
- Bouwjaar
- 1993
- Soort dak
- Zadeldak bedekt met pannen
Oppervlakte en inhoud
- Woonoppervlakte
- 121 m²
- Perceeloppervlakte
- 251 m²
- Inhoud
- 495 m³
- Gebouwgeb. buitenruimte
- 7 m²
Indeling
- Aantal kamers
- 4 kamers (3 slaapkamers)
- Aantal badkamers
- 1 badkamer en 1 apart toilet
- Badkamervoorzieningen
- Dubbele wastafel, inloopdouche, ligbad, en toilet
- Aantal woonlagen
- 3 woonlagen
- Voorzieningen
- Buitenzonwering, glasvezelkabel, mechanische ventilatie, schuifpui, en TV kabel
Energie
- Energielabel
- B
- Energielabel registratie
- 10-11-2025
- Isolatie
- Dakisolatie, dubbel glas, muurisolatie, vloerisolatie en volledig geïsoleerd
- Verwarming
- Cv-ketel
- Warm water
- Cv-ketel
- Cv ketel
- Vaillant (2012, huur)
Buitenruimte
- Ligging
- Aan rustige weg, in centrum en in woonwijk
- Balkon / dakterras
- Balkon aanwezig
- Tuin
- Achtertuin en voortuin
- Afmetingen achtertuin
- 96 m² (11,00 meter diep en 8,75 meter breed)
- ligging tuin
- Gelegen op het zuiden bereikbaar via achterom
Garage
- Soort garage
- Aangebouwde stenen garage
- Capaciteit
- 1 auto
- Voorzieningen
- Elektra
- Isolatie
- Dubbel glas
Parkeergelegenheid
- Soort parkeergelegenheid
- Op eigen terrein
Energieverbruik in Bergen (NH)
Energielabel deze woning
Energielabel B
Publicatie energielabel: 10-11-2025
Stroomverbruik per jaar
(Gemiddelde twee onder een kap in Bergen (NH))
Gasverbruik per jaar
(Gemiddelde twee onder een kap in Bergen (NH))
* Cijfers zijn afkomstig van het CBS en bedoeld als indicatie en kunnen verschillen voor deze woning
Indicatie hypotheeklasten
Eigen inleg:
Spaargeld / overwaarde
Rente:
Laagste 10-jaars rente
Laagste 10-jaars rente
2,98% - Centraal Beheer Groen... - NHG
3,2% - Argenta Groen Hypotheek... - 80%
Laagste 20-jaars rente
3,19% - Centraal Beheer Groen... - NHG
3,57% - Argenta Groen Hypothee... - 80%
Laagste 30-jaars rente
3,34% - Centraal Beheer Groen... - NHG
3,74% - Argenta Groen Hypothee... - 80%
Hypotheek:
Bruto maandlasten: € 0 p/m
Netto maandlasten: € 0 p/m
Hoe berekenen we dit?
Het rentepercentage is gebaseerd op de laagste 10 jaars vaste rente voor één hypotheekdeel. De vermelde rente (3.2% zonder NHG) is gecontroleerd op 17-12-2025. Deze berekening is gebaseerd op een annuïteitenhypotheek die volledig wordt afgelost, waarbij de maandlasten gedurende de gehele looptijd gelijk blijven. De werkelijke rente en netto maandlasten kunnen variëren, afhankelijk van uw persoonlijke situatie en de hypotheekverstrekker. Raadpleeg een financieel adviseur voor een nauwkeurige berekening en advies. Aan deze berekening kunnen geen rechten worden ontleend; het dient enkel als indicatie.
Documentatie
Kadastrale kaart
Leefomgeving
Brochure woning
Plattegronden PDF
WOZ waarderapport
BAG uittreksel
Vragenlijst
Bezoek onze website
Bezichtiging
Bod uitbrengen
Waardebepaling
Zoekopdracht
Alles downloaden
Zonnegrenzen bekijken
Inwoners in Bergen (NH)
Cijfers voor postcodegebied 1861
- Totaal aantal inwoners
- 6385 inwoners
- Mannen
- 47%
- Vrouwen
- 53%
Inwoners in Bergen (NH)
Cijfers voor postcodegebied 1861
- tot 15 jaar
- 12%
- 15 tot 25 jaar
- 10%
- 25 tot 35 jaar
- 11%
- 45 tot 65 jaar
- 31%
- 65 en ouder
- 37%
Huishoudens in Bergen (NH)
Cijfers voor postcodegebied 1861
- Eenpersoons zonder kinderen
- 40%
- Meerpersoons zonder kinderen
- 33%
- Huishoudens zonder kinderen
- 73%
Huishoudens in Bergen (NH)
Cijfers voor postcodegebied 1861
- Huishoudens met één kind
- 7%
- Huishoudens met meerdere kinderen
- 20%
- Huishoudens met kinderen
- 27%
Woningen in Bergen (NH)
Cijfers voor postcodegebied 1861
- Woningen voor 1945
- 31%
- Woningen tussen 1945 en 1965
- 11%
- Woningen tussen 1965 en 1975
- 17%
- Woningen tussen 1975 en 1985
- 9%
- Woningen tussen 1985 en 1995
- 17%
Woningen in Bergen (NH)
Cijfers voor postcodegebied 1861
- Woningen tussen 1995 en 2005
- 6%
- Woningen tussen 2005 en 2015
- 5%
- Woningen na 2015
- 5%
- Huurwoningen
- 30%
- Koopwoningen
- 70%
Overige in Bergen (NH)
Cijfers voor postcodegebied 1861
- Gemiddelde WOZ waarde
- € 597.000,-
- Personen onder de 65 met uitkering
- 5%
Overige in Bergen (NH)
Cijfers voor postcodegebied 1861
- Adressen per km²
- 1100
- Stedelijkheid (schaal 1 op 5)
- 60%
Korte feiten over Bergen (NH)
Bergen is een dorp en gemeente in de Nederlandse provincie Noord-Holland. De gemeente telt 29.741 inwoners (31 januari 2022, bron: CBS) en heeft een oppervlakte van 119,85 km² (waarvan 22,70 km² water). De gemeente maakt deel uit van de samenwerkingsregio Kennemerland.
Wie is EV Wonen Makelaardij?
Het verlaten van je oude woning of het ontdekken van je nieuwe droomhuis is een ongelooflijk opwindend proces voor de meeste van onze klanten. Er zijn zoveel besluiten te nemen en talloze factoren die invloed hebben op het behalen van het best mogelijke resultaat voor jou. Bovendien is de vraag naar woningen sterk gestegen en hebben de prijzen recordhoogtes bereikt.
In deze dynamische en vaak onvoorspelbare markt zijn wij de toonaangevende verkoopmakelaar in de regio, goed geïnformeerd over de lokale huizenmarkt en de verkoopmogelijkheden van jouw woning.
We hebben voor veel klanten uitstekende verkoop- of aankoopresultaten behaald. Wij volgen geen vaste methoden, omdat we geloven dat elke woning en verkoper uniek is. Bij ons kun je rekenen op een persoonlijke benadering. Ons succesgeheim is dat we alledaagse dingen buitengewoon goed uitvoeren.
Een huis met succes verkopen is geen eenvoudige taak. EV Wonen Makelaardij biedt:
– een solide verkoopstrategie;
– een eersteklas presentatie met altijd een toppositie op Funda;
– een gedreven en gecertificeerde Register Makelaar/Taxateur;
– proactief gebruik van sociale media;
– en een flinke portie lokale marktkennis.
Onze aanpak heeft de afgelopen jaren geleid tot een zeer hoge Funda klantbeoordeling van 9,5! Dit betekent dat klanten met een goed verkoopproces uitstekende verkoopresultaten hebben behaald.
We besteden veel aandacht aan jouw persoonlijke situatie en de specifieke kenmerken van jouw woning. Dit, in combinatie met een goede communicatie, garandeert een succesvol verkoop- of aankooptraject. Benieuwd wat we voor jou kunnen doen? We komen graag vrijblijvend langs voor advies op maat.
Naast Heerhugowaard zijn we ook actief als makelaar in Alkmaar, Oterleek, Langedijk, Hensbroek, Obdam en omgeving.
Wij kunnen je op een unieke en persoonlijke manier volledig ontzorgen als verkoopmakelaar of aankoopmakelaar bij de verkoop of aankoop van jouw woning.
Nieuwste reviews
-
Pieter de Hooghstraat 71
Een prettige en enthousiaste makelaar. Helder in communicatie, luistert goed naar de wensen/input van de klant, beweegt mee in planning en e...
-
van Teylingenlaan 32
We vinden EV Wonen Makelaardij B.V. Erg goed, duidelijke afspraken en super snel met het handelen we zijn zeer tevreden
-
Lapis Lazuli 151
Erg fijne mensen, zeer communicatief vaardig en altijd bereid om even tijd voor je te maken. Mits niet bereikbaar altijd snel een belletje o...