- Woonoppervlakte
- Circa 124 m²
- Perceeloppervlakte
- Circa 139 m²
- Bouwjaar
- Gebouwd in 2016
- Aantal kamers
- 5 kamers (4 slaapkamers)
INSTAPKLAAR, UITGEBOUWD AAN DE ACHTERZIJDE, BREDE DAKKAPEL EN EEN GUNSTIGE ZONLIGGING!
Welkom aan de Zuijder Vlaerdinge 111, waar comfort, stijl en ruimte samenkomen in een modern jasje. Deze jonge tussenwoning (bouwjaar 2016) is tot in de puntjes verzorgd en ligt in een rustige, kindvriendelijke buurt.
Met in totaal vier slaapkamers, een aan de achterzijde uitgebouwde woonkamer met VLOERVERWARMING, moderne keuken en bakkamer, zonnige tuin op het zuiden, energielabel A+ en parkeergelegenheid op eigen terrein heeft deze woning alles wat je zoekt in een toekomstbestendig gezinshuis.
In het voorjaar 2025 is de 2e verdieping geheel vernieuwd en voorzien van een kunststof dakkapel.
Check de EXCLUSIEVE EIGEN WONINGWEBSITE (zuijdervlaerdinge111.nl) voor meer informatie over de woning en de omgeving via de site van EV Wonen Makelaardij.
BEZICHTIGEN? Plan direct een afspraak via Funda of de site van EV Wonen Makelaardij. We laten je deze prachtige woning graag van binnen en buiten ervaren.
LOCATIE:
Fijne ligging met alles dichtbij! In de populaire en kindvriendelijke nieuwbouwwijk ‘BROEKHORN’ met dichtbij een haven om de boot aan te leggen met aansluitend het Landschapsreservaat Oosterdel.
De woning ligt aan een rustige straat met vrij uitzicht, in een moderne woonwijk met volop speelgelegenheid en alle voorzieningen binnen handbereik. Scholen, supermarkten, openbaar vervoer en het winkelcentrum Middenwaard zijn eenvoudig te bereiken. Binnen 10 minuten sta je in Alkmaar en ook de Randstad is uitstekend bereikbaar. Heerhugowaard combineert het beste van stad en rust – ideaal voor gezinnen én starters die graag wat meer ruimte willen.
INDELING:
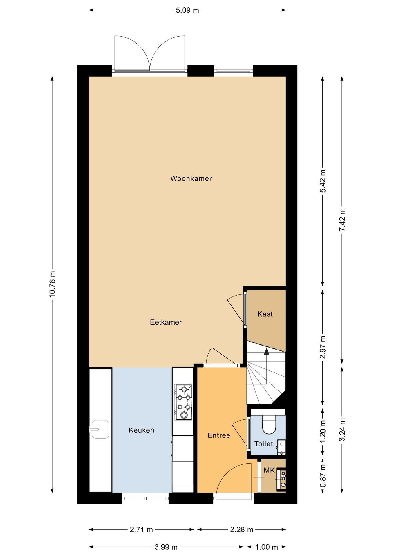
BEGANE GROND:
Voorzien van een uitgebouwde woonkamer vol licht en sfeer. Zodra je binnenstapt, voel je de ruimte. De woonkamer is aan de achterzijde uitgebouwd en voorzien van gladde wanden, een laminaatvloer, hoge deuren en ingebouwde spotverlichting. Woonkamer, keuken en hal zijn voorzien van vloerverwarming.
Dankzij de openslaande deuren naar de tuin stroomt het licht naar binnen en ontstaat er een fijne verbinding tussen binnen en buiten. De sfeer is modern, strak en tegelijk warm – precies wat je verwacht van een woning van deze tijd.
De keuken aan de voorzijde is praktisch én smaakvol ingericht. Hier vind je een 5-pits gaskookplaat, combimagnetron, koelkast, vriezer, vaatwasser en afzuigkap, allemaal netjes ingebouwd. Een heerlijke plek om te koken met uitzicht op de rustige straat.
1e en 2e VERDIEPING:
Voorzien van drie slaapkamers en een moderne badkamer.
De eerste verdieping telt drie goed bemeten slaapkamers met laminaatvloeren, gladde wanden, rolluiken en een moderne uitstraling. De masterbedroom heeft tevens een grote vaste schuifkast.
De badkamer is compleet uitgerust met een inloopdouche, hangtoilet, wastafelmeubel en radiator – een frisse, lichte ruimte waar je de dag goed begint.
De tweede verdieping is in het voorjaar van 2025 geheel vernieuwd. Hier vind je de vierde slaapkamer die door de brede dakkapel (kunststof / 2025) heerlijk ruim is. De gehele etage is voorzien van laminaatvloer, rolluiken, horren en glad gestucte wanden. In een aparte technische ruimte vindt je de CV-ketel, wasmachine- en drogeraansluiting en mechanische ventilatie.
TUIN:
Een zonnige tuin en parkeren op eigen terrein!
De achtertuin ligt perfect op het zuiden – een heerlijke plek om van de zon te genieten. Dankzij de elektrische zonwering, openslaande deuren en vrij zicht voelt het hier extra ruim en ontspannen. De tuin is onderhoudsvriendelijk aangelegd.
Aan de voorzijde van de woning is er een berging voor de fietsen en gereedschap. Tevens is er aan de voorzijde plek om de auto te parkeren op eigen grond.
PLUSPUNTEN OP EEN RIJ:
- Uitgebouwde woonkamer met openslaande deuren
- Moderne keuken met complete inbouwapparatuur
- Vier slaapkamers met rolluiken aan de achterzijde
- Fraai afgewerkt met glad stucwerk, spotverlichting en hoge deuren
- Energielabel A+
- Vloerverwarming beneden
- Brede dakkapel uit maart 2025
- Tuin op het zuiden
- Parkeren op eigen terrein
- Rustige, kindvriendelijke locatie
Een jonge, stijlvolle woning die helemaal af is – dat is Zuijder Vlaerdinge 111. Lees de volledige omschrijving
Overdracht
- Vraagprijs
- € 495.000 k.k.
- Status
- Beschikbaar
- Aanvaarding
- In overleg
Bouw
- Object type
- Eengezinswoning, tussenwoning
- Soort bouw
- Bestaande bouw
- Bouwjaar
- 2016
- Soort dak
- Zadeldak bedekt met pannen
Oppervlakte en inhoud
- Woonoppervlakte
- 124 m²
- Perceeloppervlakte
- 139 m²
- Inhoud
- 444 m³
- Externe bergruimte
- 6 m²
Indeling
- Aantal kamers
- 5 kamers (4 slaapkamers)
- Aantal badkamers
- 1 badkamer en 1 apart toilet
- Badkamervoorzieningen
- Inloopdouche, toilet, en wastafelmeubel
- Aantal woonlagen
- 3 woonlagen
- Voorzieningen
- Buitenzonwering, dakraam, glasvezelkabel, mechanische ventilatie, rolluiken, en TV kabel
Energie
- Energielabel
- A
- Isolatie
- Dakisolatie, dubbel glas, muurisolatie, vloerisolatie en volledig geïsoleerd
- Verwarming
- Cv-ketel
- Warm water
- Cv-ketel
- Cv ketel
- Intergas ( combiketel uit 2016, eigendom)
Buitenruimte
- Ligging
- Aan rustige weg, in woonwijk en vrij uitzicht
- Tuin
- Achtertuin en voortuin
- Afmetingen achtertuin
- 44 m² (8,10 meter diep en 5,40 meter breed)
- ligging tuin
- Gelegen op het zuiden
Bergruimte
- Schuur / berging
- Vrijstaande houten berging
- Voorzieningen
- Elektra
Parkeergelegenheid
- Soort parkeergelegenheid
- Op eigen terrein
Energieverbruik in Heerhugowaard
Energielabel deze woning
Energielabel A
Publicatie energielabel:
Stroomverbruik per jaar
(Gemiddelde tussenwoning in Heerhugowaard)
Gasverbruik per jaar
(Gemiddelde tussenwoning in Heerhugowaard)
* Cijfers zijn afkomstig van het CBS en bedoeld als indicatie en kunnen verschillen voor deze woning
Indicatie hypotheeklasten
Eigen inleg:
Spaargeld / overwaarde
Rente:
Laagste 10-jaars rente
Laagste 10-jaars rente
2,98% - Centraal Beheer Groen... - NHG
3,2% - Argenta Groen Hypotheek... - 80%
Laagste 20-jaars rente
3,19% - Centraal Beheer Groen... - NHG
3,57% - Argenta Groen Hypothee... - 80%
Laagste 30-jaars rente
3,34% - Centraal Beheer Groen... - NHG
3,74% - Argenta Groen Hypothee... - 80%
Hypotheek:
Bruto maandlasten: € 0 p/m
Netto maandlasten: € 0 p/m
Hoe berekenen we dit?
Het rentepercentage is gebaseerd op de laagste 10 jaars vaste rente voor één hypotheekdeel. De vermelde rente (3.2% zonder NHG) is gecontroleerd op 17-12-2025. Deze berekening is gebaseerd op een annuïteitenhypotheek die volledig wordt afgelost, waarbij de maandlasten gedurende de gehele looptijd gelijk blijven. De werkelijke rente en netto maandlasten kunnen variëren, afhankelijk van uw persoonlijke situatie en de hypotheekverstrekker. Raadpleeg een financieel adviseur voor een nauwkeurige berekening en advies. Aan deze berekening kunnen geen rechten worden ontleend; het dient enkel als indicatie.
Documentatie
Kadastrale kaart
Leefomgeving
Brochure Woning
Plattegronden PDF
WOZ waarderapport
BAG uittreksel
Vragenlijst woning
Lijst van zaken
Bezoek onze website
Bezichtiging
Bod uitbrengen
Waardebepaling
Zoekopdracht
Alles downloaden
Zonnegrenzen bekijken
Inwoners in Heerhugowaard
Cijfers voor postcodegebied 1704
- Totaal aantal inwoners
- 59045 inwoners
- Mannen
- 51%
- Vrouwen
- 49%
Inwoners in Heerhugowaard
Cijfers voor postcodegebied 1704
- tot 15 jaar
- 17%
- 15 tot 25 jaar
- 13%
- 25 tot 35 jaar
- 25%
- 45 tot 65 jaar
- 27%
- 65 en ouder
- 18%
Huishoudens in Heerhugowaard
Cijfers voor postcodegebied 1704
- Eenpersoons zonder kinderen
- 24%
- Meerpersoons zonder kinderen
- 31%
- Huishoudens zonder kinderen
- 55%
Huishoudens in Heerhugowaard
Cijfers voor postcodegebied 1704
- Huishoudens met één kind
- 7%
- Huishoudens met meerdere kinderen
- 38%
- Huishoudens met kinderen
- 45%
Woningen in Heerhugowaard
Cijfers voor postcodegebied 1704
- Woningen voor 1945
- 6%
- Woningen tussen 1945 en 1965
- 6%
- Woningen tussen 1965 en 1975
- 4%
- Woningen tussen 1975 en 1985
- 4%
- Woningen tussen 1985 en 1995
- 42%
Woningen in Heerhugowaard
Cijfers voor postcodegebied 1704
- Woningen tussen 1995 en 2005
- 5%
- Woningen tussen 2005 en 2015
- 17%
- Woningen na 2015
- 15%
- Huurwoningen
- 20%
- Koopwoningen
- 80%
Overige in Heerhugowaard
Cijfers voor postcodegebied 1704
- Gemiddelde WOZ waarde
- € 304.000,-
- Personen onder de 65 met uitkering
- 5%
Overige in Heerhugowaard
Cijfers voor postcodegebied 1704
- Adressen per km²
- 918
- Stedelijkheid (schaal 1 op 5)
- 40%
Korte feiten over Heerhugowaard
Heerhugowaard is een plaats in de gemeente Dijk en Waard, in de regio West-Friesland in de Nederlandse provincie Noord-Holland. Heerhugowaard hoort historisch gezien niet bij Kennemerland maar valt wel onder de gemeentelijke samenwerkingsregio Kennemerland via Noord-Kennemerland.
Wie is EV Wonen Makelaardij?
Het verlaten van je oude woning of het ontdekken van je nieuwe droomhuis is een ongelooflijk opwindend proces voor de meeste van onze klanten. Er zijn zoveel besluiten te nemen en talloze factoren die invloed hebben op het behalen van het best mogelijke resultaat voor jou. Bovendien is de vraag naar woningen sterk gestegen en hebben de prijzen recordhoogtes bereikt.
In deze dynamische en vaak onvoorspelbare markt zijn wij de toonaangevende verkoopmakelaar in de regio, goed geïnformeerd over de lokale huizenmarkt en de verkoopmogelijkheden van jouw woning.
We hebben voor veel klanten uitstekende verkoop- of aankoopresultaten behaald. Wij volgen geen vaste methoden, omdat we geloven dat elke woning en verkoper uniek is. Bij ons kun je rekenen op een persoonlijke benadering. Ons succesgeheim is dat we alledaagse dingen buitengewoon goed uitvoeren.
Een huis met succes verkopen is geen eenvoudige taak. EV Wonen Makelaardij biedt:
– een solide verkoopstrategie;
– een eersteklas presentatie met altijd een toppositie op Funda;
– een gedreven en gecertificeerde Register Makelaar/Taxateur;
– proactief gebruik van sociale media;
– en een flinke portie lokale marktkennis.
Onze aanpak heeft de afgelopen jaren geleid tot een zeer hoge Funda klantbeoordeling van 9,5! Dit betekent dat klanten met een goed verkoopproces uitstekende verkoopresultaten hebben behaald.
We besteden veel aandacht aan jouw persoonlijke situatie en de specifieke kenmerken van jouw woning. Dit, in combinatie met een goede communicatie, garandeert een succesvol verkoop- of aankooptraject. Benieuwd wat we voor jou kunnen doen? We komen graag vrijblijvend langs voor advies op maat.
Naast Heerhugowaard zijn we ook actief als makelaar in Alkmaar, Oterleek, Langedijk, Hensbroek, Obdam en omgeving.
Wij kunnen je op een unieke en persoonlijke manier volledig ontzorgen als verkoopmakelaar of aankoopmakelaar bij de verkoop of aankoop van jouw woning.
Nieuwste reviews
-
Pieter de Hooghstraat 71
Een prettige en enthousiaste makelaar. Helder in communicatie, luistert goed naar de wensen/input van de klant, beweegt mee in planning en e...
-
van Teylingenlaan 32
We vinden EV Wonen Makelaardij B.V. Erg goed, duidelijke afspraken en super snel met het handelen we zijn zeer tevreden
-
Lapis Lazuli 151
Erg fijne mensen, zeer communicatief vaardig en altijd bereid om even tijd voor je te maken. Mits niet bereikbaar altijd snel een belletje o...