Woonoppervlakte
Circa 104 m²
Perceeloppervlakte
Circa 126 m²
Bouwjaar
Gebouwd in 1978
Aantal kamers
5 kamers (4 slaapkamers)

Hellenburg 13

4385 EN, Vlissingen (Zeeland)

In Hellenburg 13 tref je een leuk ingedeelde eengezinswoning aan die ruimte biedt aan 4 slaapkamers en een diepe achtertuin op het zuiden en ook nog eens beschikt over prima voorzieningen. De woning ligt aan de rand van de wijk met aan de achterzijde een groenstrook met veel groen en een bomenrij. Deze praktische eengezinswoning ligt centraal ten opzichte van scholen en winkelvoorzieningen. Je bereikt met 5 minuten fietsen twee basisscholen en een winkelcentrum met uitstekende voorzieningen voor je dagelijkse boodschappen. De woning is leuk ingedeeld en biedt uitstekende woonruimte voor een gezin. In de bijna 12 meter diepe achtertuin is er altijd een zonnig plekje te vinden. De woning is grotendeels voorzien van kunststof kozijnen met isolerende beglazing en heeft een nette vloerafwerking.
Een woning met een A label, wat garant staat voor zeer goed te beheersen energiekosten.

Begane grond:
Je kunt de auto parkeren aan de voorzijde van het huis, in een van de vele parkeervakken. De entree van de woning geeft ruimte aan de hal, waar je de trapopgang, het toilet en de meterkast aantreft. De woning beschikt over een tuingerichte woonkamer met veel glas over de gehele breedte. Hierdoor is het een lichte, aangename ruimte die uitkijkt over de diepe achtertuin. De situering van de tuin is zuid waardoor je de hele dag een plekje in de zon hebt. Door het ontbreken van bebouwing direct achter de woning, heb je een optimaal gevoel van privacy in de tuin. De woonkamer staat in open verbinding met de keukenruimte, die zich aan de voorzijde van het huis bevindt. De keuken is uitgevoerd in een grijze hoekopstelling voorzien van ingebouwde apparatuur.

Eerste verdieping:
De overloop geeft toegang tot de vaste trap naar de tweede verdieping, de 2 ruime slaapkamers op de verdieping en de badkamer. De slaapkamers variëren in afmetingen en bieden prima ruimte voor een (jong) gezin. De badkamer beschikt over tegelwerk en sanitair in een lichte, moderne kleurstelling en is compleet van uitvoering. Er is een tweede toilet, een inloop douche en een wastafelmeubel in de moderne badkamer aanwezig.

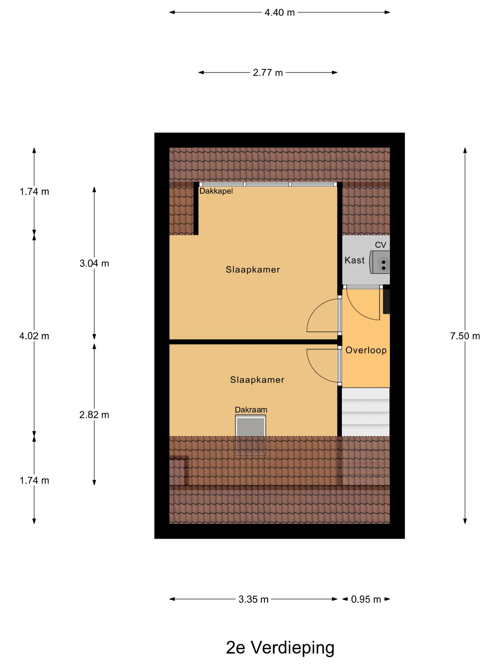
Tweede verdieping:
De vaste trap brengt je naar de tweede verdieping, op de overloop toegang tot een stookruimte. Het betreft een Intergas HRE CW4 combitoestel uit 2024. Op deze verdieping van de woning zijn middels een dakkapel 2 ruime slaapkamers gerealiseerd. In de schuine delen van de kap tref je extra bergruimte aan.

Kortom een prima woning op een leuke locatie.

Benieuwd? Bel voor een bezichtigingsafspraak. Voor meer informatie verwijzen wij u graag naar onze website. Hier vindt u een uitgebreide presentatie van deze woning. Voor het plannen van een bezichtiging neemt u contact op met Bert Bimmel Makelaardij (0118-414014) Wij geven u graag een rondleiding in deze woning.

Plattegronden

Overdracht

Vraagprijs
€ 279.000 k.k.
Status
Onder bod
Aanvaarding
In overleg

Bouw

Object type
Eengezinswoning, tussenwoning
Soort bouw
Bestaande bouw
Bouwjaar
1978
Soort dak
Zadeldak bedekt met pannen

Oppervlakte en inhoud

Woonoppervlakte
104 m²
Perceeloppervlakte
126 m²
Inhoud
357 m³
Externe bergruimte
6 m²

Indeling

Aantal kamers
5 kamers (4 slaapkamers)
Aantal badkamers
1 badkamer
Badkamervoorzieningen
Toilet, wastafelmeubel, inloopdouche, wasmachineaansluiting
Aantal woonlagen
3 woonlagen
Voorzieningen
Tv-kabel, buitenzonwering, glasvezel kabel, zonnepanelen

Energie

Energielabel
A
Energielabel registratie
25-11-2025
Isolatie
Dakisolatie, muurisolatie, dubbel glas
Verwarming
Cv-ketel
Warm water
Cv-ketel
Cv ketel
Intergas hre cw4 combiketel gas gestookt uit 2024 (eigendom)

Buitenruimte

Ligging
In woonwijk
Tuin
Achtertuin, voortuin
Afmetingen achtertuin
58 m² (11.69 meter diep en 5 meter breed)
ligging tuin
Gelegen op het zuiden

Bergruimte

Schuur / berging
Vrijstaand steen
Voorzieningen
Voorzien van elektra

Garage

Soort garage
Geen garage

Parkeergelegenheid

Soort parkeergelegenheid
Openbaar parkeren

Energieverbruik in Vlissingen

Energielabel deze woning

Energielabel A

Publicatie energielabel: 25-11-2025

Stroomverbruik per jaar

2390 kWh

(Gemiddelde tussenwoning in Vlissingen)

Gasverbruik per jaar

1010 m³

(Gemiddelde tussenwoning in Vlissingen)

* Cijfers zijn afkomstig van het CBS en bedoeld als indicatie en kunnen verschillen voor deze woning

Indicatie hypotheeklasten

Eigen inleg:
Spaargeld / overwaarde

Rente:
Laagste 10-jaars rente

Laagste 10-jaars rente

2,98% - Centraal Beheer Groen... - NHG


3,2% - Argenta Groen Hypotheek... - 80%

Laagste 20-jaars rente

3,19% - Centraal Beheer Groen... - NHG


3,57% - Argenta Groen Hypothee... - 80%

Laagste 30-jaars rente

3,34% - Centraal Beheer Groen... - NHG


3,74% - Argenta Groen Hypothee... - 80%


Hypotheek:

Bruto maandlasten: € 0 p/m

Netto maandlasten: € 0 p/m

Hoe berekenen we dit?

Het rentepercentage is gebaseerd op de laagste 10 jaars vaste rente voor één hypotheekdeel. De vermelde rente (2.98% met NHG) is gecontroleerd op 18-12-2025. Deze berekening is gebaseerd op een annuïteitenhypotheek die volledig wordt afgelost, waarbij de maandlasten gedurende de gehele looptijd gelijk blijven. De werkelijke rente en netto maandlasten kunnen variëren, afhankelijk van uw persoonlijke situatie en de hypotheekverstrekker. Raadpleeg een financieel adviseur voor een nauwkeurige berekening en advies. Aan deze berekening kunnen geen rechten worden ontleend; het dient enkel als indicatie.

Documentatie

Zonnegrenzen bekijken

Op de kaart

Inwoners in Vlissingen

Cijfers voor postcodegebied 4385

Totaal aantal inwoners
5330 inwoners
Mannen
50%
Vrouwen
50%

Inwoners in Vlissingen

Cijfers voor postcodegebied 4385

tot 15 jaar
16%
15 tot 25 jaar
12%
25 tot 35 jaar
22%
45 tot 65 jaar
31%
65 en ouder
19%

Huishoudens in Vlissingen

Cijfers voor postcodegebied 4385

Eenpersoons zonder kinderen
30%
Meerpersoons zonder kinderen
33%
Huishoudens zonder kinderen
63%

Huishoudens in Vlissingen

Cijfers voor postcodegebied 4385

Huishoudens met één kind
12%
Huishoudens met meerdere kinderen
25%
Huishoudens met kinderen
37%

Woningen in Vlissingen

Cijfers voor postcodegebied 4385

Woningen voor 1945
1%
Woningen tussen 1945 en 1965
1%
Woningen tussen 1965 en 1975
3%
Woningen tussen 1975 en 1985
70%
Woningen tussen 1985 en 1995
16%

Woningen in Vlissingen

Cijfers voor postcodegebied 4385

Woningen tussen 1995 en 2005
12%
Woningen tussen 2005 en 2015
1%
Woningen na 2015
1%
Huurwoningen
30%
Koopwoningen
70%

Overige in Vlissingen

Cijfers voor postcodegebied 4385

Gemiddelde WOZ waarde
€ 166.000,-
Personen onder de 65 met uitkering
9%

Overige in Vlissingen

Cijfers voor postcodegebied 4385

Adressen per km²
1731
Stedelijkheid (schaal 1 op 5)
80%
Postcode kaart 4385 Gemeente kaart vlissingen

Korte feiten over Vlissingen

Vlissingen (Zeeuws: Vlissienge) is een stad en gemeente in de Nederlandse provincie Zeeland, gelegen aan de noordzijde van de monding van de Westerschelde op het voormalige eiland Walcheren. De plaats Vlissingen telt ongeveer 33.000 inwoners. De gemeente heeft 45.182 inwoners (31 januari 2023, bron: CBS) en een oppervlakte van 344,98 km², waarvan 310,84 km² water.

Indien u vragen heeft of u wilt een bezichtiging inplannen, dan kunt u gebruik maken van het formulier hiernaast. Er zal daarna op korte termijn contact met u worden opgenomen.

Badhuisstraat 16

4381 LS, Vlissingen

0118 - 414 014 makelaar@bertbimmel.nl www.bertbimmel.nl

Over Bert Bimmel Makelaardij

Ons kantoor is actief op de vastgoedmarkt sinds 1990, toen Bert Bimmel een bestaand makelaarskantoor overnam. Voordat hij dit deed, werkte hij al jarenlang in de vastgoedbranche bij een internationaal ingenieursbureau. Het kantoor begon met twee personen en is in de loop der jaren uitgegroeid tot een van de toonaangevende makelaarskantoren in Zeeland.

Bert Bimmel heeft een bouwkundige achtergrond, wat erg belangrijk is in dit vak. Ook de medewerkers van ons kantoor volgen regelmatig cursussen en trainingen om op de hoogte te blijven van nieuwe ontwikkelingen, hun kennis uit te breiden en vaardigheden te ontwikkelen. Twee van onze kantoormedewerkers zijn volledig gecertificeerde NVM-makelaars. Certificering betekent onder andere dat de makelaar voortdurend geschoold blijft op het gebied van makelaardij en het praktijkdiploma makelaar-taxateur heeft behaald. Bovendien zijn ze verplicht om elk jaar bijscholing te volgen.

Over Bert Bimmel Makelaardij
Reviews Bert Bimmel Makelaardij

Hellenburg 13, Vlissingen

€ 279.000 k.k. - Onder bod