- Woonoppervlakte
- Circa 47 m²
- Inhoud
- Circa 137 m³
- Bouwjaar
- Gebouwd in 1907
- Aantal kamers
- 3 kamers (2 slaapkamers)
Een knusse bovenwoning op de tweede verdieping op steenworp afstand van de binnenstad, dus alle winkelvoorzieningen op loopafstand. Ook de boulevards en het strand is minder dan 5 minuten lopen. Hoe leuk wil je 't hebben?
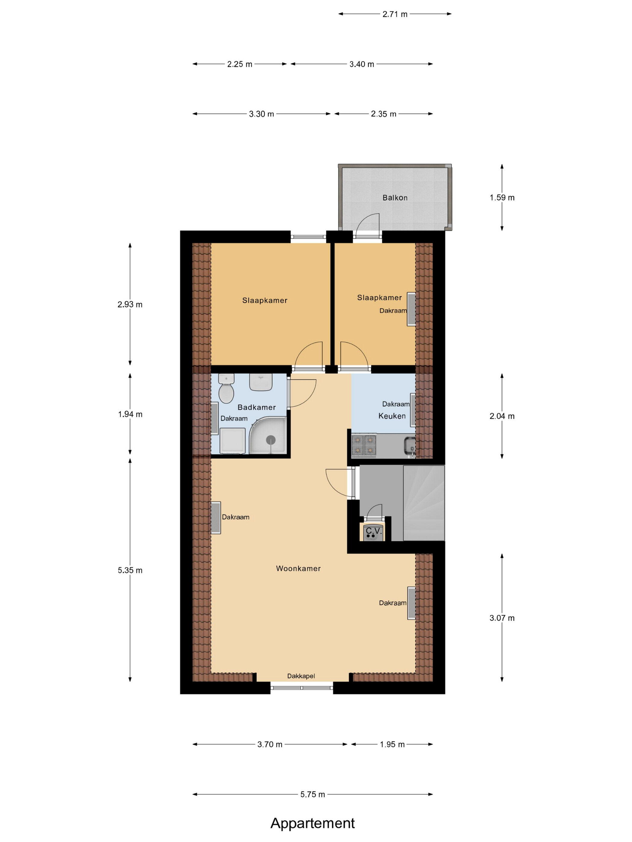
De woning is gebouwd in 1907 en bestaat uit drie woonlagen. In 1998 is de boven- en de benedenwoning gesplitst. De bovenwoning is in 2011 volledig gerenoveerd en gesplitst in twee appartementen. Er is een volledig nieuw dak aangebracht, en bijna alle kozijnen, ramen en deuren zijn vervangen, uitgevoerd in hoogwaardig kunststof. Ook de installaties zijn volledig nieuw aangelegd en het appartement beschikt over een eigen verwarmingsketel. De energiekosten zijn dus goed te beheersen.
Indeling:
keurig trappenhuis met meterkast op de begane grond. Entree; CV ruimte; prettige en lichte woonkamer aan de voorzijde; open keuken met een functioneel keukenblokje; twee slaapkamers waarvan 1 toegang biedt naar een balkon aan de achterzijde; keurige badkamer met douche, wastafel en toilet en tevens de aansluiting voor de wasmachine.
De Vereniging van Eigenaars is in ruste. Er wordt geen periodieke bijdrage betaald maar omdat alles is vernieuwd is er, behalve de minimale wettelijke vereisten, voor de koper de aanbeveling om de VvE leven in te blazen.
Dit appartement staat garant voor betaalbaar wonen. Enthousiast geworden? Bel snel voor een bezichtigingsafspraak. Voor meer informatie verwijzen wij je graag naar onze website. Hier vindt je een uitgebreide presentatie van dit instapklare appartement. Voor het plannen van een bezichtiging neem je contact op met Bert Bimmel Makelaardij (0118-414014) Wij geven je graag een rondleiding.
Overdracht
- Vraagprijs
- € 159.000 k.k.
- Status
- Beschikbaar
- Aanvaarding
- In overleg
Bouw
- Object type
- Bovenwoning, appartement
- Soort bouw
- Bestaande bouw
- Bouwjaar
- 1907
- Soort dak
- Samengesteld dak bedekt met pannen
Oppervlakte en inhoud
- Woonoppervlakte
- 47 m²
- Inhoud
- 137 m³
- Gebouwgeb. buitenruimte
- 4 m²
Indeling
- Aantal kamers
- 3 kamers (2 slaapkamers)
- Aantal badkamers
- 1 badkamer
- Badkamervoorzieningen
- Toilet, douche, wastafel, wasmachineaansluiting
- Aantal woonlagen
- 1 woonlaag
Energie
- Energielabel
- F
- Energielabel registratie
- 28-11-2025
- Verwarming
- Cv-ketel
- Warm water
- Cv-ketel
- Cv ketel
- Hr ketel combiketel gas gestookt uit 2011 (eigendom)
Buitenruimte
- Ligging
- Aan rustige weg, in centrum, in woonwijk
- Balkon / dakterras
- Balkon
- Tuin
- Geen tuin
Garage
- Soort garage
- Geen garage
Parkeergelegenheid
- Soort parkeergelegenheid
- Parkeervergunningen
Energieverbruik in Vlissingen
Energielabel deze woning
Energielabel F
Publicatie energielabel: 28-11-2025
Stroomverbruik per jaar
(Gemiddelde appartement in Vlissingen)
Gasverbruik per jaar
(Gemiddelde appartement in Vlissingen)
* Cijfers zijn afkomstig van het CBS en bedoeld als indicatie en kunnen verschillen voor deze woning
Indicatie hypotheeklasten
Eigen inleg:
Spaargeld / overwaarde
Rente:
Laagste 10-jaars rente
Laagste 10-jaars rente
2,98% - Centraal Beheer Groen... - NHG
3,2% - Argenta Groen Hypotheek... - 80%
Laagste 20-jaars rente
3,19% - Centraal Beheer Groen... - NHG
3,57% - Argenta Groen Hypothee... - 80%
Laagste 30-jaars rente
3,34% - Centraal Beheer Groen... - NHG
3,74% - Argenta Groen Hypothee... - 80%
Hypotheek:
Bruto maandlasten: € 0 p/m
Netto maandlasten: € 0 p/m
Hoe berekenen we dit?
Het rentepercentage is gebaseerd op de laagste 10 jaars vaste rente voor één hypotheekdeel. De vermelde rente (2.98% met NHG) is gecontroleerd op 18-12-2025. Deze berekening is gebaseerd op een annuïteitenhypotheek die volledig wordt afgelost, waarbij de maandlasten gedurende de gehele looptijd gelijk blijven. De werkelijke rente en netto maandlasten kunnen variëren, afhankelijk van uw persoonlijke situatie en de hypotheekverstrekker. Raadpleeg een financieel adviseur voor een nauwkeurige berekening en advies. Aan deze berekening kunnen geen rechten worden ontleend; het dient enkel als indicatie.
Documentatie
Kadastrale kaart
Leefomgeving
Plattegronden PDF
WOZ waarderapport
BAG uittreksel
Brochure
Bekijk onze website
Bezichtiging
Bod uitbrengen
Waardebepaling
Zoekopdracht
Alles downloaden
Zonnegrenzen bekijken
Inwoners in Vlissingen
Cijfers voor postcodegebied 4381
- Totaal aantal inwoners
- 7280 inwoners
- Mannen
- 52%
- Vrouwen
- 48%
Inwoners in Vlissingen
Cijfers voor postcodegebied 4381
- tot 15 jaar
- 9%
- 15 tot 25 jaar
- 12%
- 25 tot 35 jaar
- 27%
- 45 tot 65 jaar
- 27%
- 65 en ouder
- 26%
Huishoudens in Vlissingen
Cijfers voor postcodegebied 4381
- Eenpersoons zonder kinderen
- 62%
- Meerpersoons zonder kinderen
- 23%
- Huishoudens zonder kinderen
- 85%
Huishoudens in Vlissingen
Cijfers voor postcodegebied 4381
- Huishoudens met één kind
- 6%
- Huishoudens met meerdere kinderen
- 9%
- Huishoudens met kinderen
- 15%
Woningen in Vlissingen
Cijfers voor postcodegebied 4381
- Woningen voor 1945
- 43%
- Woningen tussen 1945 en 1965
- 17%
- Woningen tussen 1965 en 1975
- 8%
- Woningen tussen 1975 en 1985
- 13%
- Woningen tussen 1985 en 1995
- 9%
Woningen in Vlissingen
Cijfers voor postcodegebied 4381
- Woningen tussen 1995 en 2005
- 3%
- Woningen tussen 2005 en 2015
- 5%
- Woningen na 2015
- 3%
- Huurwoningen
- 60%
- Koopwoningen
- 40%
Overige in Vlissingen
Cijfers voor postcodegebied 4381
- Gemiddelde WOZ waarde
- € 140.000,-
- Personen onder de 65 met uitkering
- 14%
Overige in Vlissingen
Cijfers voor postcodegebied 4381
- Adressen per km²
- 2433
- Stedelijkheid (schaal 1 op 5)
- 80%
Korte feiten over Vlissingen
Vlissingen (Zeeuws: Vlissienge) is een stad en gemeente in de Nederlandse provincie Zeeland, gelegen aan de noordzijde van de monding van de Westerschelde op het voormalige eiland Walcheren. De plaats Vlissingen telt ongeveer 33.000 inwoners. De gemeente heeft 45.182 inwoners (31 januari 2023, bron: CBS) en een oppervlakte van 344,98 km², waarvan 310,84 km² water.
Over Bert Bimmel Makelaardij
Ons kantoor is actief op de vastgoedmarkt sinds 1990, toen Bert Bimmel een bestaand makelaarskantoor overnam. Voordat hij dit deed, werkte hij al jarenlang in de vastgoedbranche bij een internationaal ingenieursbureau. Het kantoor begon met twee personen en is in de loop der jaren uitgegroeid tot een van de toonaangevende makelaarskantoren in Zeeland.
Bert Bimmel heeft een bouwkundige achtergrond, wat erg belangrijk is in dit vak. Ook de medewerkers van ons kantoor volgen regelmatig cursussen en trainingen om op de hoogte te blijven van nieuwe ontwikkelingen, hun kennis uit te breiden en vaardigheden te ontwikkelen. Twee van onze kantoormedewerkers zijn volledig gecertificeerde NVM-makelaars. Certificering betekent onder andere dat de makelaar voortdurend geschoold blijft op het gebied van makelaardij en het praktijkdiploma makelaar-taxateur heeft behaald. Bovendien zijn ze verplicht om elk jaar bijscholing te volgen.
Nieuwste reviews
-
Coosje Buskenstraat 15
Gewoon een no nonsense makelaar met heel vriendelijke medewerkers. Doet wat hij moet doen.
-
Van Hogendorpweg 82
Beoordeeld met een 8.8
-
Nieuwstraat 7 a
Makelaar was altijd goed bereikbaar en handelde altijd snel.De informatie die we van hem ontvingen na een bezichtiging waren ook altijd snel...