- Woonoppervlakte
- Circa 250 m²
- Perceeloppervlakte
- Circa 295 m²
- Bouwjaar
- Gebouwd in 1932
- Aantal kamers
- 4 kamers (3 slaapkamers)
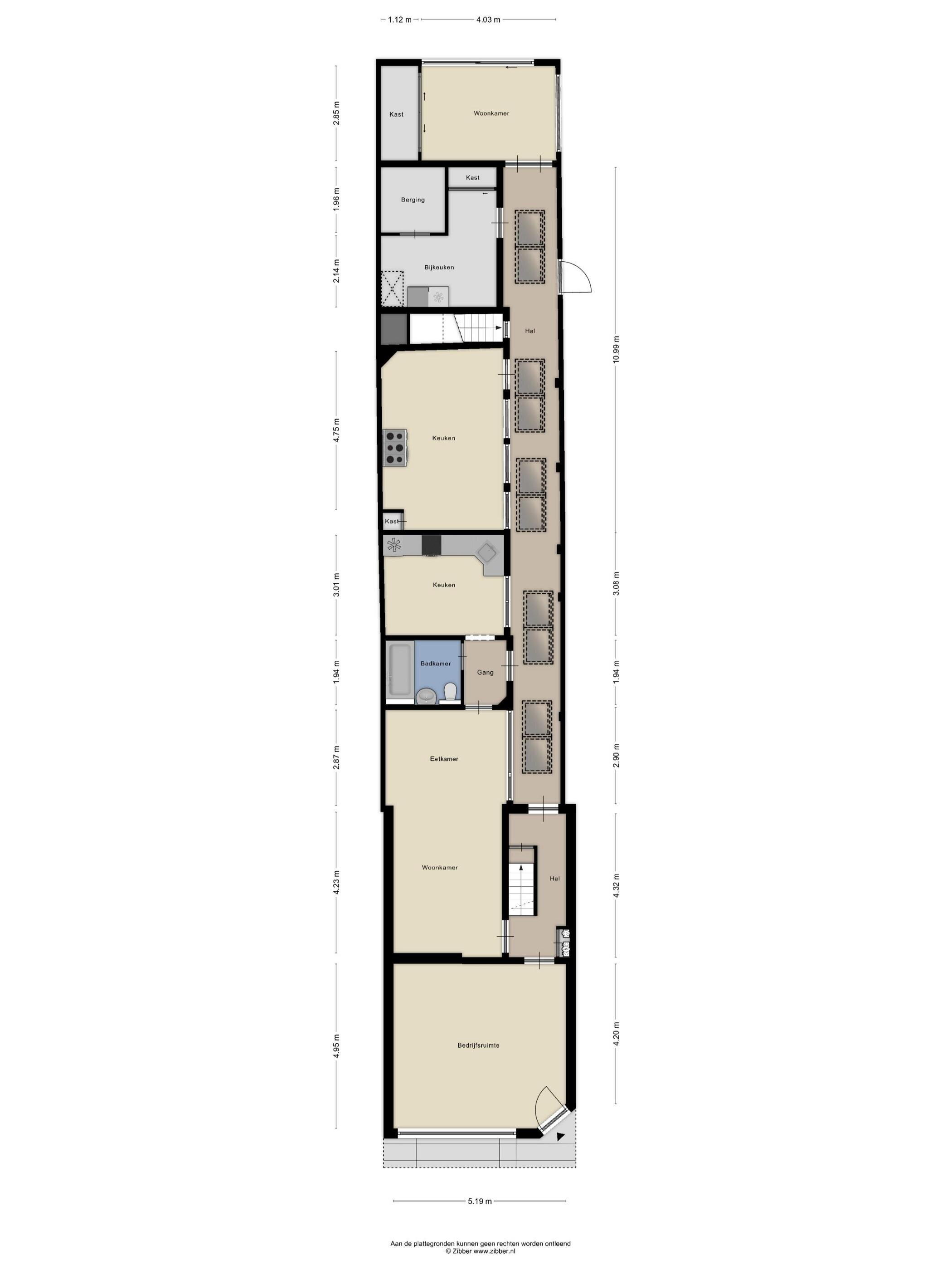
Indeling
Kelder ingedeeld in 2 ruimtes waar zich tevens de aansluiting voor de wasmachine bevindt.
Begane grond
Vanuit de entree/voordeur komt u in de winkelruimte/showroom(5.19 x 4.95 meter) uit. Deze ruimte geeft dan weer toegang tot de hal. Deze hal geeft toegang tot een woonkamer, trappengang en de corridor richting de opslagruimten. De corridor geeft toegang tot de achterom, badkamer, keuken, berging, werkruimte en serre.
Tuin
De tuin is op het zuidwesten gericht en biedt voldoende privacy.
Trappengang
Wanneer u de trappen oploopt is er in de kwartslag een toilet gerealiseerd.
Eerste verdieping
Momenteel is deze ruimte ingedeeld als slaapkamer(5.17 x 5.19 meter) en woonkamer(4.16 x 3.27 meter). De huidge eigenaar heeft de tussenmuur verwijderd. Deze kan relatief makkelijk worden teruggeplaatst.
Tweede verdieping
Ruime slaapkamer met 2 raampartijen en een afgesloten ruimte waar zich de CV ketel bevindt.
Overige informatie
De gebruikelijke waarborgsom/bankgarantie is 10% van de koopsom. De koper dient deze, indien de verkoper en koper dit overeenkomen, binnen 2 weken nadat het financieringsvoorbehoud is verlopen bij de desbetreffende notaris te deponeren.
Indien c.v.ketel en/of warmwatervoorziening een huurtoestel is, dient koper de huurovereenkomst over te nemen.
Toelichtingsclausule NEN2580
De Meetinstructie is gebaseerd op de NEN2580. De Meetinstructie is bedoeld om een meer eenduidige manier van meten toe te passen voor het geven van een indicatie van de gebruiksoppervlakte. De Meetinstructie sluit verschillen in meetuitkomsten niet volledig uit, door bijvoorbeeld interpretatiever- schillen, afrondingen of beperkingen bij het uitvoeren van de meting.
Schriftelijkheidsvereiste
Conform artikel 7:2 Burgerlijk Wetboek, is er pas sprake van een rechtsgeldige koopovereenkomst als de particuliere verkoper en de particuliere koper de koopovereenkomst hebben ondertekend. Een mondelinge overeenstemming tussen de particuliere verkoper en de particuliere koper is niet rechts- geldig.
Disclaimer
Alle door ons kantoor verstrekte informatie omtrent onroerende zaken, moet beschouwd worden als een uitnodiging om in onderhandeling te treden, en is geheel vrijblijvend! Alle vermelde maten en afmetingen zijn slechts bij benadering. Aan deze beperkte informatie kunnen geen rechten worden ontleend. Indien in enige documentatie of op enige website informatie staat die niet overeen komt met de werkelijkheid, dan geldt de feitelijke situatie waarin de woning zich bevindt, zoals koper deze tijdens de bezichtiging heeft kunnen waarnemen, en wordt de woning in deze feitelijke situatie/staat verkocht. Een (eventueel) bijgevoegde plattegrond dient uitsluitend als globale indicatie/visualisatie. Hieraan kunnen uitdrukkelijk geen rechten worden ontleend.
Overdracht
- Vraagprijs
- € 285.000 k.k.
- Status
- Beschikbaar
- Aanvaarding
- In overleg
Bouw
- Object type
- Eengezinswoning, tussenwoning
- Soort bouw
- Bestaande bouw
- Bouwjaar
- 1932
- Soort dak
- Zadeldak bedekt met pannen
Oppervlakte en inhoud
- Woonoppervlakte
- 250 m²
- Perceeloppervlakte
- 295 m²
- Inhoud
- 1017 m³
- Overige inpandige ruimte
- 38 m²
- Externe bergruimte
- 10 m²
- Gebouwgeb. buitenruimte
- 2 m²
Indeling
- Aantal kamers
- 4 kamers (3 slaapkamers)
- Aantal badkamers
- 1 badkamer en 2 aparte toiletten
- Badkamervoorzieningen
- Ligbad, toilet, wastafel
- Voorzieningen
- Tv kabel, rolluiken, dakraam, opslagruimte
Energie
- Energielabel
- D
- Energielabel registratie
- 18-04-2022
- Isolatie
- Dubbel glas
- Verwarming
- CV-ketel
Buitenruimte
- Ligging
- Aan rustige weg
- Tuin
- Achtertuin
Parkeergelegenheid
- Soort parkeergelegenheid
- Openbaar parkeren
Energieverbruik in Landgraaf
Energielabel deze woning
Energielabel D
Publicatie energielabel: 18-04-2022
Stroomverbruik per jaar
(Gemiddelde tussenwoning in Landgraaf)
Gasverbruik per jaar
(Gemiddelde tussenwoning in Landgraaf)
* Cijfers zijn afkomstig van het CBS en bedoeld als indicatie en kunnen verschillen voor deze woning
Indicatie hypotheeklasten
Eigen inleg:
Spaargeld / overwaarde
Rente:
Laagste 10-jaars rente
Laagste 10-jaars rente
2,98% - Centraal Beheer Groen... - NHG
3,25% - Centraal Beheer Groen... - 80%
Laagste 20-jaars rente
3,29% - Centraal Beheer Groen... - NHG
3,52% - Centraal Beheer Groen... - 80%
Laagste 30-jaars rente
3,41% - Centraal Beheer Groen... - NHG
3,74% - Centraal Beheer Groen... - 80%
Hypotheek:
Bruto maandlasten: € 0 p/m
Netto maandlasten: € 0 p/m
Hoe berekenen we dit?
Het rentepercentage is gebaseerd op de laagste 10 jaars vaste rente voor één hypotheekdeel. De vermelde rente (2.98% met NHG) is gecontroleerd op 30-12-2025. Deze berekening is gebaseerd op een annuïteitenhypotheek die volledig wordt afgelost, waarbij de maandlasten gedurende de gehele looptijd gelijk blijven. De werkelijke rente en netto maandlasten kunnen variëren, afhankelijk van uw persoonlijke situatie en de hypotheekverstrekker. Raadpleeg een financieel adviseur voor een nauwkeurige berekening en advies. Aan deze berekening kunnen geen rechten worden ontleend; het dient enkel als indicatie.
Documentatie
Kadastrale kaart
Leefomgeving
Brochure
BAG uittreksel
WOZ waarderapport
Plattegronden PDF
Bezichtiging
Bod uitbrengen
Waardebepaling
Zoekopdracht
Alles downloaden
Zonnegrenzen bekijken
Inwoners in Landgraaf
Cijfers voor postcodegebied 6373
- Totaal aantal inwoners
- 8865 inwoners
- Mannen
- 50%
- Vrouwen
- 50%
Inwoners in Landgraaf
Cijfers voor postcodegebied 6373
- tot 15 jaar
- 11%
- 15 tot 25 jaar
- 10%
- 25 tot 35 jaar
- 21%
- 45 tot 65 jaar
- 32%
- 65 en ouder
- 26%
Huishoudens in Landgraaf
Cijfers voor postcodegebied 6373
- Eenpersoons zonder kinderen
- 36%
- Meerpersoons zonder kinderen
- 35%
- Huishoudens zonder kinderen
- 71%
Huishoudens in Landgraaf
Cijfers voor postcodegebied 6373
- Huishoudens met één kind
- 9%
- Huishoudens met meerdere kinderen
- 21%
- Huishoudens met kinderen
- 30%
Woningen in Landgraaf
Cijfers voor postcodegebied 6373
- Woningen voor 1945
- 11%
- Woningen tussen 1945 en 1965
- 27%
- Woningen tussen 1965 en 1975
- 23%
- Woningen tussen 1975 en 1985
- 19%
- Woningen tussen 1985 en 1995
- 10%
Woningen in Landgraaf
Cijfers voor postcodegebied 6373
- Woningen tussen 1995 en 2005
- 4%
- Woningen tussen 2005 en 2015
- 5%
- Woningen na 2015
- 1%
- Huurwoningen
- 40%
- Koopwoningen
- 60%
Overige in Landgraaf
Cijfers voor postcodegebied 6373
- Gemiddelde WOZ waarde
- € 184.000,-
- Personen onder de 65 met uitkering
- 14%
Overige in Landgraaf
Cijfers voor postcodegebied 6373
- Adressen per km²
- 1515
- Stedelijkheid (schaal 1 op 5)
- 80%
Parkstad Makelaardij
Indien u vragen heeft of u wilt een bezichtiging inplannen, dan kunt u gebruik maken van het formulier hiernaast. Er zal daarna op korte termijn contact met u worden opgenomen.
Contact opnemen
Parkstad Makelaardij
Twijfelt u of het nu het juiste moment is om uw woning in Parkstad te verkopen? Dat is begrijpelijk zeker als u nog geen nieuw huis heeft gevonden, is die stap niet eenvoudig.
Toch denkt u er misschien aan om net als buren, vrienden of collega’s een volgende stap te zetten. Misschien speelt ook mee dat de markt op dit moment gunstig is, en u juist nu een goede prijs voor uw woning kunt krijgen—een kans die zich de komende jaren mogelijk niet meer voordoet.
Laat daarom vrijblijvend en kosteloos uw woningwaarde bepalen door Parkstad Makelaardij. Zo weet u precies waar u aan toe bent.
Nieuwste reviews
-
Hoofdstraat 57
Ik kan Parkstad Makelaardij alleen maar heel warm en met overtuiging aanbevelen. Said verstaat zijn vak. Degelijke, serieuze en voortvarende...
-
Fideliolaan 1
Diligent, reliable and professional. Said did a very good job and I definitely recommend this agent.
-
Venweg 67
Zeer goede makelaar, betrokken, betrouwbaar en komt zijn afspraken na. Is tevens goed op de hoogte van de lokale markt.